Yopa says ..
Located on Wordsworth road within the brand new PL2 Development we are showing this wonderful two double bedroom semi-detached home.
Property Oracle says ..
This two-bedroom semi-detached house in Plymouth’s Ham area presents as a modern and well-maintained property. The images showcase a recently updated kitchen and bathrooms, with contemporary fittings and finishes. The interior decor is modern, though subjective. The small rear garden, fitted with artificial turf, provides some outside space but is not particularly large. The property’s location offers convenient access to well-regarded schools and multiple train stations, making it attractive to families and commuters. However, there is limited information about the immediate neighbourhood’s amenities, which could influence the desirability for some buyers. The pricing seems competitive in the context of the area, though a more definitive conclusion regarding value would require precise square footage data for comparable properties in the vicinity. The provided plot size of 0.00 SQFT is concerning and requires clarification. Overall, this is a relatively modern property in a convenient location, suitable for a range of potential buyers. A lack of key details about the plot size and further amenities impacts the overall comprehensive property assessment.
Therefore, we give this property 6 / 10. *Disclaimer: This is our option and does constitute a recommendation or financial advice. Do your own research. *
- Price
- 7
- Condition
- 8
- Location
- 7
- Land
- 4
- Bedrooms
- 2
- Bathrooms
- 2
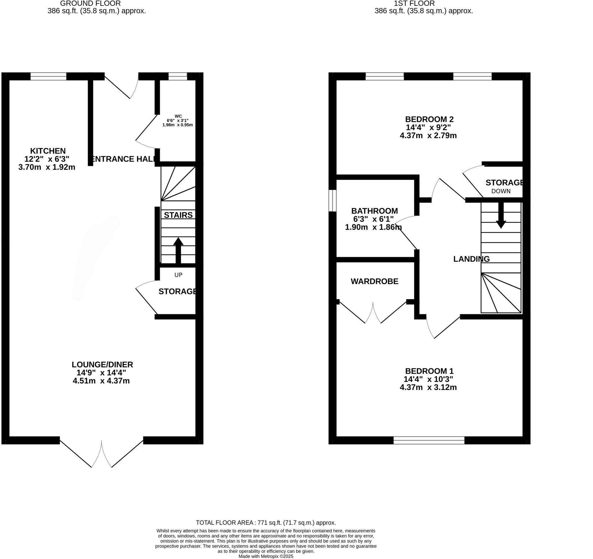
- Sqft (est)
- 771.77
The heatmap indicates the level of crime in the area. The color of the heatmap indicates the crime severity and recency.
Metrics Year-on-Year
- Average area value
- 198,571.00 £Decreased by 9.25 %
- Est sale value
- 188,311.88 £Decreased by 3.56 %
- Average area rental value
- 1,250.00 £/moIncreased by 16.28 %
- Est letting value
- 771.77 £/moUnchanged by 0.00 %
- Est rental Yield
- 7.55 %Increased by 27.97 %
- Crime Rate
- 7.00 %Unchanged by 0.00 %
Agent Activity
Yopa created the listing.
Nearby Schools
| Name | Type | Ofsted | Distance |
|---|---|---|---|
| Keyham Barton Catholic Primary School | Academy Converter | Good | 0.59 KM |
| Weston Mill Community Primary Academy | Academy Converter | Good | 0.66 KM |
| Sure Start Lark Children'S Centre | Children's Centre | 0.67 KM | |
| Ham Drive Nursery School And Day Care | Local Authority Nursery School | Good | 0.75 KM |
| Mayflower Academy | Academy Sponsor Led | Outstanding | 0.75 KM |
Images
Nearby Streets
| Name | Average Price | Average Sqft | Distance |
|---|---|---|---|
| Drummond Close | £ 190,000 | 0 | 0.00 KM |
| Second Avenue | £ 145,000 | 0 | 0.00 KM |
| Allenby Road | £ 175,000 | 0 | 0.00 KM |
| Hope Close | £ 0 | 0 | 0.00 KM |
| Bridwell Lane North | £ 0 | 0 | 0.00 KM |
Nearby Transport
| Name | NLC | TLC | Distance |
|---|---|---|---|
| Keyham | 3571 | KEY | 0.84 KM |
| Dockyard (Devonport) | 3588 | DOC | 1.24 KM |
| Devonport | 3579 | DPT | 1.60 KM |
| St Budeaux Ferry Road | 3590 | SBF | 1.84 KM |
| St Budeaux Victoria Road | 3592 | SBV | 1.93 KM |
Nearby Listings
| Address | Price | Type | Score | Distance |
|---|---|---|---|---|
| Wordsworth Road, Plymouth, PL2 | £ 270,000 | BUY | 6 / 10 | 0.00 KM |
| Wordsworth Road, Plymouth, Devon, PL2 | £ 210,000 | BUY | 8 / 10 | 0.01 KM |
| Grassendale Avenue, Plymouth, Devon, PL2 2SN | £ 245,000 | BUY | 7 / 10 | 0.12 KM |
| Grassendale Avenue, Plymouth | £ 250,000 | BUY | 5 / 10 | 0.12 KM |
| Wordsworth Road, Plymouth, Devon | £ 170,000 | BUY | 6 / 10 | 0.20 KM |
Nearby Properties
| Address | Price | Distance |
|---|---|---|
| 70 Grassendale Avenue | £ 165,000 | 0.12 KM |
| 14 Grassendale Avenue | £ 215,000 | 0.12 KM |
| 55a Grassendale Avenue | £ 157,000 | 0.12 KM |
| 50 Grassendale Avenue | £ 232,500 | 0.12 KM |
| 72 Grassendale Avenue | £ 205,000 | 0.12 KM |