Chancellors says ..
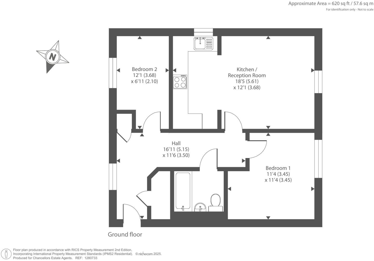
A well presented ground floor two bedroom apartment positioned on the popular Windrush Place development offered for sale at a 25% share on the shared ownership scheme and with no onwards chain.
Property Oracle says ..
The property is a 2-bedroom flat located in Witney, Oxfordshire. The area has a mix of property types and prices, with nearby flats ranging from £66,500 to £229,950. The average house price in the area is £197,829, significantly higher than the list price of this property. The property appears to be in good condition based on the provided images, and is situated in a modern development. While the proximity to schools and transportation is not explicitly detailed, the location within Witney suggests reasonable access to amenities. The lack of information regarding plot size and square footage prevents a comprehensive assessment of land and price per square foot.
Therefore, we give this property 6 / 10. *Disclaimer: This is our option and does constitute a recommendation or financial advice. Do your own research. *
- Price
- 6
- Condition
- 8
- Location
- 7
- Land
- 3
- Bedrooms
- 2
- Bathrooms
- 1
The heatmap indicates the level of crime in the area. The color of the heatmap indicates the crime severity and recency.
Metrics Year-on-Year
- Average area value
- 270,000.00 £Increased by 41.58 %
- Average area rental value
- 936.00 £/moDecreased by 3.51 %
- Est rental Yield
- 4.16 %Decreased by 31.80 %
- Crime Rate
- 62.00 %Unchanged by 0.00 %
Agent Activity
Chancellors created the listing.
Nearby Schools
| Name | Type | Ofsted | Distance |
|---|---|---|---|
| Windrush Church Of England Primary School | Free Schools | 0.28 KM | |
| West Witney Primary School | Community School | Good | 1.41 KM |
| Our Lady Of Lourdes Catholic Primary School, Witney | Academy Converter | Good | 1.73 KM |
| Queen Emma'S Primary School | Academy Converter | Good | 2.49 KM |
| Tower Hill Community Primary School | Academy Converter | Requires improvement | 2.93 KM |
Images
Nearby Streets
| Name | Average Price | Average Sqft | Distance |
|---|---|---|---|
| Patrick Steptoe Close | £ 357,500 | 0 | 0.00 KM |
| Hurricane Close | £ 0 | 0 | 0.00 KM |
| Flamingo Way | £ 0 | 0 | 0.00 KM |
| Centenary Way | £ 364,995 | 0 | 0.00 KM |
| Glenmore Business Centre | £ 0 | 0 | 0.00 KM |
Nearby Transport
| Name | NLC | TLC | Distance |
|---|---|---|---|
| Finstock | 3012 | FIN | 9.48 KM |
Nearby Listings
| Address | Price | Type | Score | Distance |
|---|---|---|---|---|
| Moggridge Walk, Witney, OX29 | £ 57,500 | BUY | 6 / 10 | 0.00 KM |
| Moggridge Walk, Witney, OX29 | £ 92,000 | BUY | 5 / 10 | 0.04 KM |
| Mossie Walk, Witney, OX29 | £ 210,000 | BUY | 6 / 10 | 0.06 KM |
| Mossie Walk, Witney, OX29 | £ 200,000 | BUY | 6 / 10 | 0.06 KM |
| Centenary Way, Merlin House Centenary Way, OX29 | £ 97,500 | BUY | 7 / 10 | 0.07 KM |
Nearby Properties
| Address | Price | Distance |
|---|---|---|
| Magnolia Cottage | £ 390,000 | 0.76 KM |
| Cherry Tree Cottage | £ 555,000 | 0.76 KM |
| 59 Sherbourne Road | £ 280,000 | 0.77 KM |
| 65 Sherbourne Road | £ 430,000 | 0.77 KM |
| 9 Sherbourne Road | £ 218,500 | 0.77 KM |