Redwood Gardens, Writtle, Chelmsford CM1
By Fine & Country
£ 1,025,000
Reviews
3 out of 5 stars
Fine & Country says ..
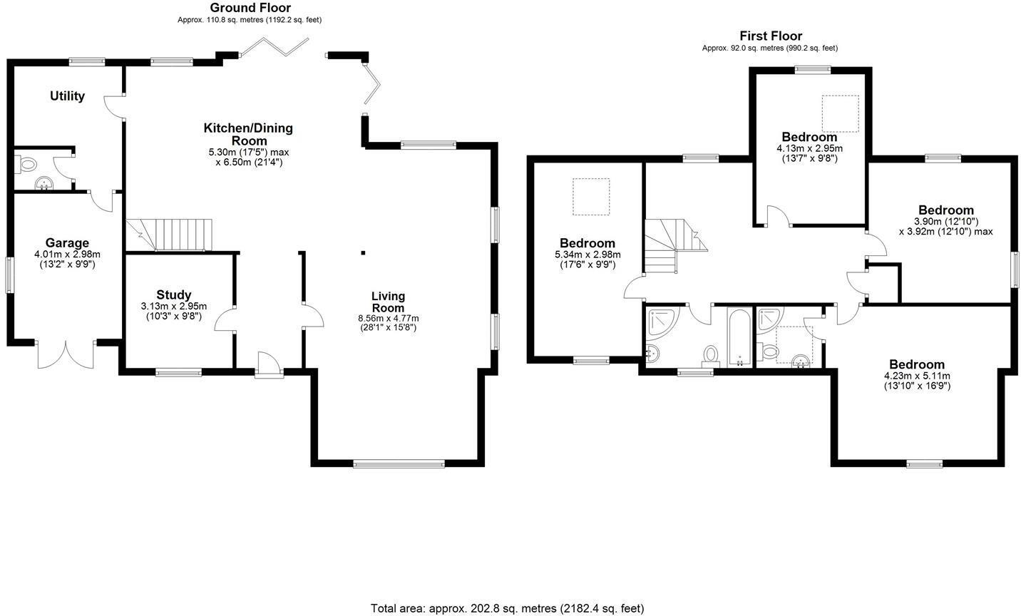
A stylish 4 bedroom detached property in a private development conveniently located within walking distance of Writtle village centre. Energy-efficient features, principal en-suite, bi-folding doors, garaging and private landscaped garden. Easy access into Chelmsford City Centre.
Property Oracle says ..
This is a well-presented detached property in the desirable village of Writtle, near Chelmsford. The house boasts modern interiors, a well-maintained garden, and proximity to good schools, making it an attractive option for families. While the price is relatively high for the area, the property’s condition and location support its value. The lack of square footage information makes it challenging to provide a more precise valuation. Overall, this property offers a blend of rural living and modern convenience.
Therefore, we give this property 7 / 10. *Disclaimer: This is our option and does constitute a recommendation or financial advice. Do your own research. *
- Price
- 6
- Condition
- 9
- Location
- 7
- Land
- 7
- Bedrooms
- 4
- Bathrooms
- 2
The heatmap indicates the level of crime in the area. The color of the heatmap indicates the crime severity and recency.
Metrics Year-on-Year
- Average area value
- 149,800.00 £Decreased by 39.37 %
- Average area rental value
- 1,131.00 £/moIncreased by 5.60 %
- Est rental Yield
- 9.06 %Increased by 74.23 %
- Crime Rate
- 9.00 %Unchanged by 0.00 %
Agent Activity
Fine & Country created the listing.
Nearby Schools
| Name | Type | Ofsted | Distance |
|---|---|---|---|
| Writtle Junior School | Community School | Good | 0.90 KM |
| Writtle Infant School | Community School | Good | 0.90 KM |
| Writtle University College | Higher Education Institutions | Good | 1.57 KM |
| Hylands School | Academy Converter | Requires improvement | 2.62 KM |
| Lawford Mead Primary & Nursery | Academy Converter | Good | 3.34 KM |
Images
Nearby Streets
| Name | Average Price | Average Sqft | Distance |
|---|---|---|---|
| Maple Court | £ 707,500 | 0 | 0.00 KM |
| Roper's Chase | £ 0 | 0 | 0.00 KM |
| Hunt's Close | £ 0 | 0 | 0.00 KM |
Nearby Transport
| Name | NLC | TLC | Distance |
|---|---|---|---|
| Chelmsford | 6836 | CHM | 5.82 KM |
| Ingatestone | 6882 | INT | 7.76 KM |
Nearby Listings
| Address | Price | Type | Score | Distance |
|---|---|---|---|---|
| Redwood Drive, Writtle, Chelmsford | £ 550,000 | BUY | 6 / 10 | 0.00 KM |
| Redwood Gardens, Writtle, Chelmsford CM1 | £ 1,025,000 | BUY | 7 / 10 | 0.00 KM |
| Redwood Drive, Writtle, Chelmsford | £ 575,000 | BUY | 8 / 10 | 0.00 KM |
| Redwood Drive, Writtle, Chelmsford | £ 380,000 | BUY | 8 / 10 | 0.00 KM |
| Redwood Drive, Writtle, Chelmsford | £ 850,000 | BUY | 7 / 10 | 0.01 KM |
Nearby Properties
| Address | Price | Distance |
|---|---|---|
| 18 Redwood Drive | £ 425,000 | 0.00 KM |
| 16 Redwood Drive | £ 865,000 | 0.00 KM |
| 15 Redwood Drive | £ 610,000 | 0.00 KM |
| 8 Redwood Drive | £ 545,000 | 0.01 KM |
| 2 Redwood Drive | £ 835,000 | 0.01 KM |