Southgate Estates says ..
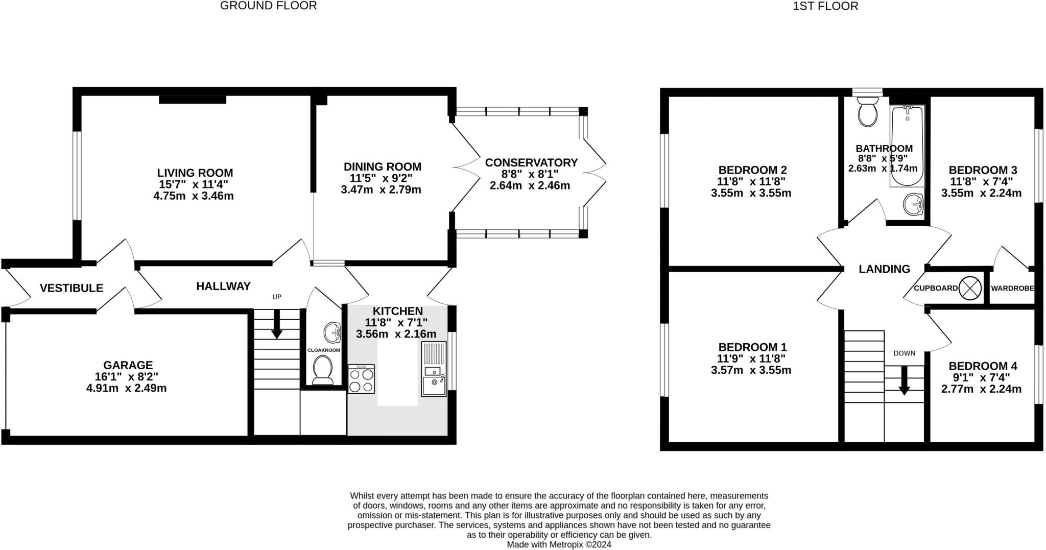
A four bedroom semi-detached house located in the highly sought-after area of Topsham. The property is being sold with no onward chain, and benefits from a garage and parking space, as well as a good-sized enclosed garden to the rear. The internal accommodation briefly consists of an entrance ves...
Property Oracle says ..
Therefore, we give this property 6 / 10. *Disclaimer: This is our option and does constitute a recommendation or financial advice. Do your own research. *
- Price
- 7
- Condition
- 5
- Location
- 8
- Land
- 7
- Bedrooms
- 4
- Bathrooms
- 1
The heatmap indicates the level of crime in the area. The color of the heatmap indicates the crime severity and recency.
Metrics Year-on-Year
- Average area value
- 528,231.00 £Increased by 3.23 %
- Average area rental value
- 1,833.00 £/moIncreased by 1.05 %
- Est rental Yield
- 4.16 %Decreased by 2.12 %
- Crime Rate
- 21.00 %Unchanged by 0.00 %
from 511,722.00 £
from 1,814.00 £/mo
from 4.25 %
from 21.00 %
Agent Activity
Southgate Estates created the listing.
Nearby Schools
| Name | Type | Ofsted | Distance |
|---|---|---|---|
| The Topsham School | Community School | Good | 0.41 KM |
| Trinity Church Of England Voluntary Aided Primary And Nursery School | Voluntary Aided School | 1.79 KM | |
| Clyst Vale Children'S Centre | Children's Centre | 2.80 KM | |
| Clyst St Mary Primary School | Community School | Good | 2.80 KM |
| Lady Seaward'S Church Of England Primary School | Academy Converter | Outstanding | 2.81 KM |
Images
Nearby Streets
| Name | Average Price | Average Sqft | Distance |
|---|---|---|---|
| Swains Court | £ 650,000 | 0 | 0.00 KM |
| Grove Hill | £ 0 | 0 | 0.00 KM |
| Hamilton Road | £ 450,000 | 0 | 0.00 KM |
| Coles Crescent | £ 0 | 0 | 0.00 KM |
| Riverside Road | £ 0 | 0 | 0.00 KM |
Nearby Transport
| Name | NLC | TLC | Distance |
|---|---|---|---|
| Topsham | 5758 | TOP | 0.24 KM |
| Newcourt | 9589 | NCO | 2.09 KM |
| Digby And Sowton | 5753 | DIG | 3.06 KM |
| Exton | 5760 | EXN | 3.24 KM |
| Lympstone Commando | 5762 | LYC | 3.96 KM |
Nearby Listings
| Address | Price | Type | Score | Distance |
|---|---|---|---|---|
| Pound Lane, Topsham | £ 475,000 | BUY | 6 / 10 | 0.00 KM |
| Pound Lane, Topsham | £ 375,000 | BUY | 6 / 10 | 0.03 KM |
| Pound Lane, Topsham | £ 350,000 | BUY | Unknown | 0.03 KM |
| Pound Lane, Topsham, Exeter, EX3 | £ 295,000 | BUY | 6 / 10 | 0.03 KM |
| Topsham, Devon | £ 375,000 | BUY | 6 / 10 | 0.04 KM |
Nearby Properties
| Address | Price | Distance |
|---|---|---|
| 12 Pound Lane | £ 178,500 | 0.03 KM |
| 41 Pound Lane | £ 340,000 | 0.03 KM |
| 50 Pound Lane | £ 154,000 | 0.03 KM |
| 16 Pound Lane | £ 56,000 | 0.03 KM |
| 25 Pound Lane | £ 285,000 | 0.03 KM |