Out Risbygate, Bury St Edmunds
Sheridans logo

Out Risbygate, Bury St Edmunds

By Sheridans

£ 595,000

Reviews

3 out of 5 stars

Sheridans says ..

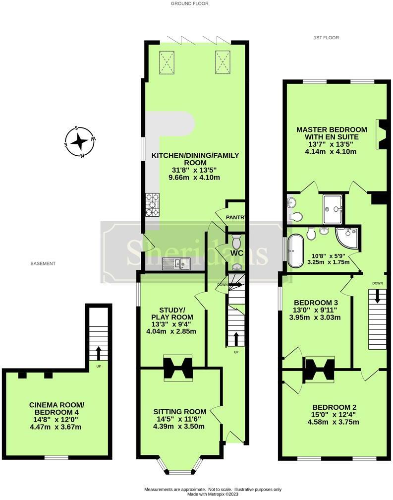
Outstanding four bedroom town house providing stunning accommodation with south facing gardens. Having been completely renovated by the current owners to an extremely high standard, including the addition of a large two storey extension to the rear, we are delighted to offer this beaut...

Property Oracle says ..

This property is a 4-bedroom, 2-bathroom terraced house located in Bury St Edmunds, Suffolk. The property has undergone a significant extension and modernisation, resulting in a contemporary interior with a high-quality finish. The images reveal a modern kitchen, multiple reception areas, and a well-maintained garden. The location is convenient, with nearby schools and transport links. However, the plot size is not specified, and the list price is significantly higher than the average for the area. Further investigation into comparable properties and local market conditions is recommended to determine the accuracy of the list price.

Therefore, we give this property 7 / 10. *Disclaimer: This is our option and does constitute a recommendation or financial advice. Do your own research. *

Price
4
Condition
9
Location
8
Land
7
Bedrooms
4
Bathrooms
2
Sqft (est)
1,348.52

The heatmap indicates the level of crime in the area. The color of the heatmap indicates the crime severity and recency.

Metrics Year-on-Year

Average area value
762,500.00 £
Increased by 121.14 %
from 344,804.00 £
Est sale value
378,934.12 £
Decreased by 41.70 %
from 649,986.64 £
Average area rental value
1,663.00 £/mo
Increased by 17.36 %
from 1,417.00 £/mo
Est letting value
0.00 £/mo
Decreased by 100.00 %
from 1,348.52 £/mo
Est rental Yield
2.62 %
Decreased by 46.86 %
from 4.93 %
Crime Rate
8.00 %
Unchanged by 0.00 %
from 8.00 %

Agent Activity

  • Sheridans created the listing.

Nearby Schools

NameTypeOfstedDistance
Abbeygate Sixth Form CollegeFree Schools 16 To 190.13 KM
West Suffolk CollegeFurther EducationGood0.18 KM
St Edmundsbury Church Of England Voluntary Aided Primary SchoolVoluntary Aided SchoolGood0.44 KM
King Edward Vi Church Of England Voluntary Controlled Upper SchoolVoluntary Controlled SchoolGood0.59 KM
Westgate Community Primary School And NurseryCommunity SchoolGood0.90 KM

Images

DSC_4777.jpg DSC_4814.jpg 1-DSC00304.jpg DSC_4838.jpg DSC_4815.jpg DSC_4787.jpg DSC_4847.jpg 17-DSC00282.jpg 16-DSC00280.jpg DSC_4799.jpg DSC_4792.jpg DSC_4797.jpg DCP_6270.jpg DSC_4837.jpg 11-DSC00262.jpg DSC_4823.jpg 2-DSC00236.jpg DCP_6265.jpg DSC_4830.jpg DSC_4818.jpg DSC_4825.jpg DSC_4841.jpg DCP_6350 - Cropped.png 5-DSC00274.jpg DSC_4846.jpg DSC_4840.jpg 18-DSC00284.jpg DSC_4845.jpg 11.png

Nearby Streets

NameAverage PriceAverage SqftDistance
Queen's Close £ 000.00 KM
Camberley Court £ 000.00 KM
Chevington Close £ 350,00000.00 KM
Briarwood Avenue £ 000.00 KM
Westgarth Gardens £ 300,00000.00 KM

Nearby Transport

NameNLCTLCDistance
Bury St Edmunds7008BSE1.62 KM

Nearby Listings

AddressPriceTypeScoreDistance
Out Risbygate, Bury St Edmunds £ 595,000BUY7 / 100.00 KM
Bury St. Edmunds, Suffolk. £ 240,000BUY5 / 100.07 KM
York Road, Bury St Edmunds £ 375,000BUY7 / 100.12 KM
Bury St. Edmunds, Suffolk £ 350,000BUY8 / 100.13 KM
York Road, Bury St Edmunds £ 375,000BUY6 / 100.13 KM

Nearby Properties

AddressPriceDistance
23 Out Risbygate £ 220,1980.03 KM
34 Out Risbygate £ 224,6500.03 KM
12 Out Risbygate £ 375,0000.03 KM
26 Out Risbygate £ 302,0000.03 KM
32 Out Risbygate £ 245,0000.03 KM