Rosebank Drive, Uddingston, G71
LA

Rosebank Drive, Uddingston, G71

By Lanarkshire Law Estate Agents Limited

£ 115,000

Reviews

2 out of 5 stars

Lanarkshire Law Estate Agents Limited says ..

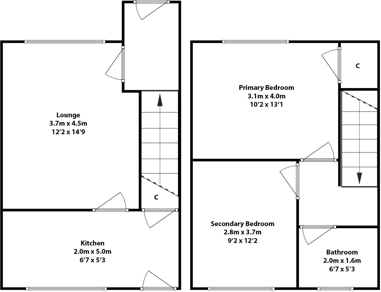
Welcome to Rosebank Drive this charming two-bedroom end-terrace home is quietly positioned in the ever-popular Viewpark area of Uddingston. Well presented throughout and offering a great opportunity for a buyer to put their own stamp on it and modernise to their own taste and style. Early viewing...

Property Oracle says ..

This is a 2-bedroom end-of-terrace property in Uddingston, North Lanarkshire. The property is in need of modernisation but appears to be in reasonable condition. It has a small garden to the front and rear. The property is located 3km from the nearest train station. The listing price of £115,000 seems reasonable given the size and condition of the property.

Therefore, we give this property 5 / 10. *Disclaimer: This is our option and does constitute a recommendation or financial advice. Do your own research. *

Price
7
Condition
5
Location
6
Land
4
Bedrooms
2
Bathrooms
1
Sqft (est)
566.29

The heatmap indicates the level of crime in the area. The color of the heatmap indicates the crime severity and recency.

Metrics Year-on-Year

Average area value
925,000.00 £
Increased by 139.51 %
from 386,204.00 £
Est sale value
248,035.02 £
Increased by 50.52 %
from 164,790.39 £
Average area rental value
825.00 £/mo
Decreased by 10.71 %
from 924.00 £/mo
Est letting value
0.00 £/mo
from 0.00 £/mo
Est rental Yield
1.07 %
Decreased by 62.72 %
from 2.87 %
Crime Rate
0.00 %
from 0.00 %

Agent Activity

  • Lanarkshire Law Estate Agents Limited created the listing.

Images

2 Bedroom End Terrace for Sale Gallery Gallery Gallery Gallery Gallery Gallery Gallery Gallery Gallery Gallery Gallery Gallery Gallery Gallery Gallery Gallery Gallery Gallery Gallery Gallery Gallery Gallery

Nearby Streets

NameAverage PriceAverage SqftDistance
Rosebank Drive £ 000.00 KM
Market Street £ 000.00 KM
Chestnut Crescent £ 000.00 KM
Juniper Road £ 000.00 KM
Langside Avenue £ 000.00 KM

Nearby Transport

NameNLCTLCDistance
Kirkwood9766KWD3.02 KM
Bargeddie9764BGI3.41 KM
Bellshill9714BLH3.49 KM
Uddingston9776UDD3.62 KM
Blairhill9760BAI4.48 KM

Nearby Listings

AddressPriceTypeScoreDistance
Rosebank Drive, Uddingston, G71 £ 115,000BUY5 / 100.00 KM
Heather Gardens, Uddingston, Glasgow £ 219,995BUYUnknown0.09 KM
Chestnut Crescent, Uddingston £ 145,000BUY8 / 100.19 KM
St. Brides Avenue, Uddingston, G71 £ 145,000BUY6 / 100.30 KM
Burnhead Street, Uddingston £ 155,000BUY7 / 100.32 KM