Neville Crescent, Birtley, Chester Le Street, Tyne and Wear, DH3
By YOUR MOVE Chris Stonock
£ 135,000
Reviews
3 out of 5 stars
YOUR MOVE Chris Stonock says ..
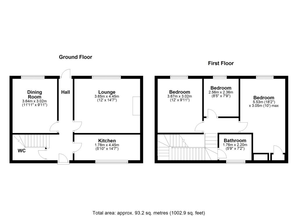
A well positioned three bedroom home situated on a large plot benefiting from an attractive front garden and a car port to the rear. This lovely home is deceptively spacious and it should prove to be the ideal purchase for the family buyer.
Property Oracle says ..
This three-bedroom terraced house in Birtley, Tyne and Wear, presents a potentially attractive option for buyers. The property benefits from a convenient location, with relatively easy access to local primary schools rated ‘Good’ or ‘Outstanding’ by Ofsted. Train stations are within a reasonable distance, offering good transport links. The property itself appears well-maintained from the provided photographs, with a clean and tidy interior. The garden is a desirable addition, offering outdoor space. The list price of £135,000 seems competitive when compared to other similar properties in the area, although a precise square-footage comparison is impossible without that data. Overall, this property offers a good balance of location, condition, and features, making it a suitable option for families or first-time buyers looking for a home in Birtley. A thorough in-person inspection is, however, recommended to confirm the condition and assess the property’s suitability for individual needs.
Therefore, we give this property 6 / 10. *Disclaimer: This is our option and does constitute a recommendation or financial advice. Do your own research. *
- Price
- 7
- Condition
- 7
- Location
- 7
- Land
- 6
- Bedrooms
- 3
- Bathrooms
- 1
The heatmap indicates the level of crime in the area. The color of the heatmap indicates the crime severity and recency.
Metrics Year-on-Year
- Average area value
- 265,000.00 £Increased by 2.60 %
- Average area rental value
- 1,270.00 £/moDecreased by 15.05 %
- Est rental Yield
- 5.75 %Decreased by 17.27 %
- Crime Rate
- 12.00 %Unchanged by 0.00 %
Agent Activity
YOUR MOVE Chris Stonock created the listing.
Nearby Schools
| Name | Type | Ofsted | Distance |
|---|---|---|---|
| Birtley East Community Primary School | Community School | Good | 0.46 KM |
| St Joseph'S Catholic Infant School, Birtley | Academy Converter | 0.49 KM | |
| St Joseph'S Catholic Junior School, Birtley | Academy Converter | 1.02 KM | |
| Ravensworth Terrace Primary School | Community School | Outstanding | 1.06 KM |
| Lord Lawson Of Beamish Academy | Academy Converter | Requires improvement | 1.33 KM |
Images
Nearby Streets
| Name | Average Price | Average Sqft | Distance |
|---|---|---|---|
| Croftside | £ 0 | 0 | 0.00 KM |
| Pleasant Place | £ 0 | 0 | 0.00 KM |
| Mount Pleasant Road | £ 0 | 0 | 0.00 KM |
| Dunelm Close | £ 30,000 | 0 | 0.00 KM |
| Ashgrove Terrace | £ 0 | 0 | 0.00 KM |
Nearby Transport
| Name | NLC | TLC | Distance |
|---|---|---|---|
| Chester-Le-Street | 7736 | CLS | 5.38 KM |
| Heworth | 7766 | HEW | 5.89 KM |
| Manors | 7603 | MAS | 8.36 KM |
| Newcastle | 7728 | NCL | 8.54 KM |
| Dunston | 7744 | DOT | 8.91 KM |
Nearby Listings
| Address | Price | Type | Score | Distance |
|---|---|---|---|---|
| Dennison Crescent, Birtley | £ 77,000 | BUY | Unknown | 0.09 KM |
| Dennison Crescent, Birtley | £ 115,000 | BUY | 6 / 10 | 0.17 KM |
| Croftside, Birtley, Chester Le Street | £ 87,500 | BUY | 6 / 10 | 0.22 KM |
| Gilliland Crescent, Birtley, Chester Le Street | £ 139,950 | BUY | Unknown | 0.29 KM |
| Jacksons Place, Birtley, DH3 | £ 320,000 | BUY | 7 / 10 | 0.29 KM |
Nearby Properties
| Address | Price | Distance |
|---|---|---|
| 33 Dennison Crescent | £ 99,950 | 0.09 KM |
| 48 Dennison Crescent | £ 90,000 | 0.09 KM |
| 44 Dennison Crescent | £ 100,000 | 0.09 KM |
| 32 Dennison Crescent | £ 78,000 | 0.09 KM |
| 30 Dennison Crescent | £ 77,000 | 0.09 KM |