Kallars says ..
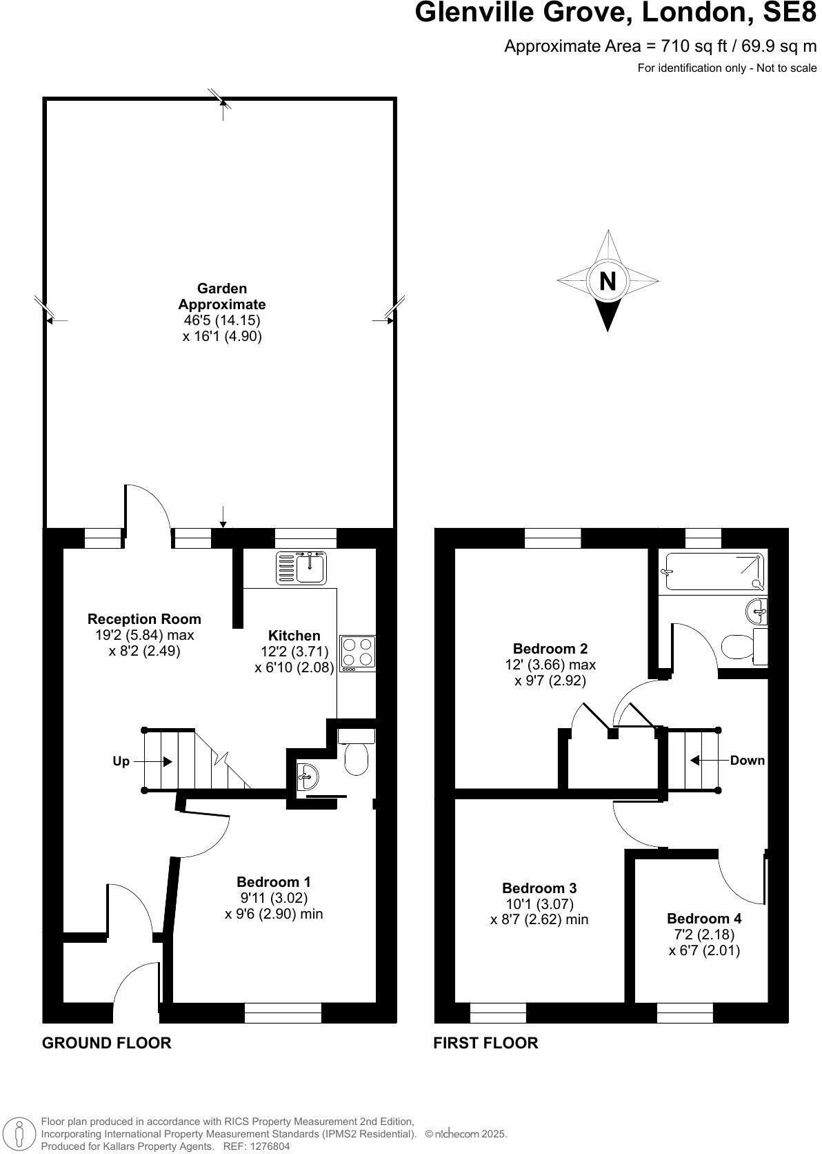
Discover this charming house for sale in Glenville Grove, London, boasting 3 bedrooms, 1 bathroom, and 2 reception rooms. Perfect for families seeking their dream home.
Property Oracle says ..
This four-bedroom terraced house in Glenville Grove, New Cross, is conveniently located near several transportation options, including Deptford and New Cross Gate stations. The property benefits from a small garden, adding to its appeal. While the property appears to be in good condition based on the images, a more in-depth survey would be recommended to confirm this. The list price of £600,000 seems slightly high compared to the average price per sqft in the area (£671), especially considering the size of the plot. However, the property is larger than the average property in the area. Nearby comparable properties support a higher price point. More information regarding the condition and plot size of comparable properties would be needed to provide a more definitive assessment of the price.
Therefore, we give this property 7 / 10. *Disclaimer: This is our option and does constitute a recommendation or financial advice. Do your own research. *
- Price
- 7
- Condition
- 8
- Location
- 8
- Land
- 6
- Bedrooms
- 4
- Bathrooms
- 1
- Sqft (est)
- 1,290.00
- Lot (est)
- 710.00
The heatmap indicates the level of crime in the area. The color of the heatmap indicates the crime severity and recency.
Metrics Year-on-Year
- Average area value
- 479,495.00 £Increased by 10.34 %
- Est sale value
- 817,860.00 £Increased by 1.28 %
- Average area rental value
- 2,475.00 £/moIncreased by 16.09 %
- Est letting value
- 3,870.00 £/moUnchanged by 0.00 %
- Est rental Yield
- 6.19 %Increased by 5.09 %
- Crime Rate
- 6.00 %Unchanged by 0.00 %
Agent Activity
Kallars created the listing.
Nearby Schools
| Name | Type | Ofsted | Distance |
|---|---|---|---|
| Addey And Stanhope School | Voluntary Aided School | Good | 0.41 KM |
| Grinling Gibbons Primary School | Community School | Good | 0.47 KM |
| St Joseph'S Catholic Primary School | Voluntary Aided School | Good | 0.60 KM |
| Goldsmiths College, University Of London | Higher Education Institutions | 0.64 KM | |
| Deptford Green School | Community School | Requires improvement | 0.67 KM |
Images
Nearby Streets
| Name | Average Price | Average Sqft | Distance |
|---|---|---|---|
| Mornington Road | £ 313,333 | 0 | 0.00 KM |
| New Cross Road | £ 0 | 0 | 0.00 KM |
| Payne Street | £ 450,000 | 0 | 0.00 KM |
| Valley Road | £ 637,500 | 0 | 0.00 KM |
| Elgar Close | £ 0 | 0 | 0.00 KM |
Nearby Transport
| Name | NLC | TLC | Distance |
|---|---|---|---|
| Deptford | 5145 | DEP | 0.51 KM |
| New Cross Gate | 5345 | NXG | 1.11 KM |
| St Johns | 5059 | SAJ | 1.25 KM |
| Brockley | 5404 | BCY | 1.62 KM |
| Greenwich | 5146 | GNW | 1.91 KM |
Nearby Listings
| Address | Price | Type | Score | Distance |
|---|---|---|---|---|
| Glenville Grove, London, SE8 | £ 600,000 | BUY | 7 / 10 | 0.00 KM |
| Glenville Grove, London, SE8 | £ 700,000 | BUY | 7 / 10 | 0.02 KM |
| Mornington Road, London, SE8 | £ 625,000 | BUY | 8 / 10 | 0.06 KM |
| 15 Stanley Street, Lewisham, London, SE8 4BG | £ 335,000 | BUY | 4 / 10 | 0.07 KM |
| 15 Stanley Street, New Cross, SE8 4BN | £ 300,000 | BUY | 4 / 10 | 0.08 KM |
Nearby Properties
| Address | Price | Distance |
|---|---|---|
| 195 Glenville Grove | £ 106,000 | 0.03 KM |
| 197 Glenville Grove | £ 113,500 | 0.03 KM |
| 193 Glenville Grove | £ 125,000 | 0.03 KM |
| 187 Glenville Grove | £ 287,000 | 0.03 KM |
| 191 Glenville Grove | £ 52,000 | 0.03 KM |