Northwood says ..
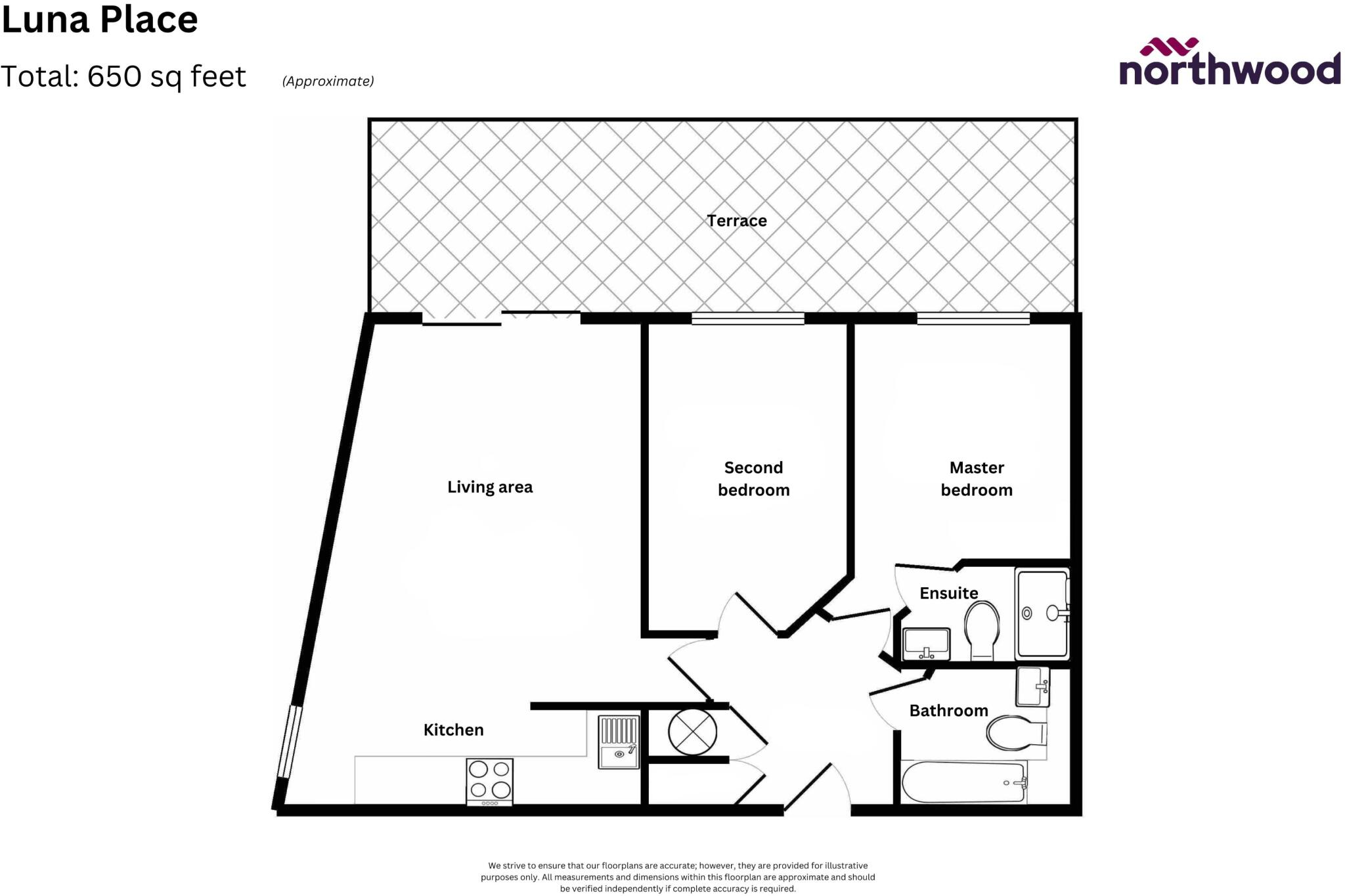
A modern and well-presented two-bedroom, two-bathroom first-floor apartment, with a stunning roof terrace. Conveniently located within walking distance of the main Thameslink station, offering a convenient 20-minute commute into London St Pancras.
Property Oracle says ..
Therefore, we give this property 7 / 10. *Disclaimer: This is our option and does constitute a recommendation or financial advice. Do your own research. *
- Price
- 8
- Condition
- 8
- Location
- 8
- Land
- 6
- Bedrooms
- 2
- Bathrooms
- 2
- Sqft (est)
- 650.00
The heatmap indicates the level of crime in the area. The color of the heatmap indicates the crime severity and recency.
Metrics Year-on-Year
- Average area value
- 879,375.00 £Increased by 25.99 %
- Est sale value
- 655,200.00 £Increased by 50.90 %
- Average area rental value
- 1,568.00 £/moDecreased by 10.50 %
- Est letting value
- 650.00 £/moUnchanged by 0.00 %
- Est rental Yield
- 2.14 %Decreased by 28.90 %
- Crime Rate
- 3.00 %Unchanged by 0.00 %
from 697,950.00 £
from 434,200.00 £
from 1,752.00 £/mo
from 650.00 £/mo
from 3.01 %
from 3.00 %
Agent Activity
Northwood created the listing.
Nearby Schools
| Name | Type | Ofsted | Distance |
|---|---|---|---|
| Sa8 Fleetville Family Centre | Children's Centre | 0.23 KM | |
| Fleetville Junior School | Academy Converter | 0.24 KM | |
| Verulam School | Academy Converter | Good | 0.35 KM |
| St Alban & St Stephen Catholic Primary School & Nursery | Voluntary Aided School | Outstanding | 0.47 KM |
| Fleetville Infant And Nursery School | Academy Converter | 0.48 KM |
Images
Nearby Streets
| Name | Average Price | Average Sqft | Distance |
|---|---|---|---|
| Park Avenue | £ 0 | 0 | 0.00 KM |
| Marshals Court | £ 525,000 | 0 | 0.00 KM |
| Fair Cross Way | £ 0 | 0 | 0.00 KM |
| Ramsey Close | £ 0 | 0 | 0.00 KM |
| Garden Close | £ 0 | 0 | 0.00 KM |
Nearby Transport
| Name | NLC | TLC | Distance |
|---|---|---|---|
| St Albans City | 1548 | SAC | 1.23 KM |
| St Albans Abbey | 1562 | SAA | 2.99 KM |
| Park Street | 1561 | PKT | 3.98 KM |
| How Wood (Hertfordshire) | 1563 | HWW | 4.95 KM |
| Bricket Wood | 1560 | BWO | 7.03 KM |
Nearby Listings
| Address | Price | Type | Score | Distance |
|---|---|---|---|---|
| Hatfield Road, St Albans, AL1 | £ 360,000 | BUY | 7 / 10 | 0.00 KM |
| Luna Place, Hatfield Road, St. Albans, Hertfordshire, AL1 | £ 450,000 | BUY | 8 / 10 | 0.02 KM |
| Hatfield Road, St. Albans, Hertfordshire, AL1 | £ 350,000 | BUY | 6 / 10 | 0.06 KM |
| Hatfield Road, St. Albans, Hertfordshire, AL1 | £ 375,000 | BUY | 5 / 10 | 0.06 KM |
| Richmond House, Hatfield Road, St. Albans, AL1 4GL | £ 325,000 | BUY | 6 / 10 | 0.08 KM |
Nearby Properties
| Address | Price | Distance |
|---|---|---|
| 176a Hatfield Road | £ 300,000 | 0.08 KM |
| 167a Hatfield Road | £ 145,000 | 0.10 KM |
| 165 Hatfield Road | £ 275,000 | 0.10 KM |
| 12 Sandfield Road | £ 907,500 | 0.13 KM |
| 42 Sandfield Road | £ 1,080,000 | 0.13 KM |