Market Gardens, Torrington, Devon, EX38
By Webbers Property Services
£ 415,000
Reviews
3 out of 5 stars
Webbers Property Services says ..
*OPEN SITE 19/10/2024 10am-2pm* GIVE US A CALL TO BOOK YOUR SLOT AND SEE THIS EXCLUSIVE DEVELOPMENT IN THE HEART OF GREAT TORRINGTON Charming 4-bedroom detached house in a sought-after town location. Boasting a spacious garden, off-street parking, and situated in a new and exclusive developm...
Property Oracle says ..
This property is a 4-bedroom detached house located in Great Torrington, Devon. The listing mentions it is part of a new, exclusive development, suggesting modern construction and potentially desirable amenities. While the provided images are virtually staged, they show a property that appears to be in excellent condition, with a modern design and finishes. The property includes a garden, a feature often sought after by buyers. The list price of £415,000 is slightly higher than the average price of £399,528 for the area, but considering the property’s apparent new condition, inclusion of a garden, and location within a new development, the price may be justifiable. More information on the plot size would be needed to fully assess the land value. The proximity to Great Torrington Bluecoat Church of England Primary School and Great Torrington School is a positive aspect for families.
Therefore, we give this property 7 / 10. *Disclaimer: This is our option and does constitute a recommendation or financial advice. Do your own research. *
- Price
- 7
- Condition
- 9
- Location
- 8
- Land
- 7
- Bedrooms
- 4
- Bathrooms
- 2
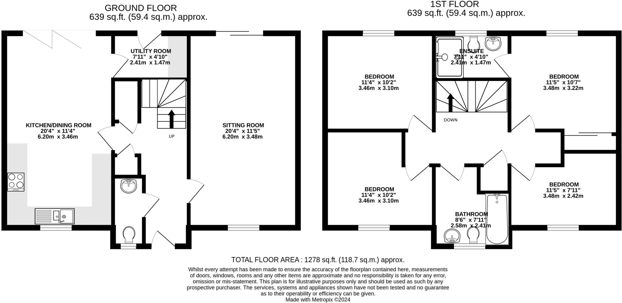
- Sqft (est)
- 1,278.00
The heatmap indicates the level of crime in the area. The color of the heatmap indicates the crime severity and recency.
Metrics Year-on-Year
- Average area value
- 283,167.00 £Increased by 7.70 %
- Est sale value
- 447,300.00 £Increased by 33.59 %
- Average area rental value
- 723.00 £/moIncreased by 8.72 %
- Est letting value
- 0.00 £/mo
- Est rental Yield
- 3.06 %Increased by 0.66 %
- Crime Rate
- 38.00 %Unchanged by 0.00 %
Agent Activity
Webbers Property Services created the listing.
Nearby Schools
| Name | Type | Ofsted | Distance |
|---|---|---|---|
| Bluecoat Children'S Centre | Children's Centre | 1.00 KM | |
| Great Torrington Bluecoat Church Of England Primary School | Voluntary Controlled School | Good | 1.00 KM |
| Great Torrington School | Academy Converter | Good | 1.38 KM |
| Marland School | Foundation Special School | Good | 5.91 KM |
| Monkleigh Primary School | Community School | Good | 6.11 KM |
Images
Nearby Streets
| Name | Average Price | Average Sqft | Distance |
|---|---|---|---|
| Church Lane | £ 267,500 | 0 | 0.00 KM |
| White's Lane | £ 290,000 | 0 | 0.00 KM |
| Villa Road | £ 177,500 | 0 | 0.00 KM |
| Torrington Pannier Market | £ 475,000 | 0 | 0.00 KM |
| Fore Street | £ 0 | 0 | 0.00 KM |
Nearby Listings
| Address | Price | Type | Score | Distance |
|---|---|---|---|---|
| Market Gardens, Torrington, Devon, EX38 | £ 415,000 | BUY | 7 / 10 | 0.00 KM |
| Market Gardens, Torrington, Devon, EX38 | £ 395,000 | BUY | 7 / 10 | 0.01 KM |
| Market Gardens, Torrington, Devon, EX38 | £ 460,000 | BUY | 8 / 10 | 0.01 KM |
| Market Gardens, Torrington, Devon, EX38 | £ 465,000 | BUY | 8 / 10 | 0.02 KM |
| South Street, Great Torrington, EX38 | £ 450,000 | BUY | 7 / 10 | 0.03 KM |
Nearby Properties
| Address | Price | Distance |
|---|---|---|
| 40 South Street | £ 199,750 | 0.10 KM |
| 48 South Street | £ 355,000 | 0.10 KM |
| 41 South Street | £ 79,950 | 0.10 KM |
| 45 South Street | £ 168,000 | 0.10 KM |
| 8 Bluecoat Villas | £ 245,000 | 0.17 KM |