Brookhill Street, Stapleford
RO

Brookhill Street, Stapleford

By Robert Ellis

£ 550,000

Reviews

3 out of 5 stars

Robert Ellis says ..

Robert Ellis are delighted to bring to the market this unique opportunity for a self-builder wishing to build the perfect mix of four properties within this popular and highly regarded location in Stapleford. The site, to be know as Brookhill Mews is a unique development brought to you by Orchard...

Property Oracle says ..

Therefore, we give this property 6 / 10. *Disclaimer: This is our option and does constitute a recommendation or financial advice. Do your own research. *

Price
4
Condition
8
Location
7
Land
7
Bedrooms
0
Bathrooms
0
Sqft (est)
258.15

The heatmap indicates the level of crime in the area. The color of the heatmap indicates the crime severity and recency.

Metrics Year-on-Year

Average area value
218,333.00 £
Increased by 8.06 %
from 202,047.00 £
Est sale value
67,377.15 £
Increased by 15.49 %
from 58,341.90 £
Average area rental value
794.00 £/mo
Decreased by 0.25 %
from 796.00 £/mo
Est letting value
0.00 £/mo
from 0.00 £/mo
Est rental Yield
4.36 %
Decreased by 7.82 %
from 4.73 %
Crime Rate
7.00 %
Unchanged by 0.00 %
from 7.00 %

Agent Activity

  • Robert Ellis created the listing.

Nearby Schools

NameTypeOfstedDistance
William Lilley Infant And Nursery SchoolCommunity SchoolGood0.20 KM
Fairfield Spencer AcademyAcademy ConverterGood0.63 KM
George Spencer AcademyAcademy ConverterOutstanding1.22 KM
St John'S Cofe Primary SchoolVoluntary Controlled SchoolGood1.40 KM
Albany Junior SchoolCommunity SchoolGood1.49 KM

Images

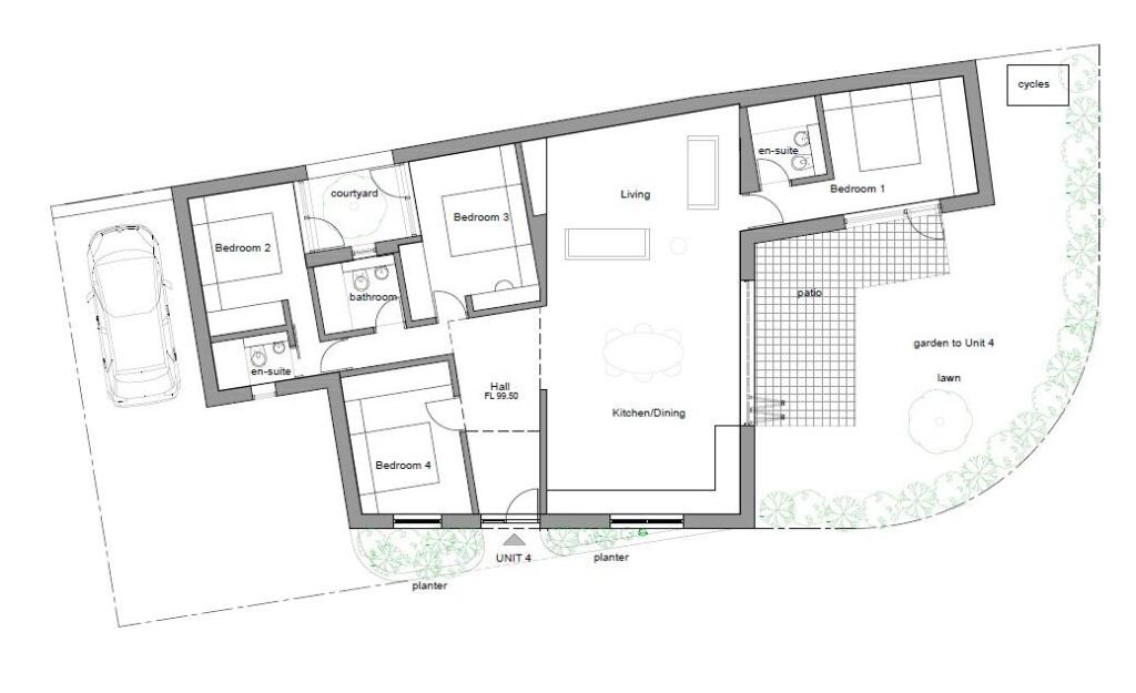
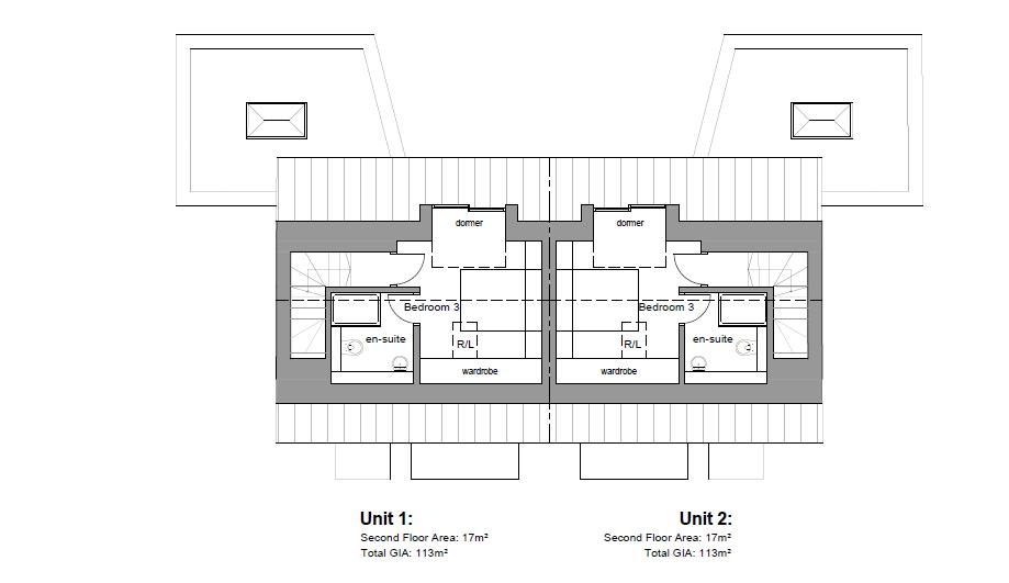
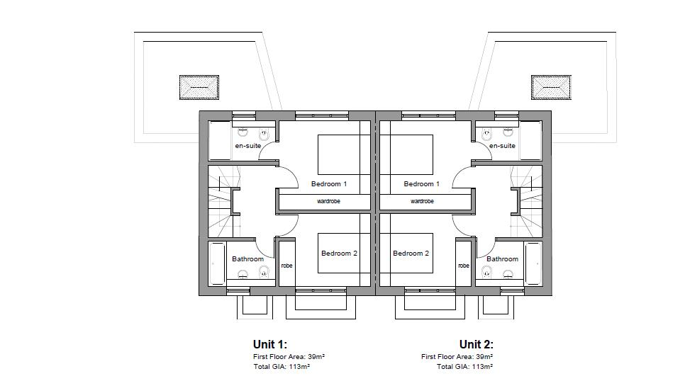
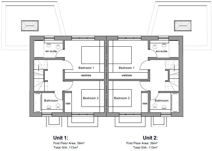
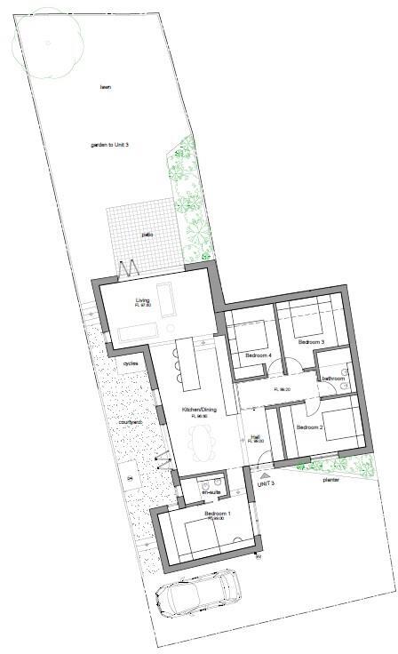
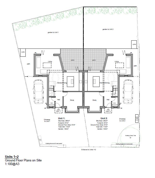
CGI_Unit_3.jpg CGI_Unit_3_interior.jpg CGI_Unit_4.jpg CGI_Unit_4_interior.jpg CGI_Units_3+4.jpg StreetScene_Down_v4.jpeg StreetScene_Up_v4.jpeg locations of 4.jpg plan layout.jpg plot 2.jpg PLOT.jpg semis.jpg site plan.jpg 1 2 x.png 1 and 2 x.png 1 and 2 xx.png 1 and 2.png Drone_1.jpeg Drone_2.jpeg Drone_3.jpeg BUNGALOW PLANS 2.jpg BUNGALOW PLANS.jpg UNIT 3.jpg UNIT 4.jpg Drive_2.jpeg Drive_3.jpeg Drive_2.jpeg Drive_3.jpeg

Nearby Streets

NameAverage PriceAverage SqftDistance
St James Street £ 250,00000.00 KM
The Mount £ 170,00000.00 KM
Warren Avenue Extension £ 170,00000.00 KM
Dalton Close £ 000.00 KM
Mark Street £ 000.00 KM

Nearby Transport

NameNLCTLCDistance
Long Eaton1829LGE4.46 KM
Attenborough1624ATB5.45 KM
Ilkeston7783ILN6.50 KM
East Midlands Parkway1901EMD7.00 KM
Beeston1625BEE7.72 KM

Nearby Listings

AddressPriceTypeScoreDistance
Brookhill Street, Stapleford £ 550,000BUY6 / 100.00 KM
Brookhill Street, Stapleford, Nottingham £ 229,950BUY7 / 100.03 KM
Birley Street, Stapleford, Nottingham £ 225,000BUY6 / 100.04 KM
Birley Street, Stapleford, Nottingham £ 220,000BUY7 / 100.07 KM
Birley Street, Stapleford £ 197,950BUYUnknown0.08 KM

Nearby Properties

AddressPriceDistance
88 Brookhill Street £ 119,0000.02 KM
76 Brookhill Street £ 95,0000.02 KM
57 Brookhill Street £ 92,0000.04 KM
71 Brookhill Street £ 225,0000.04 KM
67 Brookhill Street £ 175,0000.06 KM