Allans Meadow, Neston, Cheshire, CH64
By Bradshaw Farnham & Lea
£ 300,000
Reviews
3 out of 5 stars
Bradshaw Farnham & Lea says ..
Located in a sought-after area close to local amenities in Neston, this charming detached house offers an exciting opportunity for buyers looking to put their own stamp on a property. With no chain, this is a fantastic chance to move quickly into your new home
Property Oracle says ..
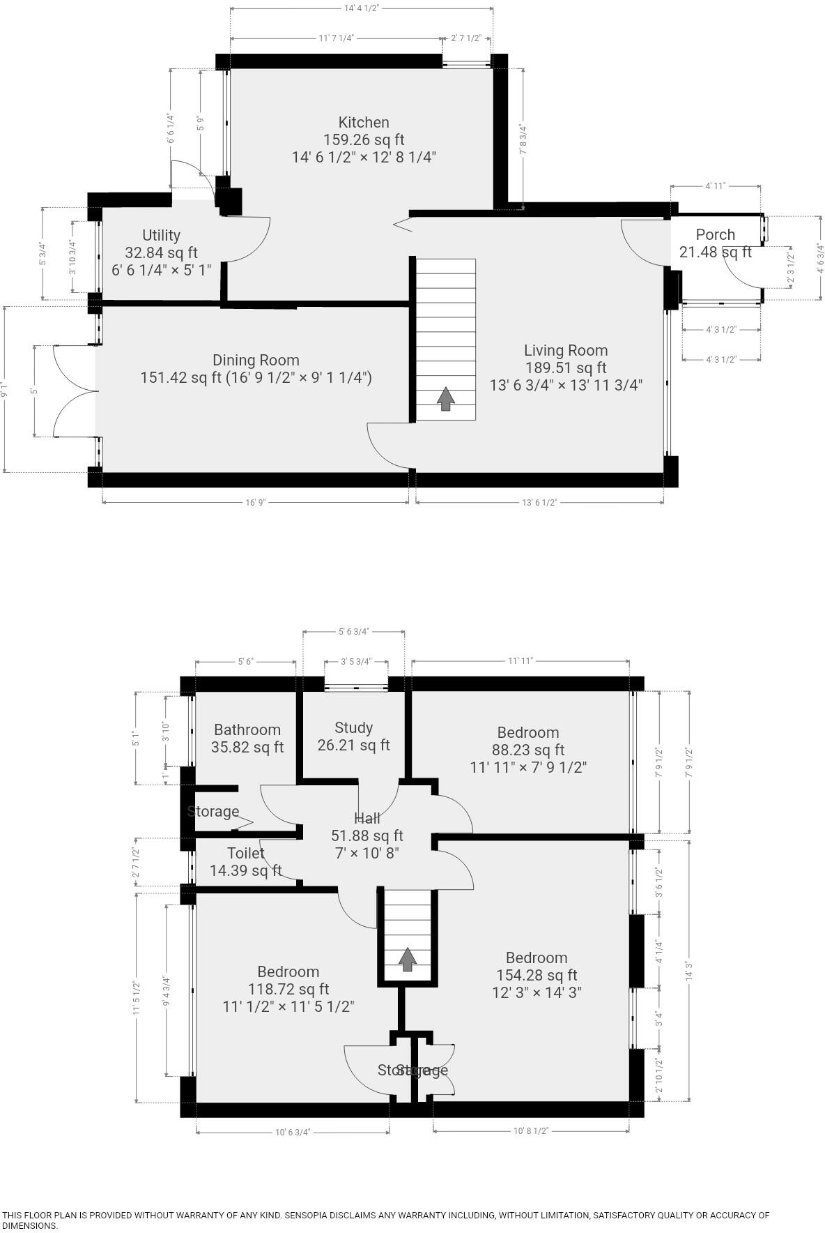
This property is a 4-bedroom, 1-bathroom house located in Neston, Cheshire. The property is listed at £300,000 and has 1,044.04 sqft of living space. The average price for similar properties in the area is £398,553 with an average size of 1,144 sqft. This puts the price per sqft at £348.00. The property appears to be in need of some modernisation and updating, as seen in the provided images. The kitchen and bathrooms are dated and could benefit from renovation. The property does have a garden, which is a positive aspect. The location is close to Neston town centre, Neston Primary School and the Wirral Way, making it convenient for families. However, the property is smaller than the average property in the area and requires modernisation, which may affect its overall value.
Therefore, we give this property 6 / 10. *Disclaimer: This is our option and does constitute a recommendation or financial advice. Do your own research. *
- Price
- 6
- Condition
- 4
- Location
- 8
- Land
- 7
- Bedrooms
- 4
- Bathrooms
- 1
- Sqft (est)
- 1,044.04
The heatmap indicates the level of crime in the area. The color of the heatmap indicates the crime severity and recency.
Metrics Year-on-Year
- Average area value
- 440,000.00 £Increased by 18.62 %
- Est sale value
- 303,815.64 £Increased by 1.75 %
- Average area rental value
- 1,625.00 £/moIncreased by 9.28 %
- Est letting value
- 1,044.04 £/moUnchanged by 0.00 %
- Est rental Yield
- 4.43 %Decreased by 7.90 %
- Crime Rate
- 2.00 %Unchanged by 0.00 %
Agent Activity
Bradshaw Farnham & Lea created the listing.
Nearby Schools
| Name | Type | Ofsted | Distance |
|---|---|---|---|
| Neston Primary School | Community School | Good | 0.45 KM |
| St Winefride'S Catholic Primary School | Voluntary Aided School | Good | 1.32 KM |
| Neston High School | Academy Converter | Good | 1.75 KM |
| Woodfall Primary School | Community School | Outstanding | 2.05 KM |
| Neston Children'S Centre | Children's Centre | 2.06 KM |
Images
Nearby Streets
| Name | Average Price | Average Sqft | Distance |
|---|---|---|---|
| Pykes Weint | £ 0 | 0 | 0.00 KM |
| Avon Close | £ 217,500 | 0 | 0.00 KM |
| Penningtons Weint | £ 0 | 0 | 0.00 KM |
| Orchard Drive | £ 360,000 | 0 | 0.00 KM |
| Talbot Gardens | £ 0 | 0 | 0.00 KM |
Nearby Transport
| Name | NLC | TLC | Distance |
|---|---|---|---|
| Neston | 2139 | NES | 0.83 KM |
| Heswall | 2138 | HSW | 5.10 KM |
| Hawarden Bridge | 2146 | HWB | 8.22 KM |
| Flint | 2513 | FLN | 8.47 KM |
| Shotton | 2546 | SHT | 8.54 KM |
Nearby Listings
| Address | Price | Type | Score | Distance |
|---|---|---|---|---|
| Allans Meadow, Neston | £ 335,000 | BUY | 6 / 10 | 0.00 KM |
| Allans Meadow, Neston, Cheshire, CH64 | £ 300,000 | BUY | 6 / 10 | 0.00 KM |
| Allans Meadow, Neston | £ 385,000 | BUY | 7 / 10 | 0.06 KM |
| Flint Meadow, Neston | £ 410,000 | BUY | 6 / 10 | 0.12 KM |
| Allans Meadow, Neston, Cheshire, CH64 | £ 269,000 | BUY | 7 / 10 | 0.13 KM |
Nearby Properties
| Address | Price | Distance |
|---|---|---|
| 5 Flint Meadow | £ 365,000 | 0.07 KM |
| 10 Meadow Close | £ 220,000 | 0.09 KM |
| 8 Meadow Close | £ 152,500 | 0.09 KM |
| 5 Meadow Close | £ 160,000 | 0.10 KM |
| 3 Meadow Close | £ 146,500 | 0.10 KM |