The Green, Lindal, Ulverston, LA12 0LX
By Poole Townsend
£ 525,000
Reviews
4 out of 5 stars
Poole Townsend says ..
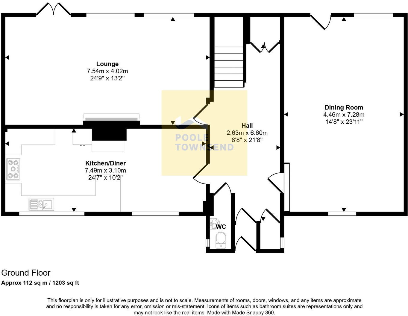
This spacious, converted barn is situated in a courtyard style development, just off the village green in Lindal in Furness. The accommodation is superbly proportioned throughout, featuring two generous reception rooms, both with direct access to the garden and one also featuring a bar. The ki...
Property Oracle says ..
This property is a barn conversion located in Lindal, Ulverston. It boasts 5 bedrooms and 1 bathroom, spanning over 2,510 square feet. The property benefits from a sizable plot of 2,852 square feet, including a well-maintained garden. The location is desirable, with nearby primary schools receiving good Ofsted ratings and train stations within a reasonable distance. The average house price in the area is significantly higher than the listed price of £525,000, suggesting potential value. However, the provided images show that while the property is habitable, some areas could benefit from modernisation or updating to enhance its overall appeal and market value.
Therefore, we give this property 8 / 10. *Disclaimer: This is our option and does constitute a recommendation or financial advice. Do your own research. *
- Price
- 9
- Condition
- 7
- Location
- 8
- Land
- 8
- Bedrooms
- 5
- Bathrooms
- 1
- Sqft (est)
- 2,510.57
- Lot (est)
- 2,852.44
The heatmap indicates the level of crime in the area. The color of the heatmap indicates the crime severity and recency.
Metrics Year-on-Year
- Average area value
- 238,317.00 £Decreased by 8.72 %
- Est sale value
- 514,666.85 £Decreased by 9.29 %
- Average area rental value
- 773.00 £/moDecreased by 3.38 %
- Est letting value
- 0.00 £/mo
- Est rental Yield
- 3.89 %Increased by 5.71 %
- Crime Rate
- 65.00 %Unchanged by 0.00 %
Agent Activity
Poole Townsend created the listing.
Nearby Schools
| Name | Type | Ofsted | Distance |
|---|---|---|---|
| Lindal And Marton Primary School | Community School | Good | 0.42 KM |
| Our Lady Of The Rosary Catholic Primary School | Voluntary Aided School | Good | 2.57 KM |
| Pennington Cofe School | Voluntary Controlled School | Good | 3.02 KM |
| Chapel Street Infants And Nursery School | Community School | Good | 3.41 KM |
| George Romney Junior School | Community School | Good | 3.52 KM |
Images
Nearby Streets
| Name | Average Price | Average Sqft | Distance |
|---|---|---|---|
| Church Close | £ 414,950 | 0 | 0.00 KM |
| East View | £ 0 | 0 | 0.00 KM |
| Silver Street | £ 0 | 0 | 0.00 KM |
| Parkside Close | £ 0 | 0 | 0.00 KM |
Nearby Transport
| Name | NLC | TLC | Distance |
|---|---|---|---|
| Dalton (Cumbria) | 1957 | DLT | 3.72 KM |
| Askam | 1953 | ASK | 6.12 KM |
| Ulverston | 2010 | ULV | 6.25 KM |
| Kirkby-In-Furness | 1959 | KBF | 7.70 KM |
| Roose | 1962 | ROO | 8.04 KM |
Nearby Listings
| Address | Price | Type | Score | Distance |
|---|---|---|---|---|
| The Green, Lindal, Ulverston, LA12 0LX | £ 525,000 | BUY | 8 / 10 | 0.00 KM |
| Queensberry Court, Lindal, Ulverston | £ 340,000 | BUY | Unknown | 0.15 KM |
| Ulverston Road, Lindal, Ulverston | £ 195,000 | BUY | 5 / 10 | 0.18 KM |
| Mount Pleasant, Lindal, Ulverston | £ 195,000 | BUY | 6 / 10 | 0.24 KM |
| Lindal, Ulverston, Cumbria | £ 145,000 | BUY | 6 / 10 | 0.25 KM |
Nearby Properties
| Address | Price | Distance |
|---|---|---|
| 5 The Green | £ 187,000 | 0.01 KM |
| 26 The Green | £ 147,500 | 0.01 KM |
| 31 The Green | £ 170,000 | 0.01 KM |
| 10 The Green | £ 165,000 | 0.01 KM |
| 11 The Green | £ 235,000 | 0.01 KM |