Reid & Dean says ..
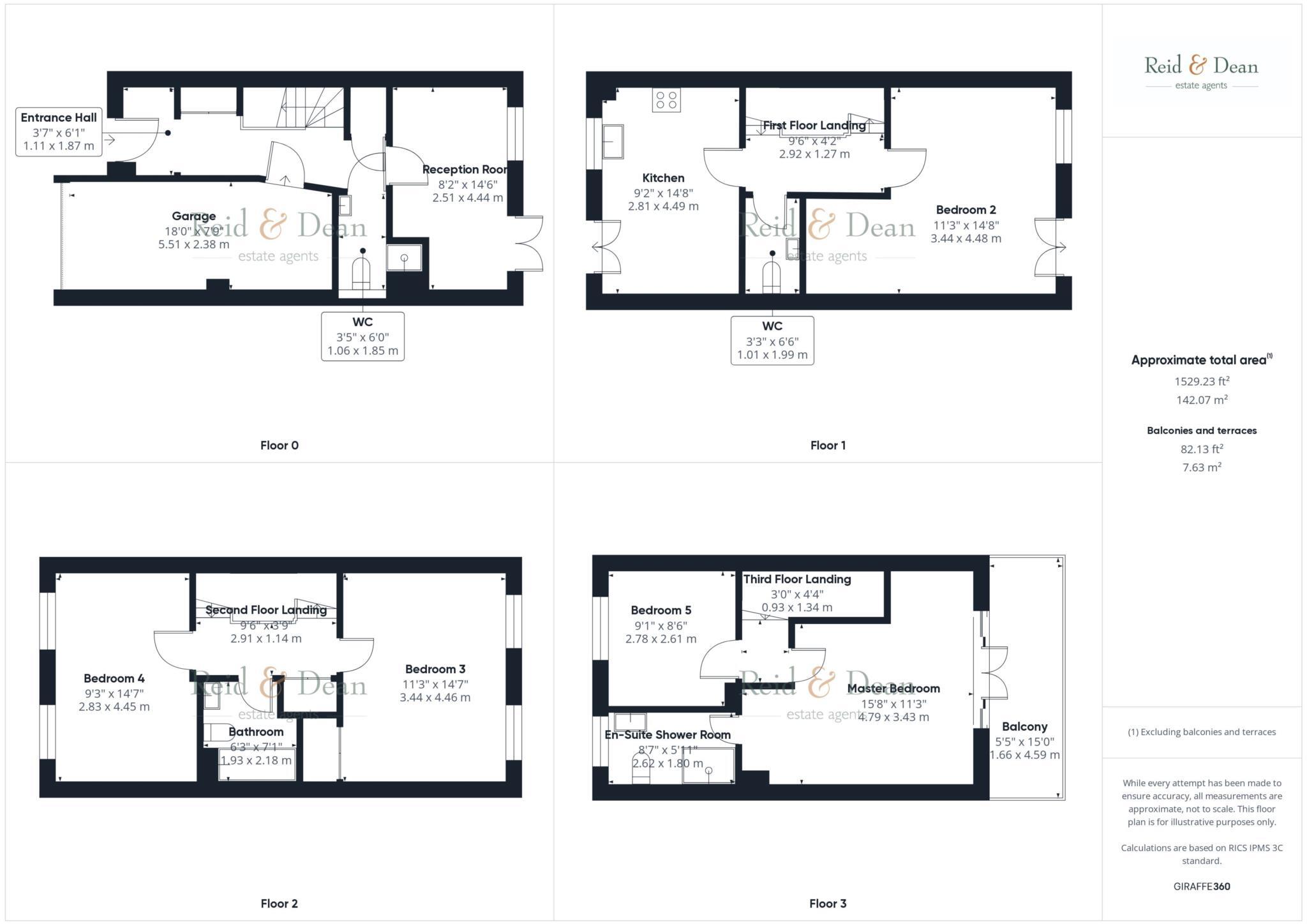
An well presented five bedroom family house set in the much sought after Sovereign Harbour of Eastbourne. Set over three floors & offering plenty of room throughout this property is set within easy reach of the popular inner harbour.
Property Oracle says ..
The property is located in Sovereign, Eastbourne, and is a terraced house with 5 bedrooms and 3 bathrooms. The property is modern and well-maintained, as seen in the provided images. It benefits from a small, gravelled rear garden and a private balcony. The location is within walking distance of The Haven Voluntary Aided Cofe/Methodist Primary School and other amenities. The average house price in the area is £343,062, and the average price per square foot is £346. This property is listed at £400,000 and has 1,560.23 sqft, which is above the average price per sqft for the area. However, considering the modern condition, the number of bedrooms and bathrooms, and the proximity to local amenities and schools, the price may be justified. Nearby properties have sold for between £100,000 and £450,000, indicating some price variation in the area. More information on plot size would help determine the land value more accurately.
Therefore, we give this property 6 / 10. *Disclaimer: This is our option and does constitute a recommendation or financial advice. Do your own research. *
- Price
- 7
- Condition
- 9
- Location
- 8
- Land
- 3
- Bedrooms
- 5
- Bathrooms
- 3
- Sqft (est)
- 1,560.23
The heatmap indicates the level of crime in the area. The color of the heatmap indicates the crime severity and recency.
Metrics Year-on-Year
- Average area value
- 354,423.00 £Increased by 4.54 %
- Est sale value
- 776,994.54 £Increased by 55.14 %
- Average area rental value
- 1,358.00 £/moDecreased by 3.21 %
- Est letting value
- 1,560.23 £/moUnchanged by 0.00 %
- Est rental Yield
- 4.60 %Decreased by 7.44 %
- Crime Rate
- 8.00 %Unchanged by 0.00 %
Agent Activity
Reid & Dean created the listing.
Nearby Schools
| Name | Type | Ofsted | Distance |
|---|---|---|---|
| The Haven Voluntary Aided Cofe/Methodist Primary School | Voluntary Aided School | Good | 0.74 KM |
| St Catherine'S College | Academy Converter | Good | 1.46 KM |
| Langney Primary Academy | Academy Converter | 1.65 KM | |
| Tollgate Community Junior School | Community School | Good | 1.90 KM |
| St Andrew'S Church Of England Infants School | Voluntary Controlled School | Good | 2.41 KM |
Images
Nearby Streets
| Name | Average Price | Average Sqft | Distance |
|---|---|---|---|
| Sovereign Harbour South | £ 375,000 | 0 | 0.00 KM |
| Walker Close | £ 280,000 | 0 | 0.00 KM |
| The Waterfront | £ 0 | 0 | 0.00 KM |
| Saint Lawrence Mews | £ 0 | 0 | 0.00 KM |
| Canute Close | £ 0 | 0 | 0.00 KM |
Nearby Transport
| Name | NLC | TLC | Distance |
|---|---|---|---|
| Pevensey And Westham | 5461 | PEV | 3.04 KM |
| Pevensey Bay | 5462 | PEB | 3.75 KM |
| Hampden Park (Sussex) | 5450 | HMD | 5.19 KM |
| Eastbourne | 5448 | EBN | 5.35 KM |
| Normans Bay | 5460 | NSB | 8.21 KM |
Nearby Listings
| Address | Price | Type | Score | Distance |
|---|---|---|---|---|
| Santa Cruz Drive, Eastbourne | £ 375,000 | BUY | Unknown | 0.00 KM |
| Santa Cruz Drive, Eastbourne | £ 180,000 | BUY | 6 / 10 | 0.02 KM |
| Santa Cruz Drive, Eastbourne | £ 209,950 | BUY | 5 / 10 | 0.05 KM |
| Santa Cruz Drive, Eastbourne | £ 195,000 | BUY | 7 / 10 | 0.06 KM |
| Sovereign Harbour | £ 210,000 | BUY | 6 / 10 | 0.07 KM |
Nearby Properties
| Address | Price | Distance |
|---|---|---|
| 28 Santa Cruz Drive | £ 385,000 | 0.00 KM |
| 22 Santa Cruz Drive | £ 275,000 | 0.00 KM |
| 24 Santa Cruz Drive | £ 245,000 | 0.00 KM |
| 26 Santa Cruz Drive | £ 265,000 | 0.00 KM |
| 20 Santa Cruz Drive | £ 249,950 | 0.00 KM |