Stags says ..
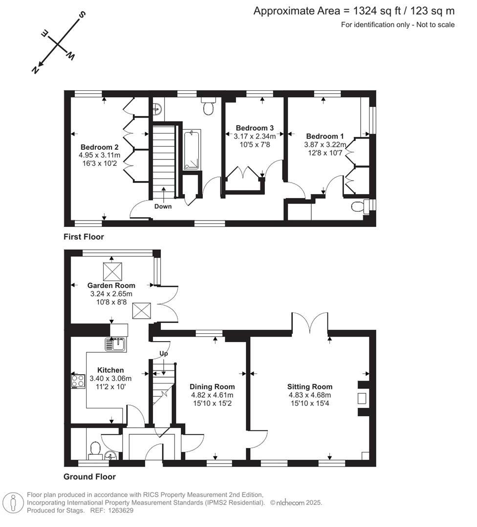
A well presented character barn conversion forming part of a select courtyard development in a delightful rural setting. Three Bedrooms & Master En Suite. Family bathroom. Sitting Room. Dining Room. Kitchen. Garden Room. Established Gardens. Garage & Parking. Freehold. Council Tax Band E. EPC Ban...
Property Oracle says ..
This property is a charming 3-bedroom semi-detached house located in the village of Wellington, Somerset. The property benefits from a good-sized garden, which is a significant advantage in this market. The asking price is above the average for the area, but this is likely justified given the property’s unique character and features. The property appears to be well-maintained and in good condition, with a traditional style and some modern updates. The location is relatively rural, with several good primary schools within a reasonable distance. However, information on nearby transportation links is not available. Overall, this is a desirable property for those seeking a characterful home in a peaceful setting.
Therefore, we give this property 7 / 10. *Disclaimer: This is our option and does constitute a recommendation or financial advice. Do your own research. *
- Price
- 7
- Condition
- 8
- Location
- 6
- Land
- 7
- Bedrooms
- 3
- Bathrooms
- 2
- Sqft (est)
- 1,323.96
The heatmap indicates the level of crime in the area. The color of the heatmap indicates the crime severity and recency.
Metrics Year-on-Year
- Average area value
- 225,500.00 £Decreased by 13.54 %
- Est sale value
- 300,538.92 £Decreased by 5.81 %
- Average area rental value
- 1,202.00 £/moDecreased by 6.09 %
- Est letting value
- 1,323.96 £/moUnchanged by 0.00 %
- Est rental Yield
- 6.40 %Increased by 8.66 %
- Crime Rate
- 0.00 %
Agent Activity
Stags created the listing.
Nearby Schools
| Name | Type | Ofsted | Distance |
|---|---|---|---|
| Sampford Arundel Community Primary School | Community School | Good | 1.52 KM |
| Langford Budville Church Of England Primary School | Voluntary Controlled School | Good | 3.38 KM |
| Rockwell Green Church Of England Primary School | Voluntary Controlled School | Good | 3.89 KM |
| Stawley Primary School | Community School | Good | 4.94 KM |
| Court Fields School | Academy Sponsor Led | Requires improvement | 5.05 KM |
Images
Nearby Streets
| Name | Average Price | Average Sqft | Distance |
|---|---|---|---|
| Chitterwell Cottages | £ 0 | 0 | 0.00 KM |
| Holywell Road | £ 0 | 0 | 0.00 KM |
| Pinksmoor Lane | £ 0 | 0 | 0.00 KM |
| Breach Hill | £ 0 | 0 | 0.00 KM |
| Weeks Meadow | £ 0 | 0 | 0.00 KM |
Nearby Listings
| Address | Price | Type | Score | Distance |
|---|---|---|---|---|
| Chitterwell, Wellington | £ 495,000 | BUY | 7 / 10 | 0.00 KM |
| Holywell Lake, Wellington, Somerset, TA21 | £ 1,000,000 | BUY | 7 / 10 | 0.72 KM |
| Holywell Lake, Wellington, TA21 | £ 425,000 | BUY | 6 / 10 | 0.78 KM |
| Holywell Lake, Wellington | £ 310,000 | BUY | 6 / 10 | 0.95 KM |
| Holywell Lake, Wellington, TA21 | £ 284,750 | BUY | 7 / 10 | 1.02 KM |
Nearby Properties
| Address | Price | Distance |
|---|---|---|
| 4 Corams | £ 205,000 | 0.91 KM |
| 1 Weekes Meadow | £ 218,673 | 1.46 KM |
| 4 Weekes Meadow | £ 210,000 | 1.46 KM |