Vincent Shaw says ..
An exceptional semi-detached house well placed on a highly popular south city road, offered for sale with no upward chain. Living accommodation has been comprehensively refurbished to a high specification with a contemporary finish throughout. Internal viewing is strongly advised.
Property Oracle says ..
Therefore, we give this property 7 / 10. *Disclaimer: This is our option and does constitute a recommendation or financial advice. Do your own research. *
- Price
- 7
- Condition
- 9
- Location
- 8
- Land
- 7
- Bedrooms
- 3
- Bathrooms
- 1
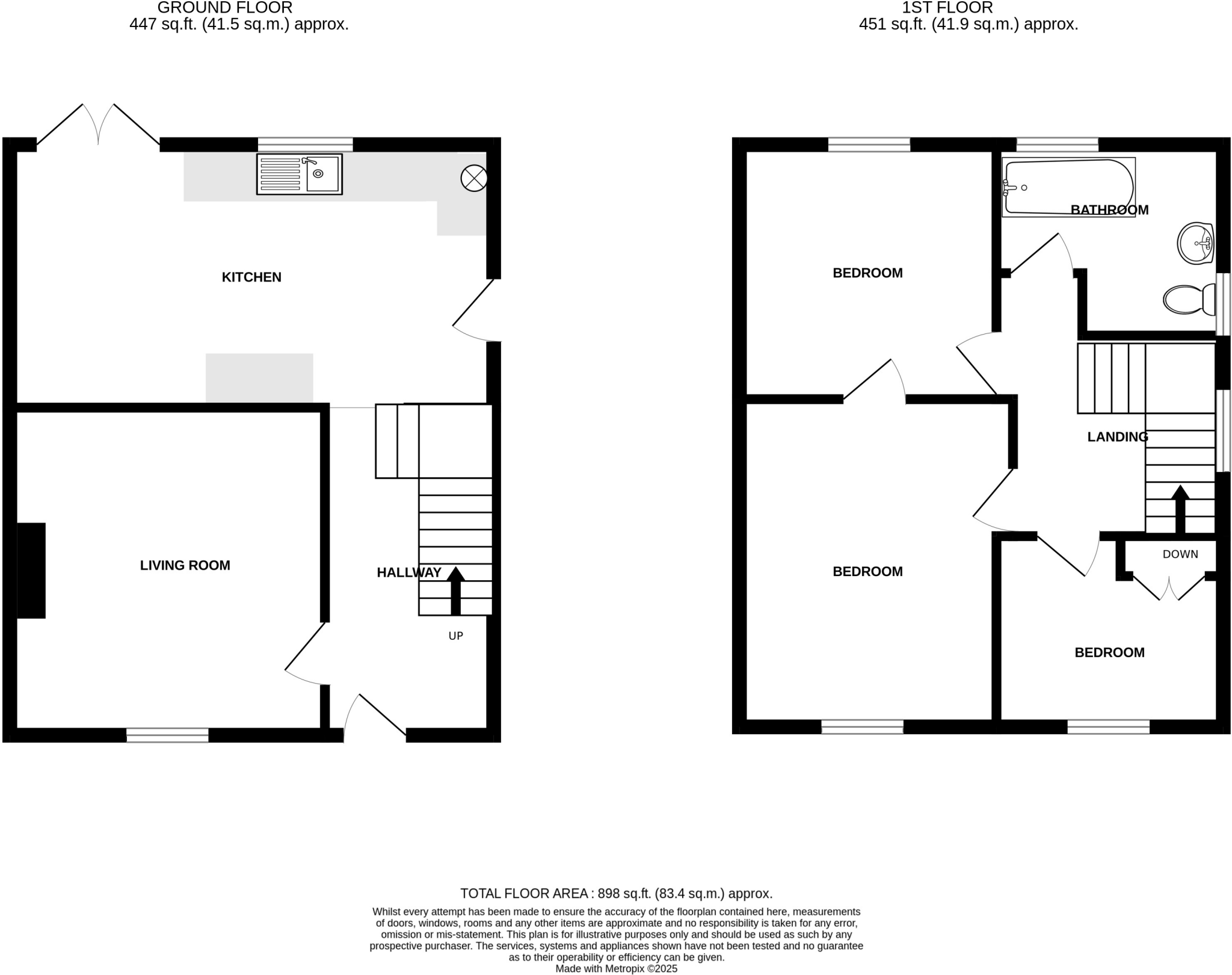
- Sqft (est)
- 898.00
The heatmap indicates the level of crime in the area. The color of the heatmap indicates the crime severity and recency.
Metrics Year-on-Year
- Average area value
- 493,125.00 £Decreased by 3.31 %
- Est sale value
- 569,332.00 £Increased by 20.76 %
- Average area rental value
- 1,710.00 £/moDecreased by 2.51 %
- Est letting value
- 1,796.00 £/moIncreased by 100.00 %
- Est rental Yield
- 4.16 %Increased by 0.73 %
- Crime Rate
- 5.00 %Unchanged by 0.00 %
from 509,986.00 £
from 471,450.00 £
from 1,754.00 £/mo
from 898.00 £/mo
from 4.13 %
from 5.00 %
Agent Activity
Vincent Shaw created the listing.
Nearby Schools
| Name | Type | Ofsted | Distance |
|---|---|---|---|
| St Bede'S Inter-Church School | Academy Converter | Outstanding | 0.15 KM |
| Oaks International School | Other Independent School | Good | 0.62 KM |
| Holme Court School | Other Independent Special School | Outstanding | 0.62 KM |
| Queen Emma Primary School | Foundation School | Good | 0.76 KM |
| The Spinney Primary School | Community School | Outstanding | 0.91 KM |
Images
Nearby Streets
| Name | Average Price | Average Sqft | Distance |
|---|---|---|---|
| Laundry Lane | £ 0 | 0 | 0.00 KM |
| Daws Lane | £ 495,000 | 0 | 0.00 KM |
| Brooklyn Court | £ 220,000 | 0 | 0.00 KM |
| Mowbray Road | £ 0 | 0 | 0.00 KM |
| Godwin Close | £ 0 | 0 | 0.00 KM |
Nearby Transport
| Name | NLC | TLC | Distance |
|---|---|---|---|
| Cambridge | 7022 | CBG | 2.66 KM |
| Cambridge North | 8001 | CMB | 3.85 KM |
| Shelford (Cambs) | 7043 | SED | 5.15 KM |
| Waterbeach | 7079 | WBC | 8.96 KM |
| Whittlesford Parkway | 7047 | WLF | 9.63 KM |
Nearby Listings
| Address | Price | Type | Score | Distance |
|---|---|---|---|---|
| Birdwood Road, Cambridge | £ 558,000 | BUY | 7 / 10 | 0.00 KM |
| Walpole Road, Cambridge | £ 440,000 | BUY | 8 / 10 | 0.27 KM |
| Walpole Road, Cambridge, CB1 | £ 300,000 | BUY | 6 / 10 | 0.28 KM |
| Ward Road, Cambridge | £ 600,000 | BUY | Unknown | 0.28 KM |
| Walpole Road, Cambridge | £ 440,000 | BUY | 7 / 10 | 0.29 KM |
Nearby Properties
| Address | Price | Distance |
|---|---|---|
| 131 Birdwood Road | £ 392,000 | 0.00 KM |
| 127 Birdwood Road | £ 335,000 | 0.00 KM |
| 135 Birdwood Road | £ 320,000 | 0.00 KM |
| 76 Birdwood Road | £ 219,950 | 0.06 KM |
| 112 Birdwood Road | £ 95,500 | 0.06 KM |