McGowan Housing says ..
Buy-to-Let Opportunity | Long Term Tenant Currently Situated | 3 Bedroom Terraced House | Spacious Rooms | Well-Equipped Kitchen | Prime Rental Location Within Hull
Property Oracle says ..
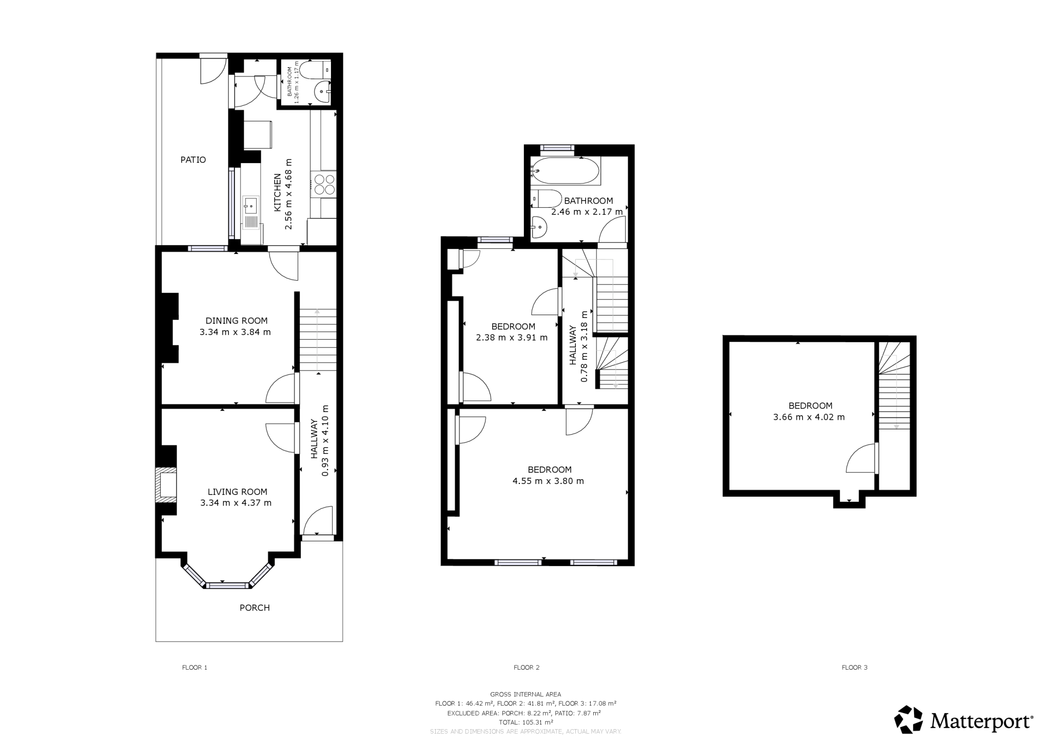
This is a terraced property located on Brazil Street in Drypool, Hull. The house has 3 bedrooms and 2 bathrooms. While the property is situated in a location with access to schools and transportation, the images suggest it is in need of renovation. The property has a small yard. The asking price of £80,000 is lower than the average in the area, reflecting the condition of the property.
Therefore, we give this property 5 / 10. *Disclaimer: This is our option and does constitute a recommendation or financial advice. Do your own research. *
- Price
- 7
- Condition
- 4
- Location
- 6
- Land
- 3
- Bedrooms
- 3
- Bathrooms
- 2
The heatmap indicates the level of crime in the area. The color of the heatmap indicates the crime severity and recency.
Metrics Year-on-Year
- Average area value
- 151,599.00 £Increased by 26.37 %
- Average area rental value
- 716.00 £/moIncreased by 9.15 %
- Est rental Yield
- 5.67 %Decreased by 13.57 %
- Crime Rate
- 9.00 %Unchanged by 0.00 %
Agent Activity
McGowan Housing created the listing.
Nearby Schools
| Name | Type | Ofsted | Distance |
|---|---|---|---|
| Buckingham Primary Academy | Academy Sponsor Led | Good | 0.70 KM |
| Craven Primary Academy | Academy Sponsor Led | Outstanding | 0.74 KM |
| Mersey Primary Academy | Academy Sponsor Led | Good | 1.06 KM |
| Estcourt Primary Academy | Academy Converter | Good | 1.14 KM |
| Estcourt | Children's Centre Linked Site | 1.23 KM |
Images
Nearby Streets
| Name | Average Price | Average Sqft | Distance |
|---|---|---|---|
| Ackworth Street | £ 0 | 0 | 0.00 KM |
| Arundel Close | £ 0 | 0 | 0.00 KM |
| Courtney Street | £ 0 | 0 | 0.00 KM |
| Cambriam Avenue | £ 70,000 | 0 | 0.00 KM |
| Bridge Close | £ 0 | 0 | 0.00 KM |
Nearby Transport
| Name | NLC | TLC | Distance |
|---|---|---|---|
| Hull | 8126 | HUL | 3.29 KM |
| New Holland | 6209 | NHL | 7.21 KM |
| Goxhill | 6206 | GOX | 8.47 KM |
Nearby Listings
| Address | Price | Type | Score | Distance |
|---|---|---|---|---|
| Brazil Street, Hull, East Riding Of Yorkshire, HU9 | £ 50,000 | BUY | 5 / 10 | 0.00 KM |
| Brazil Street, Hull, HU9 | £ 80,000 | BUY | 5 / 10 | 0.00 KM |
| Brazil Street, Hull, HU9 | £ 80,000 | BUY | 4 / 10 | 0.00 KM |
| Brazil Street, Hull, East Riding of Yorkshire. HU9 1JZ | £ 110,000 | BUY | 7 / 10 | 0.00 KM |
| Brentwood Avenue, Brazil Street, Hull, East Yorkshire, HU9 | £ 65,000 | BUY | 4 / 10 | 0.02 KM |
Nearby Properties
| Address | Price | Distance |
|---|---|---|
| 32 Brazil Street | £ 46,000 | 0.00 KM |
| 62 Brazil Street | £ 28,000 | 0.00 KM |
| 54 Brazil Street | £ 69,995 | 0.00 KM |
| 52 Brazil Street | £ 66,970 | 0.00 KM |
| 48 Brazil Street | £ 72,000 | 0.00 KM |