Woodend, Pensby, Wirral, CH61
By Bradshaw Farnham & Lea
£ 265,000
Reviews
3 out of 5 stars
Bradshaw Farnham & Lea says ..
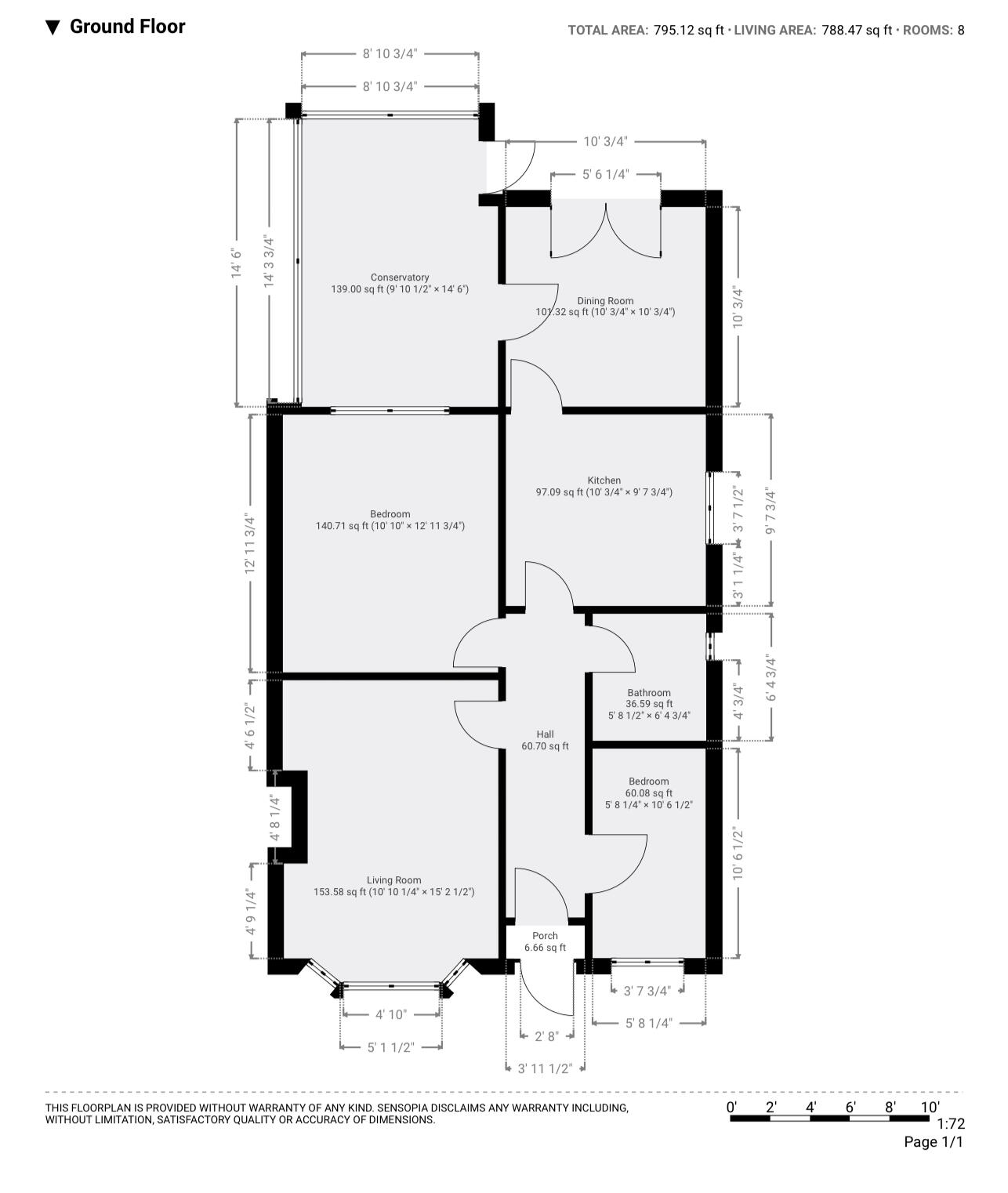
This beautifully extended two-bedroom semi-detached bungalow offers spacious living in a highly sought-after location. Perfect for those looking to downsize or start their property journey, this home boasts a fantastic layout and a wealth of potential.
Property Oracle says ..
The property is a two-bedroom bungalow located in Pensby, Wirral. Based on the provided information and images, here’s an analysis: Location: Pensby is a desirable residential area in Wirral. The proximity to good schools like Pensby Primary School and Ladymount Catholic Primary School (both rated ‘Good’ by Ofsted) is a significant plus for families. The presence of nearby transportation links, including Heswall train station within a reasonable distance, enhances the property’s accessibility. The area appears to be well-maintained and quiet, based on the provided images. Condition: The property appears to be in good condition. The images show a well-maintained exterior and interior. The kitchen and bathroom seem recently updated or well-maintained. There is no visible evidence of significant repairs or renovations needed. Land: The property includes a garden with a patio area and a shed, providing outdoor space. The size of the garden appears to be reasonably sized for a bungalow of this type. Price: The list price of £265,000 needs to be considered in relation to comparable properties in the area. While there is limited information on square footage for nearby properties, the available data suggests that the price is within the range of similar properties in Pensby. The property’s condition and the inclusion of a garden likely contribute to its value. Further analysis of local price per square foot data would provide a more precise assessment of the price’s reasonableness.
Therefore, we give this property 7 / 10. *Disclaimer: This is our option and does constitute a recommendation or financial advice. Do your own research. *
- Price
- 7
- Condition
- 8
- Location
- 9
- Land
- 7
- Bedrooms
- 2
- Bathrooms
- 1
- Sqft (est)
- 795.12
- Lot (est)
- 795.12
The heatmap indicates the level of crime in the area. The color of the heatmap indicates the crime severity and recency.
Metrics Year-on-Year
- Average area value
- 266,111.00 £Decreased by 9.63 %
- Est sale value
- 260,004.24 £Increased by 28.74 %
- Average area rental value
- 1,200.00 £/moIncreased by 5.91 %
- Est letting value
- 795.12 £/mo
- Est rental Yield
- 5.41 %Increased by 17.10 %
- Crime Rate
- 6.00 %Unchanged by 0.00 %
Agent Activity
Bradshaw Farnham & Lea created the listing.
Nearby Schools
| Name | Type | Ofsted | Distance |
|---|---|---|---|
| South And West Hub - Pensby Children'S Centre | Children's Centre | 0.68 KM | |
| Pensby Primary School | Community School | Good | 0.75 KM |
| Ladymount Catholic Primary School | Voluntary Aided School | Good | 0.77 KM |
| Stanley School | Community Special School | Good | 0.97 KM |
| Thingwall Primary School | Community School | Good | 1.36 KM |
Images
Nearby Streets
| Name | Average Price | Average Sqft | Distance |
|---|---|---|---|
| Devonshire Road | £ 0 | 0 | 0.00 KM |
| Parkway | £ 0 | 0 | 0.00 KM |
| Sunningdale Drive | £ 0 | 0 | 0.00 KM |
| Hawthorn Drive | £ 380,000 | 0 | 0.00 KM |
| Richmond Way | £ 315,000 | 0 | 0.00 KM |
Nearby Transport
| Name | NLC | TLC | Distance |
|---|---|---|---|
| Heswall | 2138 | HSW | 3.73 KM |
| Upton (Merseyside) | 2141 | UPT | 4.70 KM |
| Leasowe | 2237 | LSW | 6.67 KM |
| Moreton (Merseyside) | 2151 | MRT | 6.69 KM |
| Bidston | 2136 | BID | 7.26 KM |
Nearby Listings
| Address | Price | Type | Score | Distance |
|---|---|---|---|---|
| Woodend, Pensby, Wirral, CH61 | £ 265,000 | BUY | 7 / 10 | 0.00 KM |
| Woodend, Pensby, Wirral, CH61 | £ 265,000 | BUY | 6 / 10 | 0.02 KM |
| Woodend, Pensby, Wirral, CH61 | £ 265,000 | BUY | 7 / 10 | 0.04 KM |
| Woodend, Pensby, Wirral, CH61 | £ 275,000 | BUY | 7 / 10 | 0.05 KM |
| Woodend, Pensby, Wirral | £ 260,000 | BUY | 6 / 10 | 0.07 KM |
Nearby Properties
| Address | Price | Distance |
|---|---|---|
| 19 Woodend | £ 168,000 | 0.03 KM |
| 22 Woodend | £ 185,000 | 0.03 KM |
| 16 Woodend | £ 48,500 | 0.03 KM |
| 10 Woodend | £ 145,000 | 0.03 KM |
| 9 Woodend | £ 200,000 | 0.04 KM |