Pond Hill, Stonesfield, OX29
By Breckon & Breckon
£ 650,000
Reviews
3 out of 5 stars
Breckon & Breckon says ..
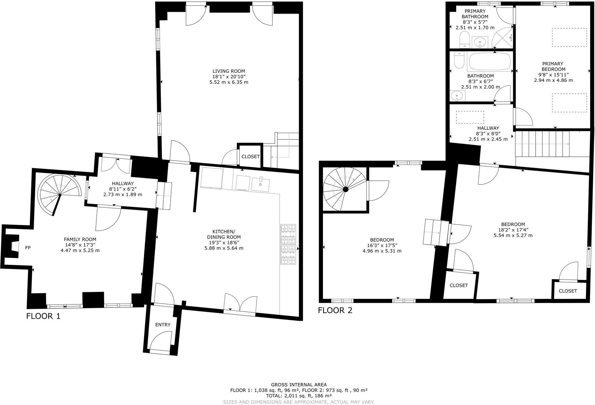
Believed to date back to the 1700s, Old Well Cottage is a charming three-bedroom stone cottage set accross two floors and extending over an impressive 2011 Sq Ft of living space.
Property Oracle says ..
This is a charming semi-detached cottage located in the desirable village of Stonesfield, Oxfordshire. The property offers a blend of period features and modern amenities, with a well-maintained interior and a good-sized garden. The location is ideal for those seeking a rural lifestyle with convenient access to nearby towns and transport links. While the price is reasonable, it may not be considered a bargain compared to other properties in the area. Overall, this property represents a solid investment for families and individuals looking for a comfortable and well-located home in a picturesque setting.
Therefore, we give this property 7 / 10. *Disclaimer: This is our option and does constitute a recommendation or financial advice. Do your own research. *
- Price
- 6
- Condition
- 8
- Location
- 7
- Land
- 7
- Bedrooms
- 3
- Bathrooms
- 2
- Sqft (est)
- 1,930.00
The heatmap indicates the level of crime in the area. The color of the heatmap indicates the crime severity and recency.
Metrics Year-on-Year
- Average area value
- 270,000.00 £Increased by 41.58 %
- Est sale value
- 700,590.00 £Increased by 61.33 %
- Average area rental value
- 936.00 £/moDecreased by 3.51 %
- Est letting value
- 1,930.00 £/moUnchanged by 0.00 %
- Est rental Yield
- 4.16 %Decreased by 31.80 %
- Crime Rate
- 118.00 %Unchanged by 0.00 %
Agent Activity
Breckon & Breckon created the listing.
Nearby Schools
| Name | Type | Ofsted | Distance |
|---|---|---|---|
| Stonesfield Primary School | Community School | Good | 0.24 KM |
| Combe Cofe Primary School | Voluntary Controlled School | Outstanding | 3.15 KM |
| North Leigh Church Of England (Controlled) School | Academy Converter | Good | 4.50 KM |
| Freeland Church Of England Primary School | Academy Converter | Good | 4.69 KM |
| Hanborough Manor Cofe School | Academy Converter | Good | 5.21 KM |
Images
Nearby Streets
| Name | Average Price | Average Sqft | Distance |
|---|---|---|---|
| High Street | £ 900,000 | 0 | 0.00 KM |
| Well Lane | £ 500,000 | 0 | 0.00 KM |
Nearby Transport
| Name | NLC | TLC | Distance |
|---|---|---|---|
| Combe (Oxon) | 3005 | CME | 4.39 KM |
| Finstock | 3012 | FIN | 4.52 KM |
| Hanborough | 3007 | HND | 6.78 KM |
| Charlbury | 3004 | CBY | 7.13 KM |
Nearby Listings
| Address | Price | Type | Score | Distance |
|---|---|---|---|---|
| Pond Hill, Stonesfield, OX29 | £ 700,000 | BUY | 7 / 10 | 0.00 KM |
| Pond Hill, Stonesfield, OX29 | £ 650,000 | BUY | 7 / 10 | 0.00 KM |
| Busby Close, Stonesfield, OX29 | £ 499,950 | BUY | 7 / 10 | 0.16 KM |
| Pond Hill, Stonesfield, Witney | £ 550,000 | BUY | 7 / 10 | 0.18 KM |
| Stonesfield, Oxfordshire, OX29 | £ 450,000 | BUY | Unknown | 0.18 KM |
Nearby Properties
| Address | Price | Distance |
|---|---|---|
| 2 St James Court | £ 540,000 | 0.08 KM |
| 3 St James Court | £ 195,000 | 0.08 KM |
| 1 St James Court | £ 489,490 | 0.08 KM |
| 7 St James Court | £ 340,000 | 0.08 KM |
| 8 Barretts Close | £ 345,000 | 0.10 KM |