Lilac Road, Altrincham
By Swithenbank Estate Agents
£ 600,000
Reviews
3 out of 5 stars
Swithenbank Estate Agents says ..
Don't miss out on this stunning property in Altrincham - call the office now to arrange your viewing!
Property Oracle says ..
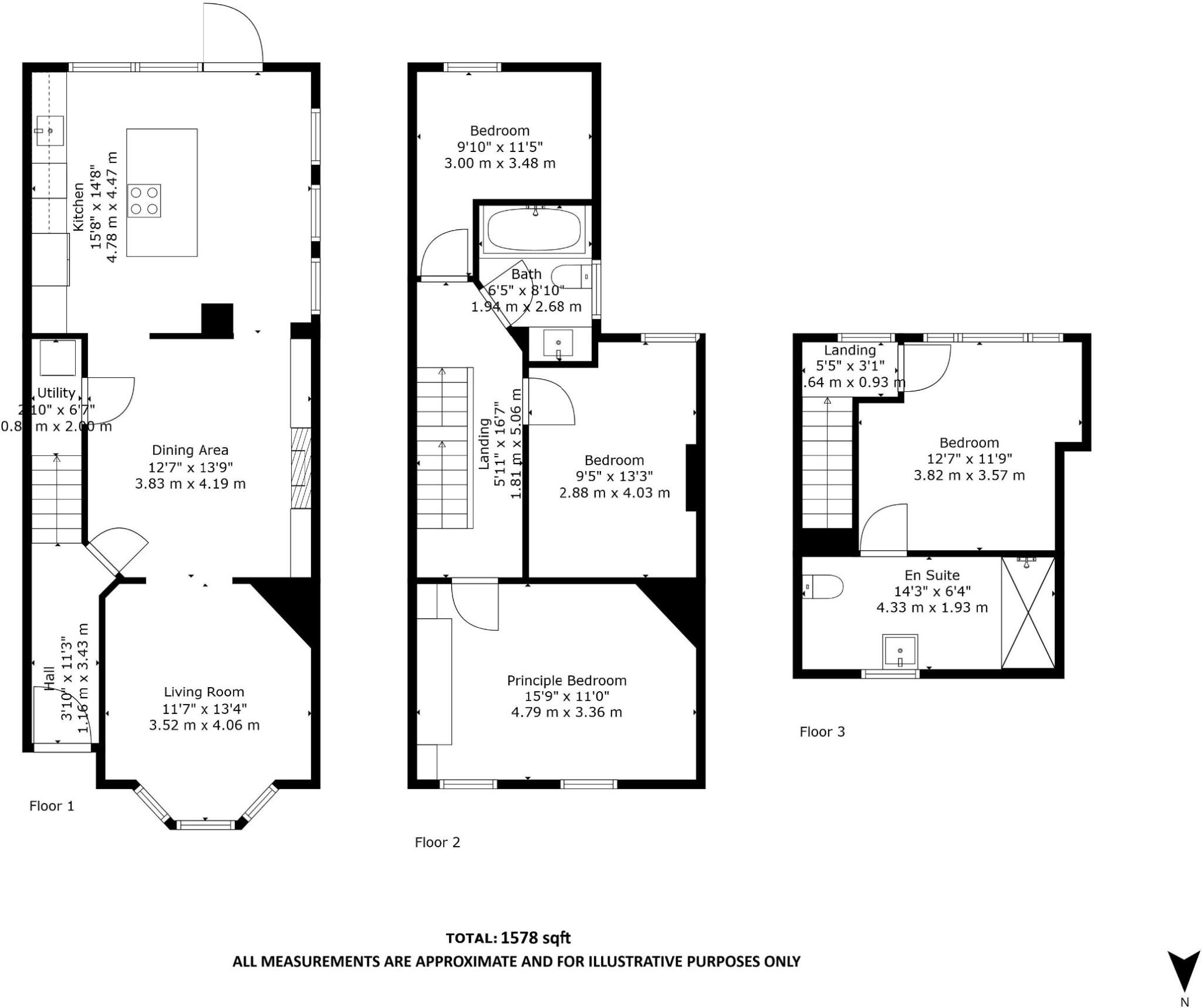
This is a well-presented 4-bedroom semi-detached property located in the desirable area of Hale Central, Altrincham. The house benefits from modern interiors, a well-maintained garden, and proximity to local amenities and schools. The property appears to be in good condition, with recent renovations evident in the kitchen and bathrooms. The asking price of £600,000 seems reasonable given the location and features of the property.
Therefore, we give this property 7 / 10. *Disclaimer: This is our option and does constitute a recommendation or financial advice. Do your own research. *
- Price
- 7
- Condition
- 8
- Location
- 7
- Land
- 6
- Bedrooms
- 4
- Bathrooms
- 2
The heatmap indicates the level of crime in the area. The color of the heatmap indicates the crime severity and recency.
Metrics Year-on-Year
- Average area value
- 1,058,000.00 £Increased by 28.68 %
- Average area rental value
- 2,405.00 £/moIncreased by 4.66 %
- Est rental Yield
- 2.73 %Decreased by 18.51 %
- Crime Rate
- 0.00 %
Agent Activity
Swithenbank Estate Agents created the listing.
Nearby Schools
| Name | Type | Ofsted | Distance |
|---|---|---|---|
| Altrincham College | Academy Converter | Good | 0.79 KM |
| Stamford Park Primary School | Community School | Good | 1.07 KM |
| Hale Preparatory School | Other Independent School | 1.32 KM | |
| Blessed Thomas Holford Catholic College | Voluntary Aided School | Outstanding | 1.41 KM |
| Wellington School | Academy Converter | Good | 1.60 KM |
Images
Nearby Streets
| Name | Average Price | Average Sqft | Distance |
|---|---|---|---|
| Egerton Road | £ 0 | 0 | 0.00 KM |
| Chester Avenue | £ 0 | 0 | 0.00 KM |
| Charlotte Place | £ 0 | 0 | 0.00 KM |
| Golf Road | £ 0 | 0 | 0.00 KM |
| The Haven | £ 0 | 0 | 0.00 KM |
Nearby Transport
| Name | NLC | TLC | Distance |
|---|---|---|---|
| Hale (Manchester) | 2845 | HAL | 1.90 KM |
| Altrincham | 2806 | ALT | 2.00 KM |
| Navigation Road | 2940 | NVR | 2.20 KM |
| Ashley | 2850 | ASY | 3.02 KM |
| Mobberley | 2849 | MOB | 5.72 KM |
Nearby Listings
| Address | Price | Type | Score | Distance |
|---|---|---|---|---|
| Lilac Road, Altrincham | £ 600,000 | BUY | 7 / 10 | 0.00 KM |
| Lilac Road, Hale, Altrincham, Greater Manchester, WA15 | £ 475,000 | BUY | 6 / 10 | 0.01 KM |
| Hermitage Road, Hale, Altrincham | £ 625,000 | BUY | 7 / 10 | 0.05 KM |
| Lilac Road, Hale, Altrincham | £ 500,000 | BUY | 8 / 10 | 0.05 KM |
| Grove Lane, Hale, Altrincham | £ 600,000 | BUY | 8 / 10 | 0.06 KM |
Nearby Properties
| Address | Price | Distance |
|---|---|---|
| 30 Lilac Road | £ 446,000 | 0.01 KM |
| 12 Lilac Road | £ 320,000 | 0.01 KM |
| 5 Lilac Road | £ 165,000 | 0.01 KM |
| 36 Lilac Road | £ 445,000 | 0.01 KM |
| 20 Lilac Road | £ 286,950 | 0.01 KM |