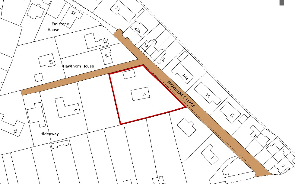
Providence Place, Briston
By The Norfolk Agents
£ 400,000
Reviews
3 out of 5 stars
The Norfolk Agents says ..
A spacious bungalow in a private & peaceful location, with a gated driveway & parking for several vehicles. Sitting room with double doors to the garden, kitchen breakfast room and 3 double bedrooms.
Property Oracle says ..
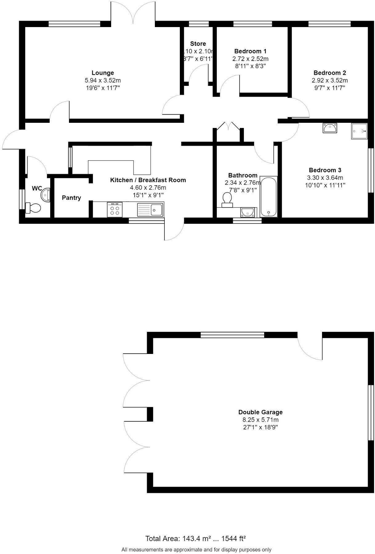
The property is a 3 bedroom, 2 bathroom detached bungalow situated in Briston, North Norfolk. The list price is £400,000. The property has a plot size of 1,544 sqft and the internal area is 1,271.56 sqft. The average price for properties in the area is £442,500, with an average size of 1,017 sqft and an average price per sqft of £435. This suggests that the property is slightly below average in price for the area, considering its size. Based on the images provided, the property appears to be in reasonable condition, although some modernisation would likely enhance its value. The interior shows some dated features, suggesting a potential need for some updating. The garden is a significant feature, offering a good-sized area with mature trees and outbuildings. The presence of the garden positively impacts the overall desirability of the property. The location in Briston, North Norfolk, is a factor to consider. While the provided data does not offer detailed insights into the desirability of the location, the proximity to several primary schools could be attractive to families. The distance to these schools is a factor to consider when evaluating the location score. Further information on local amenities, transport links, and the overall character of Briston would contribute to a more comprehensive assessment of the location. Considering the above, the price of £400,000 appears relatively reasonable given the size of the property, the presence of a garden, and the average prices in the surrounding area. However, the need for potential modernisation should be factored into the overall price assessment.
Therefore, we give this property 6 / 10. *Disclaimer: This is our option and does constitute a recommendation or financial advice. Do your own research. *
- Price
- 7
- Condition
- 7
- Location
- 6
- Land
- 7
- Bedrooms
- 3
- Bathrooms
- 2
- Sqft (est)
- 1,271.56
- Lot (est)
- 1,544.00
The heatmap indicates the level of crime in the area. The color of the heatmap indicates the crime severity and recency.
Metrics Year-on-Year
- Average area value
- 686,107.00 £Decreased by 13.94 %
- Est sale value
- 445,046.00 £Decreased by 55.13 %
- Average area rental value
- 2,042.00 £/moDecreased by 7.18 %
- Est letting value
- 1,271.56 £/moDecreased by 50.00 %
- Est rental Yield
- 3.57 %Increased by 7.85 %
- Crime Rate
- 50.00 %Unchanged by 0.00 %
Agent Activity
The Norfolk Agents created the listing.
Nearby Schools
| Name | Type | Ofsted | Distance |
|---|---|---|---|
| Astley Primary School | Academy Converter | 1.69 KM | |
| Holt Community Primary School | Community School | Good | 5.76 KM |
| Corpusty And Holt Area Children'S Centre | Children's Centre | 6.16 KM | |
| Gresham'S School | Other Independent School | 7.38 KM | |
| Corpusty Primary School | Academy Sponsor Led | 8.56 KM |
Images
Nearby Streets
| Name | Average Price | Average Sqft | Distance |
|---|---|---|---|
| Norwich Road | £ 0 | 0 | 0.00 KM |
| Barwick Close | £ 0 | 0 | 0.00 KM |
| Granary Close | £ 0 | 0 | 0.00 KM |
| Orchard Close | £ 222,500 | 0 | 0.00 KM |
Nearby Listings
| Address | Price | Type | Score | Distance |
|---|---|---|---|---|
| Providence Place, Briston | £ 400,000 | BUY | 6 / 10 | 0.00 KM |
| 20 Providence Place, Briston, Melton Constable, Norfolk, NR24 2HZ | £ 100,000 | BUY | 6 / 10 | 0.01 KM |
| Providence Place, Briston | £ 350,000 | BUY | 6 / 10 | 0.09 KM |
| Edgefield Road, Briston | £ 425,000 | BUY | 7 / 10 | 0.13 KM |
| A Garden-Lover’s Detached Hideaway in Leafy Briston | £ 400,000 | BUY | Unknown | 0.13 KM |
Nearby Properties
| Address | Price | Distance |
|---|---|---|
| 4 Providence Place | £ 147,000 | 0.04 KM |
| Osborn House | £ 340,000 | 0.04 KM |
| 8 Providence Place | £ 135,000 | 0.04 KM |
| Driftway End | £ 335,000 | 0.04 KM |
| Tanglewood | £ 410,000 | 0.05 KM |