Breakey & Co says ..
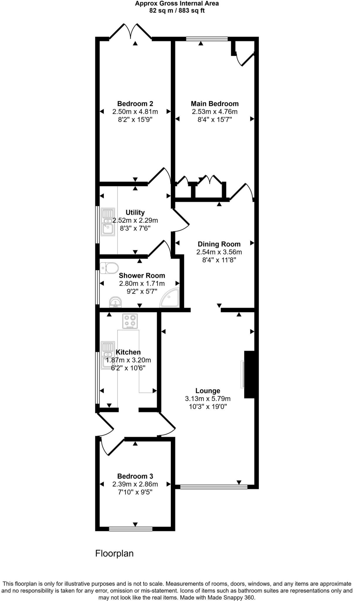
Charming 3-bed semi-detached bungalow in a residential area. Features log burner, spacious kitchen, outbuilding, and modern shower room. Close to schools and amenities with easy motorway access.
Property Oracle says ..
Therefore, we give this property 7 / 10. *Disclaimer: This is our option and does constitute a recommendation or financial advice. Do your own research. *
- Price
- 8
- Condition
- 7
- Location
- 7
- Land
- 7
- Bedrooms
- 3
- Bathrooms
- 1
- Sqft (est)
- 802.89
The heatmap indicates the level of crime in the area. The color of the heatmap indicates the crime severity and recency.
Metrics Year-on-Year
- Average area value
- 348,000.00 £Decreased by 28.05 %
- Est sale value
- 333,199.35 £Decreased by 22.72 %
- Average area rental value
- 1,967.00 £/moUnchanged by 0.00 %
- Est letting value
- 1,605.78 £/moUnchanged by 0.00 %
- Est rental Yield
- 6.78 %Increased by 38.93 %
- Crime Rate
- 0.00 %
from 483,699.00 £
from 431,151.93 £
from 1,967.00 £/mo
from 1,605.78 £/mo
from 4.88 %
from 0.00 %
Agent Activity
Breakey & Co created the listing.
Nearby Schools
| Name | Type | Ofsted | Distance |
|---|---|---|---|
| Hope Sure Start Children'S Centre | Children's Centre Linked Site | 0.60 KM | |
| Hope School | Community Special School | Outstanding | 0.63 KM |
| Marus Bridge Primary School | Academy Converter | Good | 0.66 KM |
| St Paul'S Church Of England Primary School | Academy Converter | 0.77 KM | |
| Wigan Worsley Mesnes Community Primary School | Community School | Good | 1.14 KM |
Images
Nearby Streets
| Name | Average Price | Average Sqft | Distance |
|---|---|---|---|
| Warrington Road | £ 139,950 | 0 | 0.00 KM |
| Denham Drive | £ 0 | 0 | 0.00 KM |
| Rosthwaite Close | £ 0 | 0 | 0.00 KM |
| Kingsley Avenue | £ 152,500 | 0 | 0.00 KM |
| Kinniside Close | £ 245,000 | 0 | 0.00 KM |
Nearby Transport
| Name | NLC | TLC | Distance |
|---|---|---|---|
| Bryn | 2222 | BYN | 2.31 KM |
| Pemberton | 2403 | PEM | 2.37 KM |
| Wigan North Western | 2363 | WGN | 3.30 KM |
| Wigan Wallgate | 2406 | WGW | 3.41 KM |
| Garswood | 2335 | GSW | 4.19 KM |
Nearby Listings
| Address | Price | Type | Score | Distance |
|---|---|---|---|---|
| Fulbeck Avenue, Wigan, WN3 | £ 220,000 | BUY | 7 / 10 | 0.00 KM |
| Warrington Road, Wigan, WN3 | £ 160,000 | BUY | 6 / 10 | 0.05 KM |
| Warrington Road, Wigan, WN3 | £ 225,000 | BUY | 6 / 10 | 0.06 KM |
| Fulbeck Avenue, Wigan, WN3 | £ 180,000 | BUY | 6 / 10 | 0.11 KM |
| Mayfair Drive, Wigan WN3 5QX | £ 190,000 | BUY | Unknown | 0.12 KM |
Nearby Properties
| Address | Price | Distance |
|---|---|---|
| 2 Hawkley Avenue | £ 133,500 | 0.07 KM |
| 10 Mayfair Drive | £ 97,500 | 0.09 KM |
| 13 Mayfair Drive | £ 128,000 | 0.09 KM |
| 25 Mayfair Drive | £ 130,000 | 0.09 KM |
| 1 Mayfair Drive | £ 155,000 | 0.09 KM |