GR
Kenilworth Gardens, Staines-upon-Thames, TW18
By Gregory Brown
£ 430,000
Reviews
3 out of 5 stars
Gregory Brown says ..
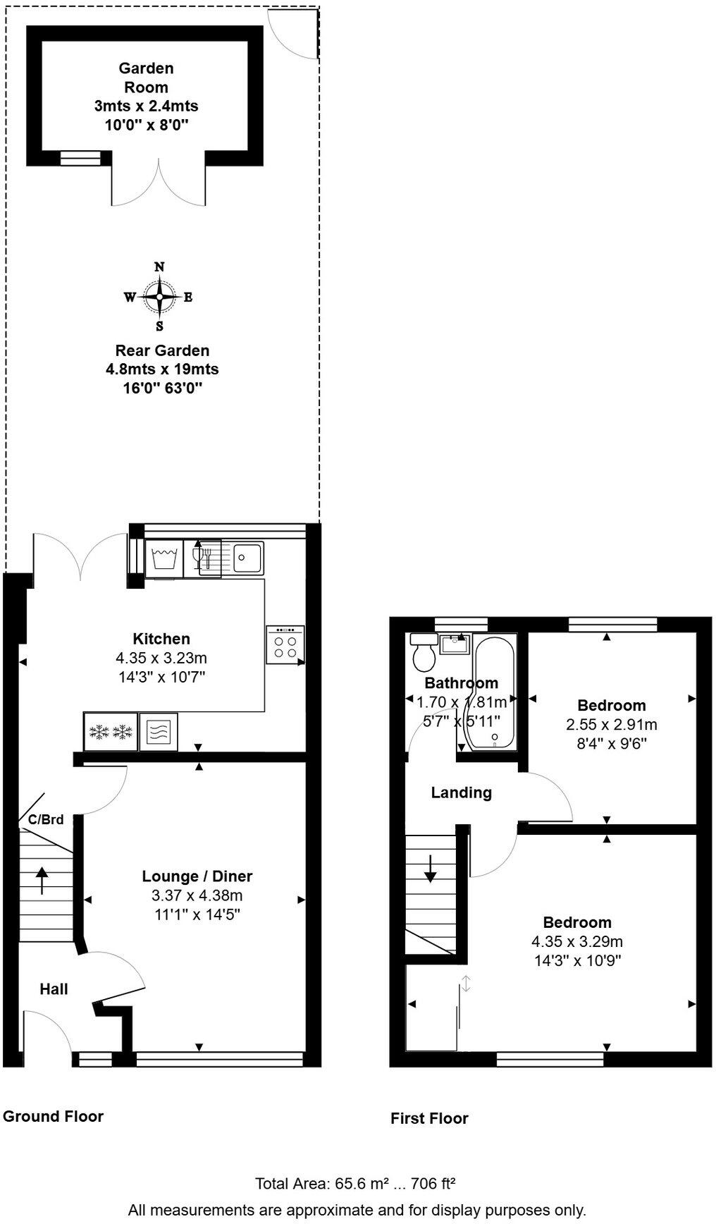
WELL PRESENTED & SPACIOUS TWO BEDROOM PROPERTY SITUATED ALONG THIS MUCH SOUGHT AFTER ROAD IDEALLY LOCATED FOR EASY ACCESS TO STAINES TOWN CENTRE, MAINLINE TRAIN STATION & LOCAL SHOPS. The property benefits from a spacious lounge, modern kitchen/diner, two well-proportioned bedrooms, mo...
Property Oracle says ..
Therefore, we give this property 6 / 10. *Disclaimer: This is our option and does constitute a recommendation or financial advice. Do your own research. *
- Price
- 4
- Condition
- 7
- Location
- 7
- Land
- 7
- Bedrooms
- 2
- Bathrooms
- 1
- Sqft (est)
- 706.11
- Lot (est)
- 981.67
The heatmap indicates the level of crime in the area. The color of the heatmap indicates the crime severity and recency.
Metrics Year-on-Year
- Average area value
- 675,000.00 £Increased by 43.07 %
- Est sale value
- 288,092.88 £Decreased by 18.24 %
- Average area rental value
- 2,200.00 £/moIncreased by 22.22 %
- Est letting value
- 706.11 £/moUnchanged by 0.00 %
- Est rental Yield
- 3.91 %Decreased by 14.63 %
- Crime Rate
- 12.00 %Unchanged by 0.00 %
from 471,809.00 £
from 352,348.89 £
from 1,800.00 £/mo
from 706.11 £/mo
from 4.58 %
from 12.00 %
Agent Activity
Gregory Brown created the listing.
Nearby Schools
| Name | Type | Ofsted | Distance |
|---|---|---|---|
| The Matthew Arnold School | Academy Converter | Good | 0.25 KM |
| Buckland Sure Start Children'S Centre | Children's Centre | 0.76 KM | |
| Buckland Primary School | Community School | Good | 0.79 KM |
| Staines Preparatory School | Other Independent School | 1.36 KM | |
| Ashford Park Primary School | Community School | Good | 1.37 KM |
Images
Nearby Streets
| Name | Average Price | Average Sqft | Distance |
|---|---|---|---|
| Strode's Crescent | £ 0 | 0 | 0.00 KM |
| Warwick Avenue | £ 0 | 0 | 0.00 KM |
| Berryscroft Court | £ 131,667 | 0 | 0.00 KM |
| The Sidings | £ 0 | 0 | 0.00 KM |
| Buxton Road | £ 0 | 0 | 0.00 KM |
Nearby Transport
| Name | NLC | TLC | Distance |
|---|---|---|---|
| Staines | 5670 | SNS | 1.70 KM |
| Ashford (Surrey) | 5667 | AFS | 2.40 KM |
| Heathrow Terminal 5 | 9846 | HWV | 4.62 KM |
| Chertsey | 5553 | CHY | 5.18 KM |
| Heathrow Terminal 4 | 7091 | HAF | 5.77 KM |
Nearby Listings
| Address | Price | Type | Score | Distance |
|---|---|---|---|---|
| Kenilworth Gardens, Staines-upon-Thames, TW18 | £ 430,000 | BUY | 6 / 10 | 0.00 KM |
| Kenilworth Gardens, Staines, Surrey, TW18 | £ 450,000 | BUY | 6 / 10 | 0.03 KM |
| Kenilworth Gardens, Staines-upon-Thames, TW18 | £ 490,000 | BUY | Unknown | 0.04 KM |
| Kenilworth Gardens, Staines, Surrey, TW18 | £ 450,000 | BUY | 7 / 10 | 0.04 KM |
| Petersfield Road, Staines-upon-Thames, Surrey, TW18 | £ 475,000 | BUY | 6 / 10 | 0.05 KM |
Nearby Properties
| Address | Price | Distance |
|---|---|---|
| 37 Kenilworth Gardens | £ 425,000 | 0.00 KM |
| 21 Kenilworth Gardens | £ 383,000 | 0.00 KM |
| 25 Kenilworth Gardens | £ 345,000 | 0.00 KM |
| 51 Kenilworth Gardens | £ 430,000 | 0.00 KM |
| 39 Kenilworth Gardens | £ 420,000 | 0.00 KM |