Arkwright & Co says ..
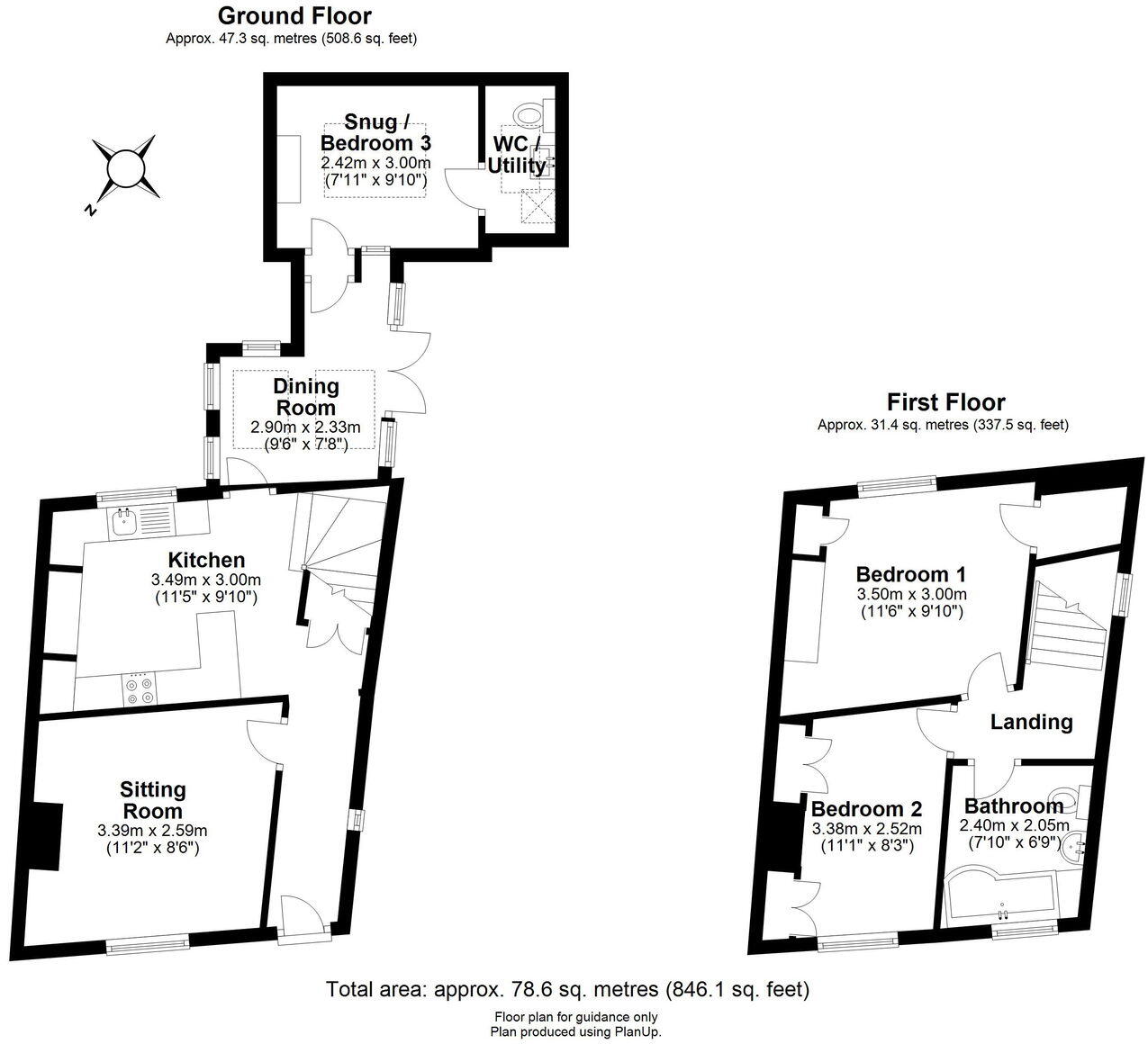
OPEN DAY SATURDAY 13TH SEPTEMBER BY APPOINTMENT ONLY - A stylish beautifully presented 2/3-bedroom period cottage, occupying a delightful position, tucked away in the heart of this well served and popular village enjoying, being close to the picturesque Elephant Green, overlooking the Church a...
Property Oracle says ..
Therefore, we give this property 6 / 10. *Disclaimer: This is our option and does constitute a recommendation or financial advice. Do your own research. *
- Price
- 5
- Condition
- 8
- Location
- 8
- Land
- 6
- Bedrooms
- 3
- Bathrooms
- 1
The heatmap indicates the level of crime in the area. The color of the heatmap indicates the crime severity and recency.
Metrics Year-on-Year
- Average area value
- 311,242.00 £Decreased by 1.54 %
- Average area rental value
- 592.00 £/moIncreased by 6.09 %
- Est rental Yield
- 2.28 %Increased by 7.55 %
- Crime Rate
- 28.00 %Unchanged by 0.00 %
from 316,102.00 £
from 558.00 £/mo
from 2.12 %
from 28.00 %
Agent Activity
Arkwright & Co created the listing.
Nearby Schools
| Name | Type | Ofsted | Distance |
|---|---|---|---|
| Joyce Frankland Academy, Newport | Academy Converter | Good | 0.36 KM |
| Newport Primary School | Community School | Good | 0.81 KM |
| Saffron Walden County High School | Academy Converter | Outstanding | 4.12 KM |
| Katherine Semar Junior School | Academy Converter | 4.53 KM | |
| Rickling Church Of England Voluntary Aided Primary School | Voluntary Aided School | Good | 4.54 KM |
Images
Nearby Streets
| Name | Average Price | Average Sqft | Distance |
|---|---|---|---|
| Church Street | £ 355,000 | 0 | 0.00 KM |
| Chapel Lane | £ 0 | 0 | 0.00 KM |
| Joyce Frankland Close | £ 779,950 | 0 | 0.00 KM |
| School Lane | £ 0 | 0 | 0.00 KM |
| Tenterfields | £ 0 | 0 | 0.00 KM |
Nearby Transport
| Name | NLC | TLC | Distance |
|---|---|---|---|
| Newport (Essex) | 7039 | NWE | 0.54 KM |
| Audley End | 7017 | AUD | 2.33 KM |
| Elsenham (Essex) | 6832 | ESM | 7.30 KM |
| Great Chesterford | 7032 | GRC | 8.67 KM |
| Stansted Mountfitchet | 6833 | SST | 9.38 KM |
Nearby Listings
| Address | Price | Type | Score | Distance |
|---|---|---|---|---|
| Church Street, Newport | £ 450,000 | BUY | 6 / 10 | 0.00 KM |
| Church Street, Newport, Saffron Walden | £ 360,000 | BUY | 6 / 10 | 0.03 KM |
| Elephant Green, Newport, Saffron Walden | £ 240,000 | BUY | 6 / 10 | 0.06 KM |
| Elephant Green, Newport, Saffron Walden | £ 515,000 | BUY | Unknown | 0.07 KM |
| Elephant Green, Newport, Saffron Walden | £ 585,000 | BUY | 6 / 10 | 0.07 KM |
Nearby Properties
| Address | Price | Distance |
|---|---|---|
| Yew Cottage | £ 100,000 | 0.01 KM |
| 10 Church Street | £ 400,000 | 0.01 KM |
| 4 Church Street | £ 275,000 | 0.03 KM |
| Church Cottage | £ 231,250 | 0.03 KM |
| 8 Church Street | £ 315,000 | 0.03 KM |