Longsons says ..
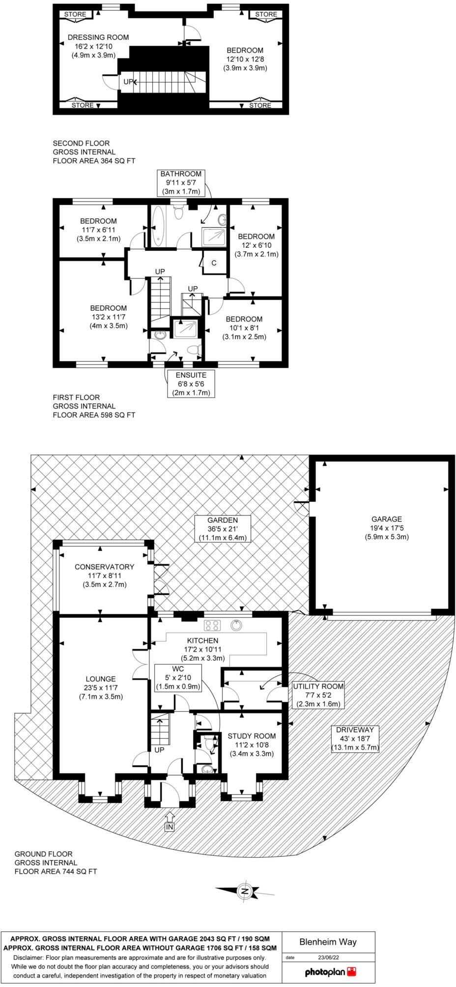
Very well presented 5 bedroom detached family house situated at the end of an established development in the Norfolk town of Watton. This wonderful property offers 2 reception rooms, utility room, conservatory, en-suite shower room, ample parking and double garage! Viewing highly recommended!
Property Oracle says ..
Therefore, we give this property 7 / 10. *Disclaimer: This is our option and does constitute a recommendation or financial advice. Do your own research. *
- Price
- 8
- Condition
- 8
- Location
- 7
- Land
- 7
- Bedrooms
- 5
- Bathrooms
- 2
- Sqft (est)
- 2,079.19
The heatmap indicates the level of crime in the area. The color of the heatmap indicates the crime severity and recency.
Metrics Year-on-Year
- Average area value
- 296,999.00 £Increased by 10.48 %
- Est sale value
- 671,578.37 £Increased by 18.32 %
- Average area rental value
- 900.00 £/moDecreased by 21.53 %
- Est letting value
- 0.00 £/moDecreased by 100.00 %
- Est rental Yield
- 3.64 %Decreased by 28.91 %
- Crime Rate
- 15.00 %Unchanged by 0.00 %
from 268,837.00 £
from 567,618.87 £
from 1,147.00 £/mo
from 2,079.19 £/mo
from 5.12 %
from 15.00 %
Agent Activity
Longsons marked this listing as sold.
Longsons created the listing.
Nearby Schools
| Name | Type | Ofsted | Distance |
|---|---|---|---|
| Wayland Academy | Academy Converter | Requires improvement | 2.00 KM |
| Watton Children'S Centre | Children's Centre | 2.27 KM | |
| Watton Westfield Infant And Nursery School | Academy Sponsor Led | Good | 2.39 KM |
| Watton Junior School | Academy Sponsor Led | 2.60 KM | |
| St Peter And St Paul Church Of England Primary Academy & Nursery | Academy Converter | Good | 4.00 KM |
Images
Nearby Streets
| Name | Average Price | Average Sqft | Distance |
|---|---|---|---|
| Bramble Way | £ 290,000 | 0 | 0.00 KM |
| Crabtree Close | £ 382,500 | 0 | 0.00 KM |
| Gillman's Drift | £ 0 | 0 | 0.00 KM |
| Burr Close | £ 550,000 | 0 | 0.00 KM |
| Horseshoe Close | £ 0 | 0 | 0.00 KM |
Nearby Listings
| Address | Price | Type | Score | Distance |
|---|---|---|---|---|
| Blenheim Way, Watton | £ 350,000 | BUY | 7 / 10 | 0.00 KM |
| Blenheim Way, Watton | £ 300,000 | BUY | 7 / 10 | 0.09 KM |
| Watton | £ 210,000 | BUY | 6 / 10 | 0.12 KM |
| Harvest Road, Thetford, IP25 | £ 290,000 | BUY | 7 / 10 | 0.14 KM |
| Badger Drive, Watton, Thetford | £ 280,000 | BUY | 6 / 10 | 0.14 KM |
Nearby Properties
| Address | Price | Distance |
|---|---|---|
| 51 Blenheim Way | £ 87,000 | 0.01 KM |
| 2 Blenheim Way | £ 162,000 | 0.01 KM |
| 49 Blenheim Way | £ 181,000 | 0.01 KM |
| 45 Blenheim Way | £ 105,000 | 0.01 KM |
| 27 Blenheim Way | £ 45,500 | 0.01 KM |