David Daniels says ..
Nestled in the tranquil Arundel Close, this charming mid-terraced house offers a delightful blend of comfort and convenience. Boasting three bedrooms, this property is perfect for families or those seeking extra room for guests or a home office. The two reception rooms provide ample space for rel...
Property Oracle says ..
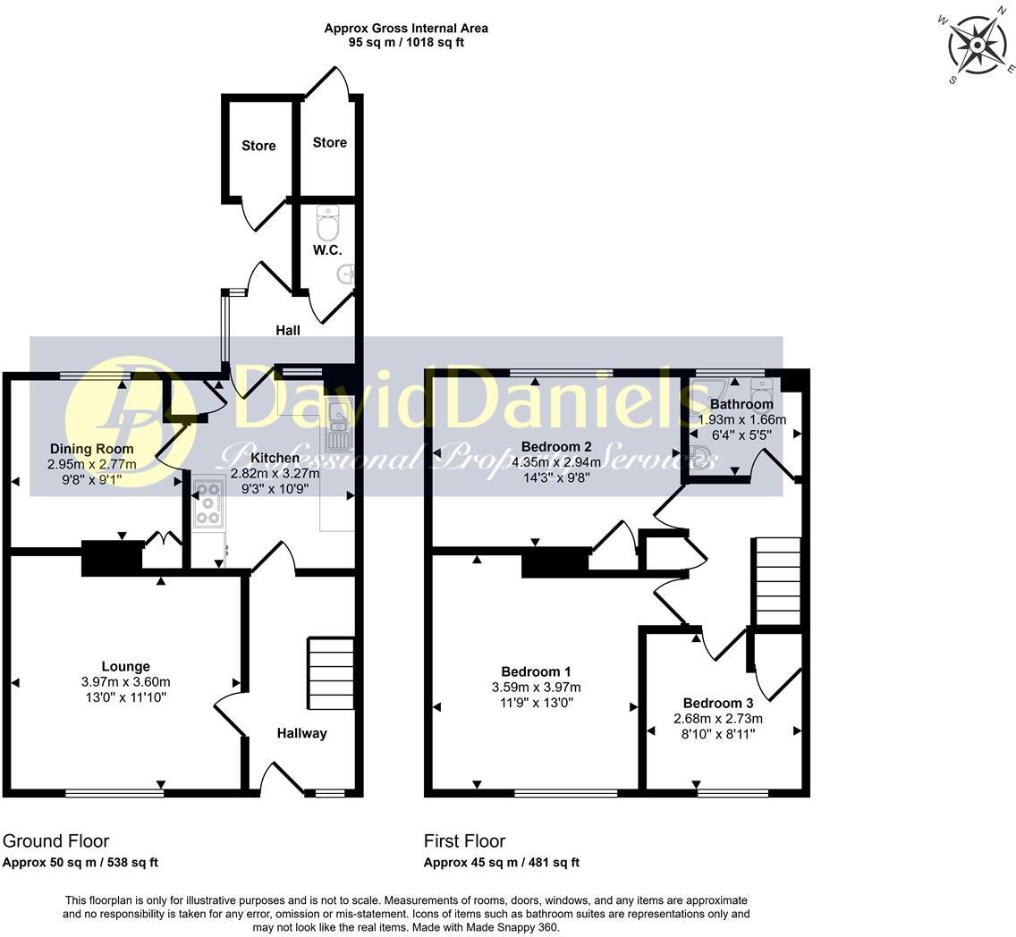
This three-bedroom terraced house in Waltham Forest, London, is listed at £600,000. The property’s location is a key selling point, being within reasonable proximity to public transportation and several schools. Maryland station provides access to TfL Rail services, while Leytonstone High Road offers connections to the London Overground network. The presence of several primary schools nearby, including one rated ‘Good’ by Ofsted, enhances the area’s family-friendly appeal. The property features three bedrooms, one bathroom, and a garden. However, the images provided indicate a need for some updating. The interiors appear slightly dated and could benefit from modernisation, including new flooring, fresh paint, and some repairs to be completed. The garden, while present, seems relatively compact based on the photos. Overall, the property presents a solid investment opportunity in a well-connected area. However, potential buyers should factor in potential refurbishment costs. Given the lack of comprehensive details on the square footage of the property and the nearby comparable properties, it’s difficult to accurately assess the value for money. More precise information on property sizes would significantly enhance the evaluation.
Therefore, we give this property 5 / 10. *Disclaimer: This is our option and does constitute a recommendation or financial advice. Do your own research. *
- Price
- 7
- Condition
- 5
- Location
- 7
- Land
- 4
- Bedrooms
- 3
- Bathrooms
- 1
- Sqft (est)
- 1,506.95
The heatmap indicates the level of crime in the area. The color of the heatmap indicates the crime severity and recency.
Metrics Year-on-Year
- Average area value
- 439,656.00 £Increased by 12.48 %
- Est sale value
- 673,606.65 £Increased by 5.18 %
- Average area rental value
- 2,161.00 £/moIncreased by 12.61 %
- Est letting value
- 3,013.90 £/moUnchanged by 0.00 %
- Est rental Yield
- 5.90 %Increased by 0.17 %
- Crime Rate
- 5.00 %Unchanged by 0.00 %
Agent Activity
David Daniels created the listing.
Nearby Schools
| Name | Type | Ofsted | Distance |
|---|---|---|---|
| Maryland Childrens Centre | Children's Centre | 0.21 KM | |
| Maryland Primary School | Community School | Good | 0.23 KM |
| The Jenny Hammond Primary School | Community School | Good | 0.33 KM |
| St Francis' Catholic Primary School | Academy Converter | 0.45 KM | |
| Snowberry Children'S Centre | Children's Centre Linked Site | 0.54 KM |
Images
Nearby Streets
| Name | Average Price | Average Sqft | Distance |
|---|---|---|---|
| Arundel Close | £ 600,000 | 0 | 0.00 KM |
| Marlborough Road | £ 0 | 0 | 0.00 KM |
| Canons Court | £ 475,000 | 0 | 0.00 KM |
| Vanbrugh Mews | £ 0 | 0 | 0.00 KM |
| Morris Road | £ 0 | 0 | 0.00 KM |
Nearby Transport
| Name | NLC | TLC | Distance |
|---|---|---|---|
| Maryland | 6970 | MYL | 0.69 KM |
| Leytonstone High Road | 7403 | LER | 1.30 KM |
| Stratford | 6969 | SRA | 1.67 KM |
| Forest Gate | 6876 | FOG | 1.85 KM |
| Stratford International | 7222 | SFA | 2.00 KM |
Nearby Listings
| Address | Price | Type | Score | Distance |
|---|---|---|---|---|
| Arundel Close, London | £ 600,000 | BUY | 5 / 10 | 0.00 KM |
| Borthwick Road, London, E15 | £ 600,000 | BUY | 5 / 10 | 0.06 KM |
| Arundel Close, London, E15 | £ 1,250,000 | BUY | 6 / 10 | 0.07 KM |
| Janson Road, London | £ 500,000 | BUY | 5 / 10 | 0.10 KM |
| Janson Road, London | £ 580,000 | BUY | 6 / 10 | 0.12 KM |
Nearby Properties
| Address | Price | Distance |
|---|---|---|
| 4 Arundel Close | £ 225,000 | 0.06 KM |
| 36 Arundel Close | £ 95,000 | 0.06 KM |
| 16 Arundel Close | £ 429,995 | 0.06 KM |
| 40 Arundel Close | £ 275,000 | 0.06 KM |
| 1 Arundel Close | £ 205,000 | 0.06 KM |