Patteson Road, Norwich, Norfolk
By Stobart & Hurrell
£ 230,000
Reviews
3 out of 5 stars
Stobart & Hurrell says ..
A wonderful opportunity to enjoy city living with a community feel, in one of Norwich’s most popular and well-connected areas. Located in the highly sought-after NR3 postcode of Norwich, this well-presented three-bedroom mid-terrace home, with no onward chain, is ideal for young familie...
Property Oracle says ..
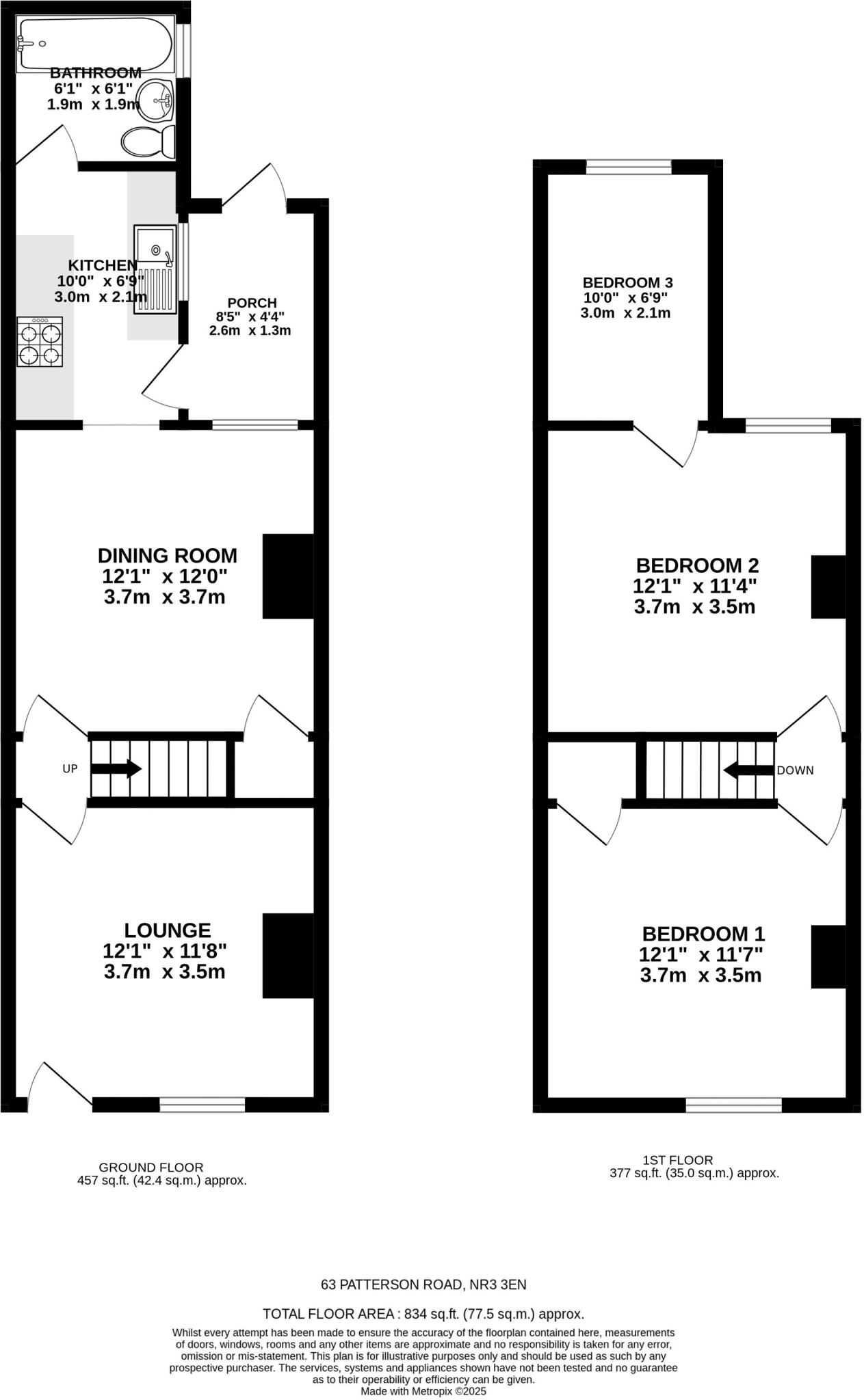
This is a three-bedroom terraced house on Patteson Road, Norwich. The property features a modern kitchen and bathroom, and a good-sized garden. While generally well-maintained, some areas could benefit from cosmetic improvements. It is located close to local schools and has good transport links. The asking price of £230,000 appears reasonable when compared to similar properties in the area and the average price per square foot.
Therefore, we give this property 6 / 10. *Disclaimer: This is our option and does constitute a recommendation or financial advice. Do your own research. *
- Price
- 7
- Condition
- 6
- Location
- 7
- Land
- 7
- Bedrooms
- 3
- Bathrooms
- 1
- Sqft (est)
- 834.20
The heatmap indicates the level of crime in the area. The color of the heatmap indicates the crime severity and recency.
Metrics Year-on-Year
- Average area value
- 245,000.00 £Increased by 7.96 %
- Est sale value
- 165,171.60 £Decreased by 13.54 %
- Average area rental value
- 928.00 £/moDecreased by 12.12 %
- Est letting value
- 0.00 £/moDecreased by 100.00 %
- Est rental Yield
- 4.55 %Decreased by 18.46 %
- Crime Rate
- 1.00 %Unchanged by 0.00 %
Agent Activity
Stobart & Hurrell created the listing.
Nearby Schools
| Name | Type | Ofsted | Distance |
|---|---|---|---|
| Angel Road Infant School | Academy Converter | 0.33 KM | |
| North City Children'S Centre | Children's Centre | 0.34 KM | |
| Angel Road Junior School | Academy Sponsor Led | 0.35 KM | |
| Magdalen Gates Primary School | Community School | Good | 0.89 KM |
| Jane Austen College | Free Schools | Good | 0.95 KM |
Images
Nearby Streets
| Name | Average Price | Average Sqft | Distance |
|---|---|---|---|
| Saint Martins Close | £ 0 | 0 | 0.00 KM |
| Magpie Road | £ 225,000 | 0 | 0.00 KM |
| Old Whitings Court | £ 0 | 0 | 0.00 KM |
| Taylors Buildings | £ 0 | 0 | 0.00 KM |
| Rectory Court | £ 400,000 | 0 | 0.00 KM |
Nearby Transport
| Name | NLC | TLC | Distance |
|---|---|---|---|
| Norwich | 7309 | NRW | 2.38 KM |
Nearby Listings
| Address | Price | Type | Score | Distance |
|---|---|---|---|---|
| Patteson Road, Norwich, Norfolk | £ 230,000 | BUY | 6 / 10 | 0.00 KM |
| Patteson Road, Norwich | £ 240,000 | BUY | Unknown | 0.02 KM |
| Patteson Road, Norwich, NR3 | £ 270,000 | BUY | 7 / 10 | 0.05 KM |
| Eade Road, Norwich | £ 230,000 | BUY | 7 / 10 | 0.06 KM |
| Eade Road, Norwich, NR3 | £ 200,000 | BUY | 5 / 10 | 0.07 KM |
Nearby Properties
| Address | Price | Distance |
|---|---|---|
| 16 Patteson Road | £ 213,500 | 0.06 KM |
| 82 Patteson Road | £ 217,500 | 0.06 KM |
| 100 Patteson Road | £ 190,000 | 0.06 KM |
| 6 Patteson Road | £ 133,500 | 0.06 KM |
| 78 Patteson Road | £ 185,000 | 0.06 KM |