Knighton Lane, Aylestone, Leicester
By Phillips George Estate Agents
£ 195,000
Reviews
3 out of 5 stars
Phillips George Estate Agents says ..
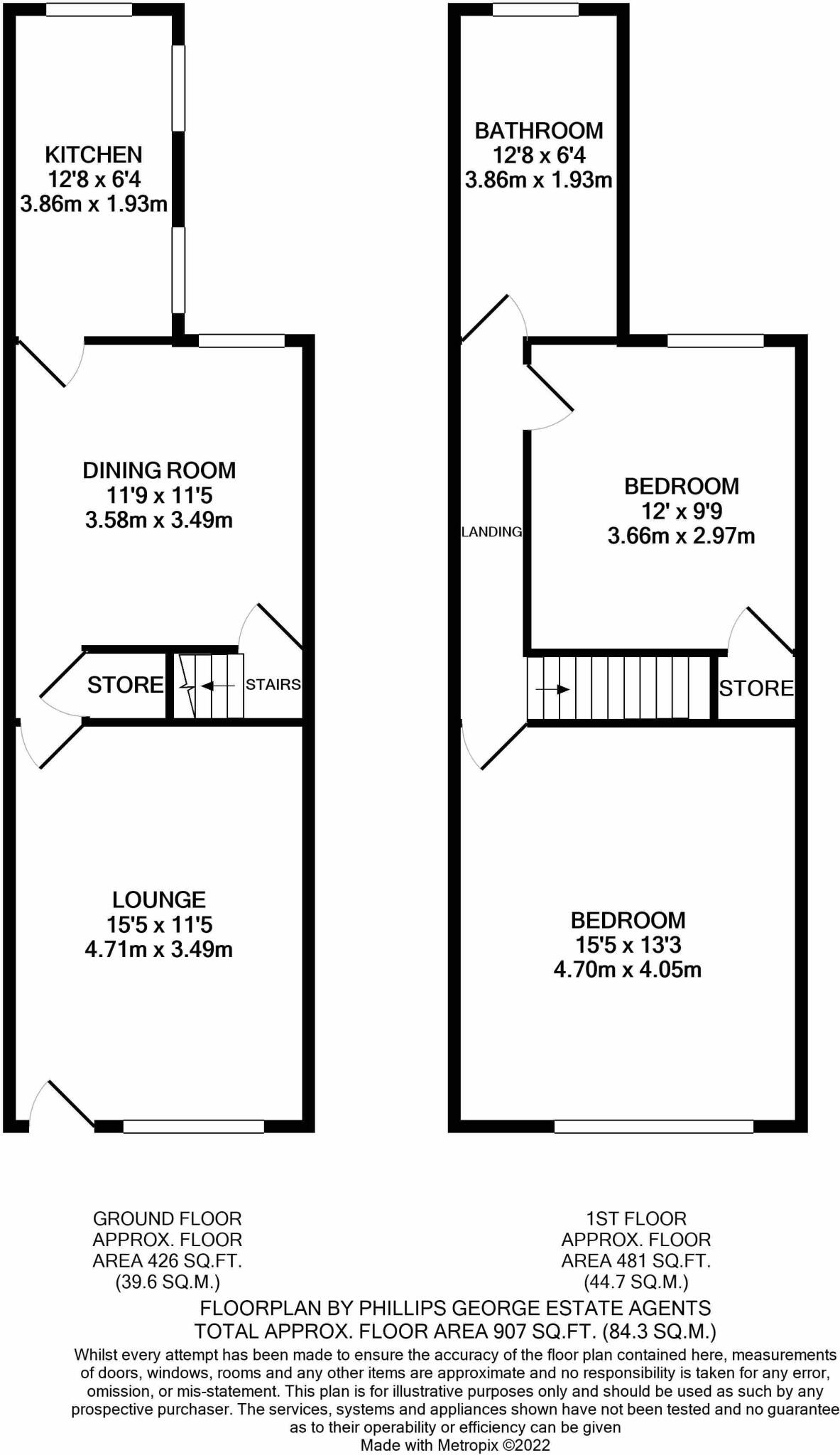
*NO CHAIN* A genuinely spacious two bedroom end terrace home well situated for an abundance of transport links and amenities. This attractive property combines original period features with a contemporary look including modern kitchen and bathroom with the added benefit of being fully re-decorate...
Property Oracle says ..
Therefore, we give this property 7 / 10. *Disclaimer: This is our option and does constitute a recommendation or financial advice. Do your own research. *
- Price
- 9
- Condition
- 7
- Location
- 8
- Land
- 7
- Bedrooms
- 2
- Bathrooms
- 1
- Sqft (est)
- 792.98
The heatmap indicates the level of crime in the area. The color of the heatmap indicates the crime severity and recency.
Metrics Year-on-Year
- Average area value
- 236,429.00 £Decreased by 2.75 %
- Est sale value
- 331,465.64 £Increased by 72.73 %
- Average area rental value
- 1,138.00 £/moIncreased by 31.11 %
- Est letting value
- 1,585.96 £/mo
- Est rental Yield
- 5.78 %Increased by 35.05 %
- Crime Rate
- 13.00 %Unchanged by 0.00 %
from 243,111.00 £
from 191,901.16 £
from 868.00 £/mo
from 0.00 £/mo
from 4.28 %
from 13.00 %
Agent Activity
Phillips George Estate Agents created the listing.
Nearby Schools
| Name | Type | Ofsted | Distance |
|---|---|---|---|
| Lansdowne Sure Start Children'S Centre | Children's Centre Linked Site | 0.35 KM | |
| Knighton Mead Primary Academy | Academy Converter | Good | 0.42 KM |
| Marriott Primary School | Community School | Good | 0.91 KM |
| Saffron Sure Start Children'S Centre | Children's Centre | 0.93 KM | |
| Millgate School | Academy Special Converter | 1.16 KM |
Images
Nearby Streets
| Name | Average Price | Average Sqft | Distance |
|---|---|---|---|
| Cavendish Mews | £ 0 | 0 | 0.00 KM |
| Bloomfield Road | £ 0 | 0 | 0.00 KM |
| Grace Road | £ 180,000 | 0 | 0.00 KM |
| Saffron Lane Emankment Access Road | £ 210,000 | 0 | 0.00 KM |
| Knighton Lane East | £ 0 | 0 | 0.00 KM |
Nearby Transport
| Name | NLC | TLC | Distance |
|---|---|---|---|
| Leicester | 1947 | LEI | 2.78 KM |
| South Wigston | 1949 | SWS | 3.10 KM |
| Narborough | 1881 | NBR | 8.41 KM |
Nearby Listings
| Address | Price | Type | Score | Distance |
|---|---|---|---|---|
| Knighton Lane, Aylestone, Leicester | £ 195,000 | BUY | 7 / 10 | 0.00 KM |
| Percy Road, Leicester | £ 115,000 | BUY | 5 / 10 | 0.05 KM |
| Percy Road, Aylestone, Leicester | £ 200,000 | BUY | 6 / 10 | 0.05 KM |
| Percy Road, Aylestone, Leicester | £ 200,000 | BUY | Unknown | 0.08 KM |
| Lansdowne Road, Aylestone, Leicester, LE2 | £ 130,000 | BUY | Unknown | 0.12 KM |
Nearby Properties
| Address | Price | Distance |
|---|---|---|
| 61 Knighton Lane | £ 107,000 | 0.03 KM |
| 45 Knighton Lane | £ 118,000 | 0.03 KM |
| 41 Knighton Lane | £ 175,500 | 0.03 KM |
| 97 Knighton Lane | £ 107,500 | 0.03 KM |
| 93 Knighton Lane | £ 95,000 | 0.03 KM |