BE
Fareham Close, Walton-Le-Dale, Preston
By Ben Rose Estate Agents
£ 117,500
Reviews
3 out of 5 stars
Ben Rose Estate Agents says ..
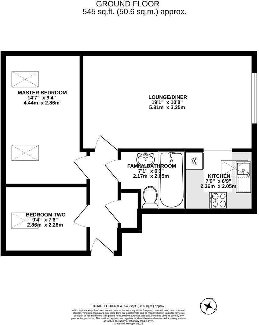
Ben Rose Estate Agents are pleased to present to market this two-bedroom, top floor apartment situated in the highly sought-after area of Walton-Le-Dale, Lancashire. Ideal for first-time buyers looking to step onto the property ladder, this well-maintained home offers modern living in a quiet res...
Property Oracle says ..
Therefore, we give this property 6 / 10. *Disclaimer: This is our option and does constitute a recommendation or financial advice. Do your own research. *
- Price
- 9
- Condition
- 8
- Location
- 7
- Land
- 1
- Bedrooms
- 2
- Bathrooms
- 1
- Sqft (est)
- 545.00
The heatmap indicates the level of crime in the area. The color of the heatmap indicates the crime severity and recency.
Metrics Year-on-Year
- Average area value
- 472,750.00 £Decreased by 21.88 %
- Est sale value
- 419,105.00 £Increased by 27.74 %
- Average area rental value
- 1,418.00 £/moDecreased by 35.04 %
- Est letting value
- 1,090.00 £/moUnchanged by 0.00 %
- Est rental Yield
- 3.60 %Decreased by 16.86 %
- Crime Rate
- 4.00 %Unchanged by 0.00 %
from 605,189.00 £
from 328,090.00 £
from 2,183.00 £/mo
from 1,090.00 £/mo
from 4.33 %
from 4.00 %
Agent Activity
Ben Rose Estate Agents created the listing.
Nearby Schools
| Name | Type | Ofsted | Distance |
|---|---|---|---|
| Bamber Bridge Children'S Centre | Children's Centre | 0.50 KM | |
| Walton-Le-Dale High School | Community School | Requires improvement | 0.57 KM |
| St Patrick'S Roman Catholic Primary School, Walton-Le-Dale | Voluntary Aided School | Good | 0.82 KM |
| Brownedge St Mary'S Catholic High School | Voluntary Aided School | Good | 0.83 KM |
| Bamber Bridge St Aidan'S Church Of England Primary School | Voluntary Controlled School | Good | 1.02 KM |
Images
Nearby Streets
| Name | Average Price | Average Sqft | Distance |
|---|---|---|---|
| School Street | £ 0 | 0 | 0.00 KM |
| Sollam's Close | £ 0 | 0 | 0.00 KM |
| Farm Lane | £ 0 | 0 | 0.00 KM |
| Ash Grove | £ 0 | 0 | 0.00 KM |
| The Square | £ 240,000 | 0 | 0.00 KM |
Nearby Transport
| Name | NLC | TLC | Distance |
|---|---|---|---|
| Bamber Bridge | 2561 | BMB | 1.49 KM |
| Lostock Hall | 2689 | LOH | 3.65 KM |
| Leyland | 2710 | LEY | 5.56 KM |
| Preston (Lancs) | 2753 | PRE | 5.79 KM |
| Buckshaw Parkway | 7501 | BSV | 7.42 KM |
Nearby Listings
| Address | Price | Type | Score | Distance |
|---|---|---|---|---|
| Fareham Close, Walton-Le-Dale, Preston | £ 117,500 | BUY | 6 / 10 | 0.00 KM |
| Fareham Close, Walton-Le-Dale, Preston | £ 240,000 | BUY | 7 / 10 | 0.01 KM |
| Halliwell Heights, Walton-Le-Dale, Preston | £ 289,950 | BUY | 7 / 10 | 0.07 KM |
| Fareham Close, Walton-Le-Dale, Preston | £ 365,000 | BUY | Unknown | 0.09 KM |
| Elmsett Road, Walton Le Dale, Preston | £ 360,000 | BUY | Unknown | 0.10 KM |
Nearby Properties
| Address | Price | Distance |
|---|---|---|
| 27 Fareham Close | £ 212,500 | 0.01 KM |
| 62 Fareham Close | £ 282,500 | 0.01 KM |
| 3 Fareham Close | £ 158,000 | 0.01 KM |
| 18 Fareham Close | £ 185,000 | 0.01 KM |
| 37 Fareham Close | £ 280,000 | 0.01 KM |