Liverpool Road, Walmer Bridge, Preston
By Ben Rose
£ 250,000
Reviews
3 out of 5 stars
Ben Rose says ..
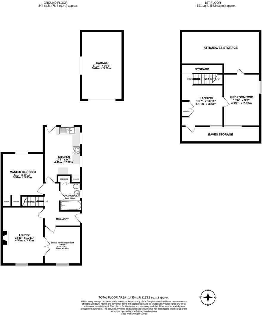
Ben Rose Estate Agents are delighted to present to the market this beautifully presented two/three-bedroom semi-detached home, located in the highly desirable village of Walmer Bridge. This charming property offers the perfect blend of comfort and convenience, benefiting from excellent local amen...
Property Oracle says ..
This semi-detached bungalow in Walmer Bridge, Preston is located in a convenient area with nearby schools and transportation options. The property itself appears to be in good condition, with recent renovations or updates evident in the kitchen and bathroom. The images show a modern and well-maintained interior. The bungalow also benefits from a garden, adding to its appeal. While the list price of £250,000 is above the average price per square foot for the area, the property’s condition, modern features, and garden could justify this price point. Further investigation into comparable properties in the immediate vicinity would be beneficial to confirm the pricing accuracy.
Therefore, we give this property 7 / 10. *Disclaimer: This is our option and does constitute a recommendation or financial advice. Do your own research. *
- Price
- 7
- Condition
- 9
- Location
- 8
- Land
- 7
- Bedrooms
- 3
- Bathrooms
- 1
- Sqft (est)
- 887.60
- Lot (est)
- 1,435.00
The heatmap indicates the level of crime in the area. The color of the heatmap indicates the crime severity and recency.
Metrics Year-on-Year
- Average area value
- 472,750.00 £Decreased by 21.88 %
- Est sale value
- 682,564.40 £Increased by 27.74 %
- Average area rental value
- 1,418.00 £/moDecreased by 35.04 %
- Est letting value
- 1,775.20 £/moUnchanged by 0.00 %
- Est rental Yield
- 3.60 %Decreased by 16.86 %
- Crime Rate
- 5.00 %Unchanged by 0.00 %
Agent Activity
Ben Rose created the listing.
Nearby Schools
| Name | Type | Ofsted | Distance |
|---|---|---|---|
| Little Hoole Primary School | Community School | Good | 0.63 KM |
| Longton Primary School | Community School | Outstanding | 1.43 KM |
| Longton Children'S Centre | Children's Centre Linked Site | 1.59 KM | |
| St Oswald'S Catholic Primary School, Longton | Voluntary Aided School | Good | 1.90 KM |
| Hoole St Michael Cofe Primary School | Voluntary Aided School | Good | 3.35 KM |
Images
Nearby Streets
| Name | Average Price | Average Sqft | Distance |
|---|---|---|---|
| Meadowside | £ 320,000 | 0 | 0.00 KM |
| Nursery Gardens | £ 0 | 0 | 0.00 KM |
| Oldfield | £ 240,000 | 0 | 0.00 KM |
| Grove Avenue | £ 0 | 0 | 0.00 KM |
| Partridge Close | £ 0 | 0 | 0.00 KM |
Nearby Transport
| Name | NLC | TLC | Distance |
|---|---|---|---|
| Croston | 2313 | CSO | 5.36 KM |
| Salwick | 2673 | SLW | 8.05 KM |
| Rufford | 2315 | RUF | 9.00 KM |
Nearby Listings
| Address | Price | Type | Score | Distance |
|---|---|---|---|---|
| Liverpool Road, Walmer Bridge, Preston | £ 250,000 | BUY | 7 / 10 | 0.00 KM |
| Liverpool Road, Walmer Bridge, "on the cusp of Longton", PR4 5QD | £ 280,000 | BUY | 7 / 10 | 0.07 KM |
| Hall Carr Lane, Walmer Bridge, Preston | £ 324,950 | BUY | 6 / 10 | 0.09 KM |
| Hall Carr Lane,Walmer Bridge,Preston,PR4 5RA | £ 185,000 | BUY | 7 / 10 | 0.10 KM |
| Hall Carr Lane, Walmer Bridge, Preston, PR4 5RA | £ 289,950 | BUY | 7 / 10 | 0.10 KM |
Nearby Properties
| Address | Price | Distance |
|---|---|---|
| 319 Liverpool Road | £ 185,000 | 0.06 KM |
| 327 Liverpool Road | £ 130,000 | 0.06 KM |
| 289a Liverpool Road | £ 238,000 | 0.06 KM |
| 287 Liverpool Road | £ 250,000 | 0.06 KM |
| 309 Liverpool Road | £ 135,000 | 0.06 KM |