Swindon Hall Grounds, Church Road, Swindon Village, Cheltenham, GL51
CJ

Swindon Hall Grounds, Church Road, Swindon Village, Cheltenham, GL51

By CJ Hole

£ 625,000

Reviews

3 out of 5 stars

CJ Hole says ..

A substantial individual detached bungalow built approximately 40 years ago, situated in the picturesque and desirable historical part of Swindon Village along a private road overlooking a tranquil lake

Property Oracle says ..

This substantial detached bungalow is situated in the highly desirable Swindon Village, Cheltenham. It benefits from a tranquil setting overlooking a private lake, a significant selling point. The property includes three bedrooms and two bathrooms, a detached garage, and a sizable garden. The interior photos reveal a layout that could be seen as slightly dated, with the kitchen and bathrooms particularly showing a need for potential modernisation. The property shows the charm of older construction with the presence of exposed wooden beams and a stone fireplace. The overall impression is of a property with considerable potential but requiring updating in certain areas. The property’s location is a key strength, adding to the attractiveness of the potential investment, with good schools and transport links nearby. The lack of precise square footage data from the property and comparables in the neighborhood makes providing a full market analysis challenging. The listed price is competitive considering its location and unique lake view feature.

Therefore, we give this property 7 / 10. *Disclaimer: This is our option and does constitute a recommendation or financial advice. Do your own research. *

Price
7
Condition
6
Location
8
Land
7
Bedrooms
3
Bathrooms
2
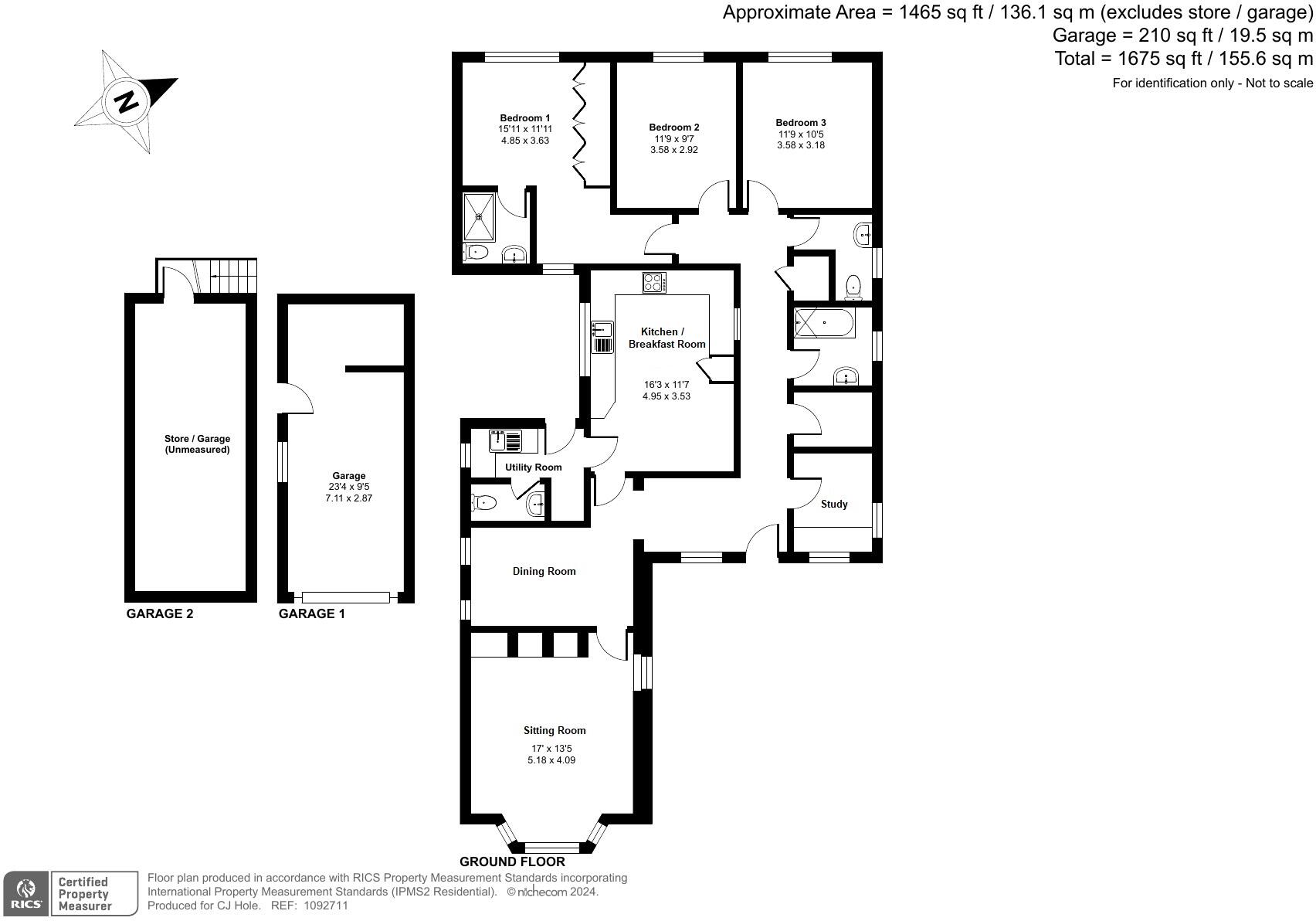
Sqft (est)
1,675.00

The heatmap indicates the level of crime in the area. The color of the heatmap indicates the crime severity and recency.

Metrics Year-on-Year

Average area value
513,942.00 £
Decreased by 2.28 %
from 525,912.00 £
Est sale value
956,425.00 £
Decreased by 5.93 %
from 1,016,725.00 £
Average area rental value
2,061.00 £/mo
Increased by 1.93 %
from 2,022.00 £/mo
Est letting value
3,350.00 £/mo
Unchanged by 0.00 %
from 3,350.00 £/mo
Est rental Yield
4.81 %
Increased by 4.34 %
from 4.61 %
Crime Rate
0.00 %
from 0.00 %

Agent Activity

  • CJ Hole created the listing.

Nearby Schools

NameTypeOfstedDistance
Swindon Village Primary SchoolFoundation SchoolGood0.43 KM
Gardners Lane Children'S CentreChildren's Centre1.27 KM
Gardners Lane Primary SchoolFoundation SchoolGood1.45 KM
Gloucester Road Primary SchoolCommunity SchoolOutstanding1.97 KM
All Saints' Academy, CheltenhamAcademy Sponsor LedGood1.98 KM

Images

Picture No. 31 Picture No. 23 Picture No. 14 Picture No. 15 Picture No. 07 Picture No. 06 Picture No. 12 Picture No. 05 Picture No. 13 Picture No. 26 Picture No. 25 Picture No. 35 Picture No. 34 Picture No. 04 Picture No. 03 Picture No. 21 Picture No. 16 Picture No. 09 Picture No. 08 Picture No. 22 Picture No. 18 Picture No. 17 Picture No. 20 Picture No. 19 Picture No. 11 Picture No. 10 Picture No. 33

Nearby Streets

NameAverage PriceAverage SqftDistance
Farm Court £ 500,00000.00 KM
Windyridge Road £ 000.00 KM
Furlong Close £ 000.00 KM
Brook Road £ 205,00000.00 KM
O'Brien Road £ 250,00000.00 KM

Nearby Transport

NameNLCTLCDistance
Cheltenham Spa4731CNM2.82 KM
Ashchurch For Tewkesbury4700ASC8.69 KM

Nearby Listings

AddressPriceTypeScoreDistance
Swindon Hall Grounds, Church Road, Swindon Village, Cheltenham, GL51 £ 625,000BUY7 / 100.00 KM
Church Road, Swindon Village, Cheltenham, GL51 £ 900,000BUY7 / 100.16 KM
Church Road, Swindon Village, Cheltenham £ 290,000BUY6 / 100.20 KM
Rivelands Road, Swindon Village, GL51 £ 250,000BUY5 / 100.27 KM
Rivelands Road, Swindon Village £ 300,000BUY8 / 100.27 KM

Nearby Properties

AddressPriceDistance
42 Church Road £ 232,0000.11 KM
36 Church Road £ 738,5000.11 KM
10 Smythe Road £ 405,0000.18 KM
9 Smythe Road £ 395,0000.18 KM
12 Smythe Road £ 330,0000.18 KM