Gascoigne Halman says ..
A well presented and appointed, extended mid terrace property. Located on a highly sought after cul de sac with easy access to Fog Lane Park, excellent transport links and both Didsbury and Withington villages with their array of independent shops, bars and restaurants. The property benefits from...
Property Oracle says ..
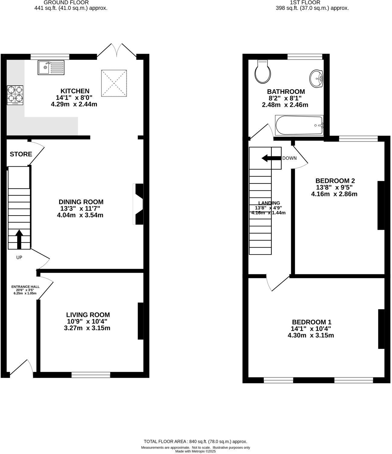
This is a two-bedroom terraced house in Withington, Manchester. The property is in generally good condition and has a good-sized garden. The property is located close to local schooling and has good transport links. The property is listed at £340,000, which is slightly below the average price for the area.
Therefore, we give this property 7 / 10. *Disclaimer: This is our option and does constitute a recommendation or financial advice. Do your own research. *
- Price
- 7
- Condition
- 7
- Location
- 7
- Land
- 7
- Bedrooms
- 2
- Bathrooms
- 1
- Sqft (est)
- 839.59
The heatmap indicates the level of crime in the area. The color of the heatmap indicates the crime severity and recency.
Metrics Year-on-Year
- Average area value
- 364,300.00 £Increased by 13.20 %
- Est sale value
- 329,958.87 £Increased by 30.13 %
- Average area rental value
- 1,872.00 £/moIncreased by 36.44 %
- Est letting value
- 1,679.18 £/moIncreased by 100.00 %
- Est rental Yield
- 6.17 %Increased by 20.51 %
- Crime Rate
- 16.00 %Unchanged by 0.00 %
Agent Activity
Gascoigne Halman created the listing.
Nearby Schools
| Name | Type | Ofsted | Distance |
|---|---|---|---|
| St Cuthbert'S Rc Primary School | Voluntary Aided School | Good | 0.30 KM |
| Manchester Muslim Preparatory School | Other Independent School | Good | 0.52 KM |
| St Paul'S Cofe Primary School | Voluntary Controlled School | Good | 0.74 KM |
| Bridgelea Pupil Referral Unit | Pupil Referral Unit | Good | 0.98 KM |
| Beaver Road Primary School | Academy Converter | 1.12 KM |
Images
Nearby Streets
| Name | Average Price | Average Sqft | Distance |
|---|---|---|---|
| The Circuit | £ 0 | 0 | 0.00 KM |
| Mere Avenue | £ 0 | 0 | 0.00 KM |
| Adria Avenue | £ 250,000 | 0 | 0.00 KM |
| Redcourt Avenue | £ 0 | 0 | 0.00 KM |
| Clayton Avenue | £ 1,495,000 | 0 | 0.00 KM |
Nearby Transport
| Name | NLC | TLC | Distance |
|---|---|---|---|
| Burnage | 2945 | BNA | 1.12 KM |
| Mauldeth Road | 2867 | MAU | 1.76 KM |
| East Didsbury | 2949 | EDY | 1.98 KM |
| Gatley | 2953 | GTY | 3.87 KM |
| Levenshulme | 2862 | LVM | 3.95 KM |
Nearby Listings
| Address | Price | Type | Score | Distance |
|---|---|---|---|---|
| Henwood Road, Withington | £ 340,000 | BUY | 7 / 10 | 0.00 KM |
| Henwood Road, Withington, Greater Manchester, M20 | £ 300,000 | BUY | 7 / 10 | 0.01 KM |
| Henwood Road, Withington | £ 320,000 | BUY | 6 / 10 | 0.02 KM |
| Henwood Road, Withington, Manchester, M20 | £ 340,000 | BUY | 6 / 10 | 0.02 KM |
| Henwood Road, Withington, Manchester, M20 | £ 300,000 | BUY | 6 / 10 | 0.02 KM |
Nearby Properties
| Address | Price | Distance |
|---|---|---|
| 42 Henwood Road | £ 179,500 | 0.05 KM |
| 58 Henwood Road | £ 250,000 | 0.05 KM |
| 94 Henwood Road | £ 175,000 | 0.05 KM |
| 44 Henwood Road | £ 258,000 | 0.05 KM |
| 56 Henwood Road | £ 212,000 | 0.05 KM |