Grosvenor Road, Stockton-On-Tees
By Robinsons
£ 340,000
Reviews
4 out of 5 stars
Robinsons says ..
This charming family home located in a fantastic location has come to the market ready to move straight into. The property has so much to offer comprising of an entrance hallway, two reception rooms, kitchen and dining room on the ground floor. The upper level offers three bedrooms with the mast...
Property Oracle says ..
The property is a 3-bedroom, 1-bathroom semi-detached house located on Grosvenor Road in Stockton-on-Tees. The list price is £340,000.
The property appears to be in excellent condition. The images show a recently renovated interior with modern fixtures and fittings. The kitchen and bathroom are particularly modern and well-maintained. There is no visible evidence of wear and tear or the need for repairs.
The property benefits from a substantial garden, which includes a large lawn, decking area, and various garden features. The size of the garden is a significant advantage, offering ample outdoor space.
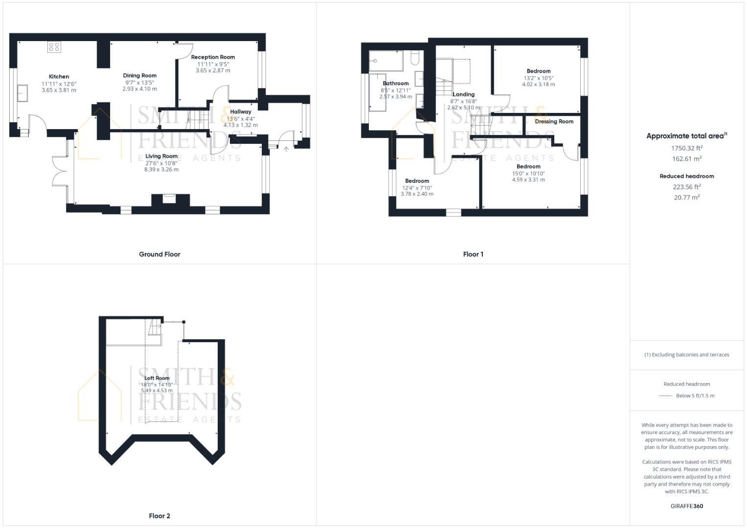
Considering the average house price in the area is £218,735 and the average price per square foot is £204, the list price of £340,000 for this 1,750.32 sqft property seems high. However, several factors could justify this price. The property is in excellent condition, recently renovated to a high standard, and has a larger than average garden. Nearby comparable properties on Grosvenor Road have sold for £150,000, £250,000, £182,500, £190,000, and £220,000. While some are lower, others are comparable, suggesting the £340,000 price point might reflect the superior condition and larger garden of this particular property. Further analysis of local comparable properties with similar renovations and garden sizes would be needed to definitively assess the price.
The location is positive. The property is within close proximity to several well-regarded schools, including Ian Ramsey Church of England Academy and The Grangefield Academy, both rated ‘Good’ by Ofsted. Additionally, several train stations are within a reasonable distance, providing convenient access to public transportation.
Therefore, we give this property 8 / 10. *Disclaimer: This is our option and does constitute a recommendation or financial advice. Do your own research. *
- Price
- 7
- Condition
- 10
- Location
- 8
- Land
- 10
- Bedrooms
- 3
- Bathrooms
- 1
- Sqft (est)
- 1,750.32
The heatmap indicates the level of crime in the area. The color of the heatmap indicates the crime severity and recency.
Metrics Year-on-Year
- Average area value
- 220,000.00 £Increased by 3.15 %
- Est sale value
- 497,090.88 £Increased by 38.54 %
- Average area rental value
- 850.00 £/moDecreased by 1.62 %
- Est letting value
- 1,750.32 £/mo
- Est rental Yield
- 4.64 %Decreased by 4.53 %
- Crime Rate
- 3.00 %Unchanged by 0.00 %
Agent Activity
Robinsons created the listing.
Nearby Schools
| Name | Type | Ofsted | Distance |
|---|---|---|---|
| Ian Ramsey Church Of England Academy | Academy Sponsor Led | Good | 0.45 KM |
| Hartburn Primary School | Academy Converter | 0.74 KM | |
| The Grangefield Academy | Academy Sponsor Led | Good | 0.80 KM |
| Our Lady & St. Bede Catholic Academy | Academy Sponsor Led | Outstanding | 1.01 KM |
| Holy Trinity Rosehill Cofe Voluntary Aided Primary School | Voluntary Aided School | Good | 1.30 KM |
Images
Nearby Streets
| Name | Average Price | Average Sqft | Distance |
|---|---|---|---|
| Highfield Crescent | £ 180,000 | 0 | 0.00 KM |
| Greenwood Road | £ 299,000 | 0 | 0.00 KM |
| The Chase | £ 0 | 0 | 0.00 KM |
| Oxbridge Avenue | £ 0 | 0 | 0.00 KM |
| Orwell Gardens | £ 215,000 | 0 | 0.00 KM |
Nearby Transport
| Name | NLC | TLC | Distance |
|---|---|---|---|
| Stockton | 7975 | STK | 3.25 KM |
| Eaglescliffe | 7916 | EAG | 3.64 KM |
| Allens West | 7520 | ALW | 4.45 KM |
| Thornaby | 7976 | TBY | 5.05 KM |
| Yarm | 7917 | YRM | 7.60 KM |
Nearby Listings
| Address | Price | Type | Score | Distance |
|---|---|---|---|---|
| Grosvenor Road, Stockton-On-Tees | £ 340,000 | BUY | 8 / 10 | 0.00 KM |
| Grosvenor Road, Stockton-On-Tees | £ 240,000 | BUY | 6 / 10 | 0.11 KM |
| Oxbridge Lane, Stockton-on-Tees, County Durham, TS19 | £ 335,000 | BUY | 7 / 10 | 0.18 KM |
| Oxbridge Lane, Stockton-on-Tees, County Durham, TS19 | £ 640,000 | BUY | 6 / 10 | 0.18 KM |
| Waltham Avenue, Stockton-on-tees, TS18 | £ 230,000 | BUY | 7 / 10 | 0.20 KM |
Nearby Properties
| Address | Price | Distance |
|---|---|---|
| 47 Grosvenor Road | £ 190,000 | 0.11 KM |
| 29 Grosvenor Road | £ 150,000 | 0.11 KM |
| 5 Grosvenor Road | £ 250,000 | 0.11 KM |
| 35 Grosvenor Road | £ 182,500 | 0.11 KM |
| 38 Grosvenor Road | £ 205,000 | 0.12 KM |