Marriott Cottage, Bentham
FI

Marriott Cottage, Bentham

By Fisher Hopper

£ 241,500

Fisher Hopper says ..

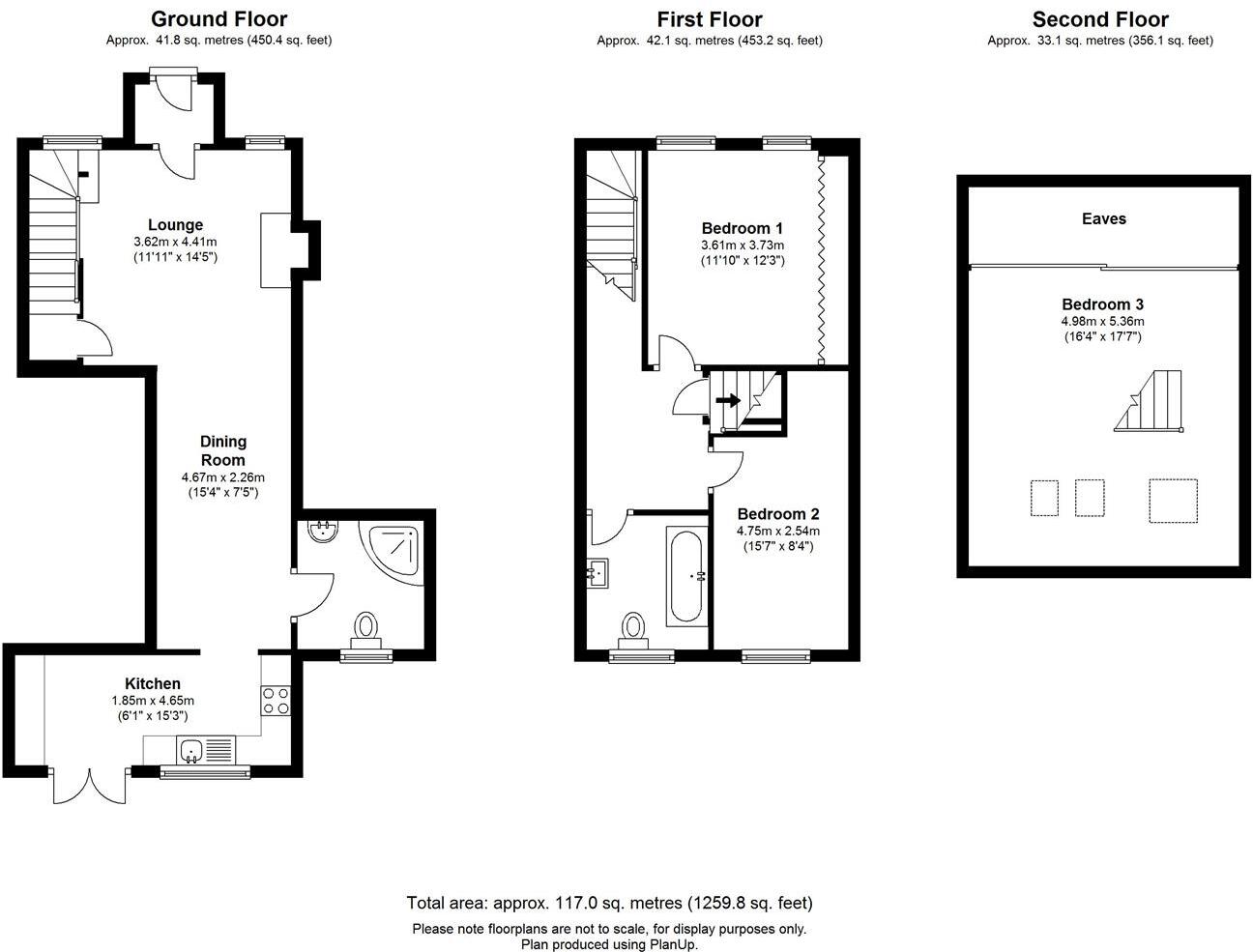
This well-presented three bedroom family home features a large open-plan sitting room/diner, a modern fitted kitchen, family bathroom, downstairs shower room. Additional benefits include a cellar and parking space for two cars. The property offers lovely views and a private lawned garde...

Bedrooms
3
Bathrooms
2
Sqft (est)
940.13

The heatmap indicates the level of crime in the area. The color of the heatmap indicates the crime severity and recency.

Metrics Year-on-Year

Average area value
1,245,000.00 £
Increased by 45.13 %
from 857,841.00 £
Est sale value
708,858.02 £
Decreased by 10.13 %
from 788,769.07 £
Average area rental value
2,513.00 £/mo
Increased by 0.60 %
from 2,498.00 £/mo
Est letting value
940.13 £/mo
Decreased by 50.00 %
from 1,880.26 £/mo
Est rental Yield
2.42 %
Decreased by 30.66 %
from 3.49 %
Crime Rate
54.00 %
Unchanged by 0.00 %
from 54.00 %

Agent Activity

  • Fisher Hopper created the listing.

Nearby Schools

NameTypeOfstedDistance
Bentham Community Primary SchoolCommunity SchoolGood0.89 KM
Stonegate SchoolOther Independent Special SchoolGood2.75 KM
Cedar House SchoolOther Independent Special SchoolGood3.56 KM
Tatham Fells Church Of England Voluntary Controlled Primary SchoolVoluntary Controlled SchoolGood4.72 KM
Ingleton Primary SchoolCommunity SchoolGood5.92 KM

Images

_57A5277.jpg Sitting Room Kitchen _57A5253.jpg Sitting Room Sitting Room Sitting Room Dining Room Dining_02.jpg Kitchen Kitchen Kitchen Shower Room Landing Bedroom One Bedroom One Bedroom One Bedroom One Bedroom Two Bedroom Two Bedroom Two Bedroom Two Bath_04.jpg Bath_02.jpg Bathroom Bath_03.jpg Bedroom Three Bed3_02.jpg Bed3_03.jpg _57A5257.jpg _57A5258.jpg _57A5260.jpg Rear _57A5261.jpg _57A5251.jpg

Nearby Streets

NameAverage PriceAverage SqftDistance
Gas House Lane £ 000.00 KM
South View £ 000.00 KM
Mayfield Road £ 212,00000.00 KM
Scholars Rise £ 149,00000.00 KM
Butts Lane £ 000.00 KM

Nearby Transport

NameNLCTLCDistance
Bentham2676BEN0.29 KM
Wennington2681WNN8.33 KM

Nearby Listings

AddressPriceTypeScoreDistance
Marriott Cottage, Bentham £ 241,500BUYUnknown0.00 KM
Honey Pot Cottage, Police Yard, High Bentham, LA2 £ 179,950BUY8 / 100.07 KM
Honeypot Cottage, 3 Police Yard, Bentham £ 189,950BUY6 / 100.08 KM
53 Main Street, Bentham £ 165,000BUY5 / 100.09 KM
Main Street, Bentham £ 150,000BUY6 / 100.10 KM

Nearby Properties

AddressPriceDistance
4a Police Yard £ 183,7500.06 KM
6 Police Yard £ 175,0000.06 KM
3 Police Yard £ 173,5000.06 KM
57 Main Street £ 155,0000.07 KM
55 Main Street £ 135,0000.09 KM