Bradleys says ..
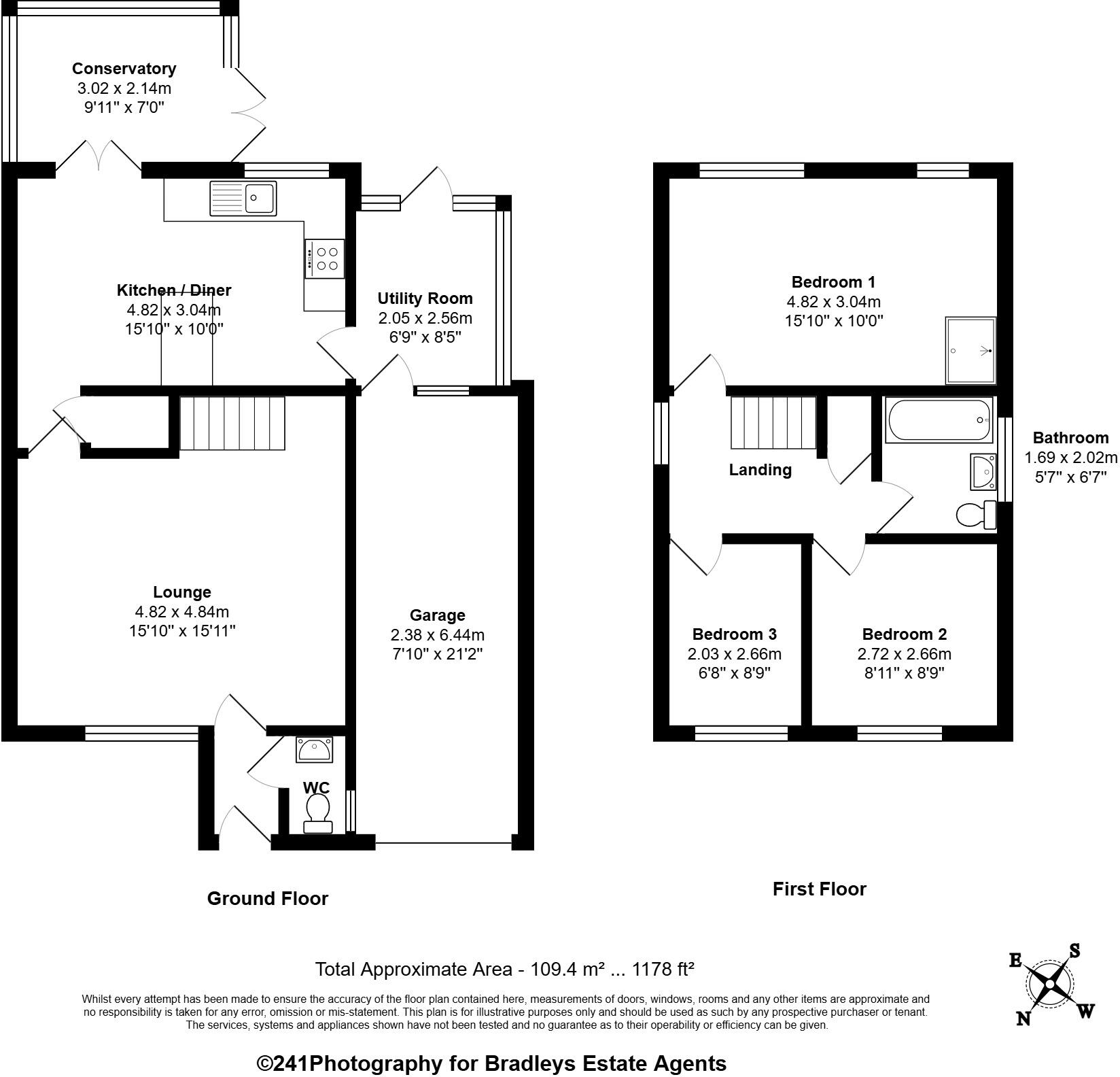
DETACHED THREE BEDROOM FAMILY HOME Charming 3-bedroom detached house in a sought-after location. This property boasts a spacious garden, ideal for outdoor entertaining. Off-street parking with 2 driveways and a garage provide convenience. The ground floor includes a WC for added comfort...
Property Oracle says ..
Therefore, we give this property 6 / 10. *Disclaimer: This is our option and does constitute a recommendation or financial advice. Do your own research. *
- Price
- 7
- Condition
- 6
- Location
- 7
- Land
- 7
- Bedrooms
- 3
- Bathrooms
- 1
The heatmap indicates the level of crime in the area. The color of the heatmap indicates the crime severity and recency.
Metrics Year-on-Year
- Average area value
- 311,919.00 £Decreased by 6.41 %
- Average area rental value
- 1,169.00 £/moIncreased by 9.05 %
- Est rental Yield
- 4.50 %Increased by 16.58 %
- Crime Rate
- 10.00 %Unchanged by 0.00 %
from 333,288.00 £
from 1,072.00 £/mo
from 3.86 %
from 10.00 %
Agent Activity
Bradleys created the listing.
Nearby Schools
| Name | Type | Ofsted | Distance |
|---|---|---|---|
| Goosewell Primary Academy | Academy Sponsor Led | Good | 0.83 KM |
| Coombe Dean School | Academy Converter | Requires improvement | 0.84 KM |
| Plymstock School | Academy Converter | Good | 1.72 KM |
| Plymstock Children'S Centre | Children's Centre | 1.78 KM | |
| Elburton Primary School | Academy Converter | Outstanding | 2.18 KM |
Images
Nearby Streets
| Name | Average Price | Average Sqft | Distance |
|---|---|---|---|
| Woodlands | £ 0 | 0 | 0.00 KM |
| Paddock Close | £ 0 | 0 | 0.00 KM |
| Church Road | £ 327,500 | 0 | 0.00 KM |
| Springfield Lane | £ 0 | 0 | 0.00 KM |
Nearby Transport
| Name | NLC | TLC | Distance |
|---|---|---|---|
| Plymouth | 3580 | PLY | 7.59 KM |
Nearby Listings
| Address | Price | Type | Score | Distance |
|---|---|---|---|---|
| Hosford Close, Plymouth, Devon | £ 310,000 | BUY | 6 / 10 | 0.00 KM |
| Hosford Close, Plymouth, Devon, PL9 | £ 127,250 | BUY | 6 / 10 | 0.00 KM |
| Hosford Close, Plymouth, Devon, PL9 | £ 207,750 | BUY | 7 / 10 | 0.00 KM |
| Hosford Close, Plymouth, Devon, PL9 | £ 250,000 | BUY | 6 / 10 | 0.00 KM |
| Hosford Close, Staddiscombe, Plymouth. | £ 335,000 | BUY | 7 / 10 | 0.00 KM |
Nearby Properties
| Address | Price | Distance |
|---|---|---|
| 11 Hosford Close | £ 145,000 | 0.00 KM |
| 12 Hosford Close | £ 152,000 | 0.00 KM |
| 17 Hosford Close | £ 139,000 | 0.00 KM |
| 22 Hosford Close | £ 270,000 | 0.00 KM |
| 3 Hosford Close | £ 138,000 | 0.00 KM |