St Gregory's Crescent, Gravesend
By Heritage Estates
£ 350,000
Reviews
3 out of 5 stars
Heritage Estates says ..
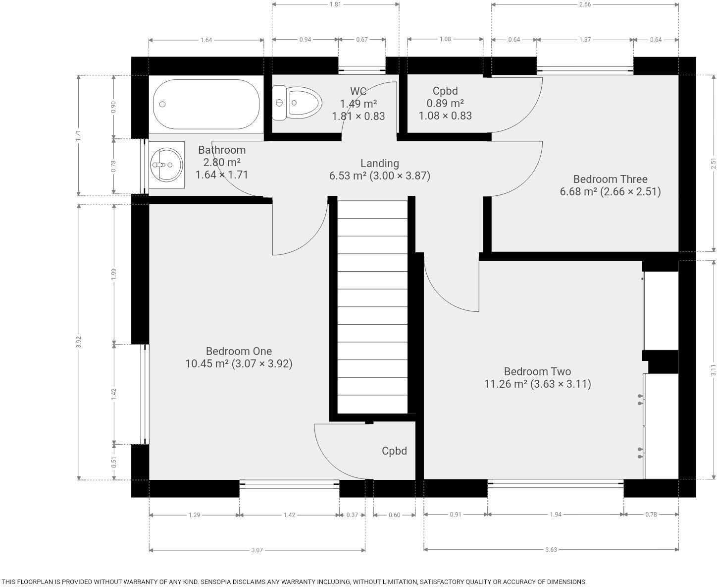
3-BED, SEMI-DETACHED FAMILY HOME FOR SALE SITUATED IN THE POPULAR VALLEY DRIVE AREA OF GRAVESEND REQUIRES SOME UPDATING NO FORWARD CHAIN Guide price: £350,000 to £360,000. Heritage Estates are delighted to offer for sale this semi-detached property with no forward (cont.)
Property Oracle says ..
This semi-detached property is located in St Gregory’s Crescent, Gravesend, Kent. It benefits from being close to several primary and secondary schools, as well as having good transport links to Gravesend and other towns. The property itself is a three-bedroom, one-bathroom house with a garden. The interior appears dated and would likely benefit from some modernisation. The property is listed at £350,000, which is slightly below the average price for the area, but the average house size in the area is significantly larger than this property. Given its condition and size, the price may be reasonable for a buyer looking for a project.
Therefore, we give this property 6 / 10. *Disclaimer: This is our option and does constitute a recommendation or financial advice. Do your own research. *
- Price
- 6
- Condition
- 5
- Location
- 8
- Land
- 7
- Bedrooms
- 3
- Bathrooms
- 1
- Sqft (est)
- 438.84
The heatmap indicates the level of crime in the area. The color of the heatmap indicates the crime severity and recency.
Metrics Year-on-Year
- Average area value
- 362,625.00 £Increased by 7.63 %
- Est sale value
- 205,815.96 £Decreased by 18.58 %
- Average area rental value
- 1,733.00 £/moIncreased by 5.03 %
- Est letting value
- 877.68 £/moUnchanged by 0.00 %
- Est rental Yield
- 5.73 %Decreased by 2.55 %
- Crime Rate
- 13.00 %Unchanged by 0.00 %
Agent Activity
Heritage Estates created the listing.
Nearby Schools
| Name | Type | Ofsted | Distance |
|---|---|---|---|
| North West Kent Alternative Provision Service | Academy Alternative Provision Sponsor Led | 0.12 KM | |
| Westcourt Primary School | Academy Converter | Good | 0.20 KM |
| Link19 College | Special Post 16 Institution | 0.57 KM | |
| Tymberwood Academy | Academy Sponsor Led | Good | 0.64 KM |
| Riverside Children'S Centre (Gravesend) | Children's Centre | 0.73 KM |
Images
Nearby Streets
| Name | Average Price | Average Sqft | Distance |
|---|---|---|---|
| Silver Road | £ 0 | 0 | 0.00 KM |
| Farriers Close | £ 0 | 0 | 0.00 KM |
| St. Chad's Drive | £ 299,500 | 0 | 0.00 KM |
| West Court Lane | £ 500,000 | 0 | 0.00 KM |
| Saint Dunstan's Drive | £ 375,000 | 0 | 0.00 KM |
Nearby Transport
| Name | NLC | TLC | Distance |
|---|---|---|---|
| Gravesend | 5172 | GRV | 3.30 KM |
| Sole Street | 5126 | SOR | 5.34 KM |
| Tilbury Town | 7462 | TIL | 5.76 KM |
| Meopham | 5116 | MEP | 6.20 KM |
| East Tilbury | 7471 | ETL | 6.61 KM |
Nearby Listings
| Address | Price | Type | Score | Distance |
|---|---|---|---|---|
| St Gregory's Crescent, Gravesend | £ 350,000 | BUY | 6 / 10 | 0.00 KM |
| St. Gregory's Crescent, Gravesend, Kent, DA12 | £ 325,000 | BUY | 6 / 10 | 0.03 KM |
| St. Gregorys Crescent, Gravesend, Kent, DA12 | £ 350,000 | BUY | 7 / 10 | 0.09 KM |
| Richmond Drive, Gravesend, Kent | £ 350,000 | BUY | 7 / 10 | 0.09 KM |
| St Gregory's Crescent, Gravesend | £ 340,000 | BUY | 6 / 10 | 0.10 KM |
Nearby Properties
| Address | Price | Distance |
|---|---|---|
| 36 St Gregorys Crescent | £ 290,000 | 0.03 KM |
| 12 St Gregorys Crescent | £ 182,000 | 0.03 KM |
| 22 St Gregorys Crescent | £ 265,000 | 0.03 KM |
| 54 St Gregorys Crescent | £ 360,000 | 0.03 KM |
| 24 St Gregorys Crescent | £ 159,000 | 0.03 KM |