Duckpool Road, Newport, NP19
By LIBERTAS LETTINGS
£ 150,000
Reviews
2 out of 5 stars
LIBERTAS LETTINGS says ..
Ideal for buy-to-let investors seeking a renovation project with excellent transport links, this spacious home offers strong long-term potential.
Property Oracle says ..
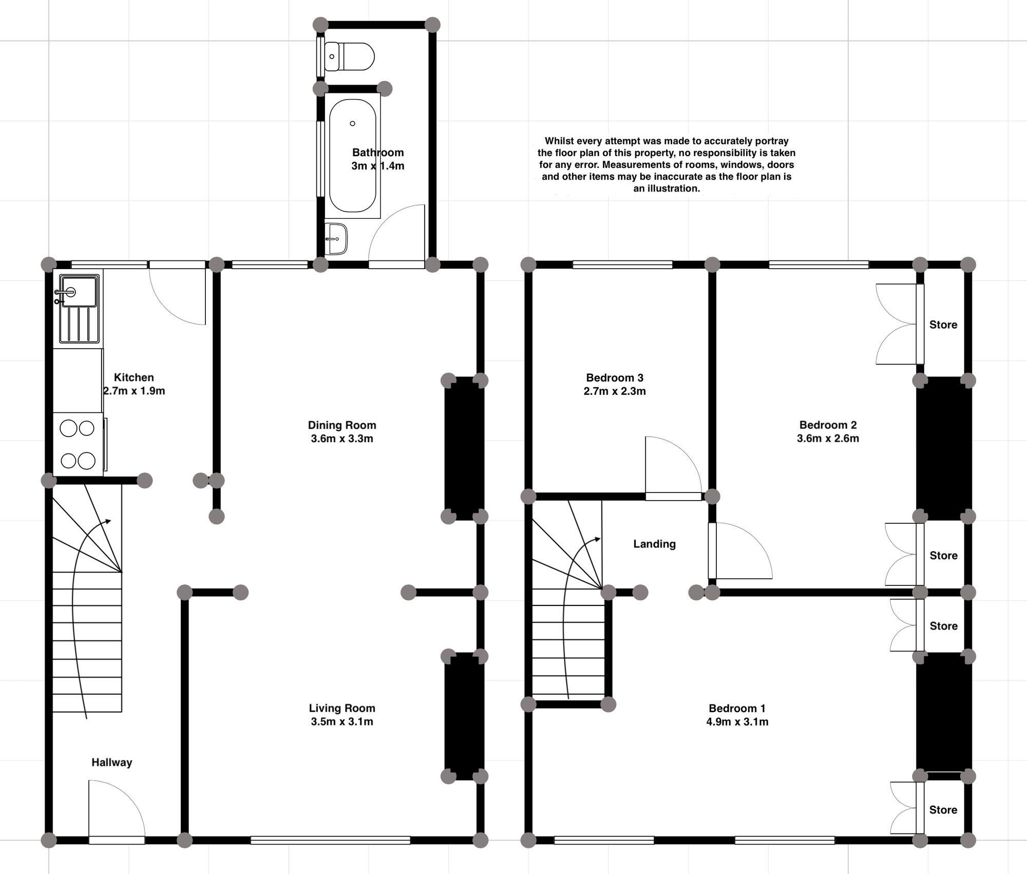
The property is a three-bedroom terraced house located on Duckpool Road in Newport. The property is in need of renovation, with visible damp and damage to the walls. The bathroom and kitchen are dated and in need of modernisation. The property has a garden, which is a decent size for a terraced property. The property is located close to local schools and transportation links. The property is listed for £150,000, which seems reasonable considering the condition of the property and the local market.
Therefore, we give this property 5 / 10. *Disclaimer: This is our option and does constitute a recommendation or financial advice. Do your own research. *
- Price
- 7
- Condition
- 3
- Location
- 6
- Land
- 6
- Bedrooms
- 3
- Bathrooms
- 1
- Sqft (est)
- 676.19
The heatmap indicates the level of crime in the area. The color of the heatmap indicates the crime severity and recency.
Metrics Year-on-Year
- Average area value
- 360,833.00 £Decreased by 13.57 %
- Est sale value
- 237,342.69 £Decreased by 9.07 %
- Average area rental value
- 1,178.00 £/moIncreased by 8.17 %
- Est letting value
- 676.19 £/moUnchanged by 0.00 %
- Est rental Yield
- 3.92 %Increased by 25.24 %
- Crime Rate
- 4.00 %Unchanged by 0.00 %
Agent Activity
LIBERTAS LETTINGS created the listing.
Nearby Schools
| Name | Type | Ofsted | Distance |
|---|---|---|---|
| Newport Nursery School | Welsh Establishment | 0.30 KM | |
| St Joseph'S R.C. Primary School | Welsh Establishment | 0.47 KM | |
| St Julian'S School | Welsh Establishment | 0.90 KM | |
| Maindee C.P. School | Welsh Establishment | 1.09 KM | |
| Eveswell Primary School | Welsh Establishment | 1.16 KM |
Images
Nearby Streets
| Name | Average Price | Average Sqft | Distance |
|---|---|---|---|
| Leicester Road | £ 277,500 | 0 | 0.00 KM |
| York Road | £ 0 | 0 | 0.00 KM |
| Lord Street | £ 0 | 0 | 0.00 KM |
| Bath Street | £ 0 | 0 | 0.00 KM |
| St. Julian's Court | £ 0 | 0 | 0.00 KM |
Nearby Transport
| Name | NLC | TLC | Distance |
|---|---|---|---|
| Newport (South Wales) | 3674 | NWP | 2.13 KM |
| Pye Corner | 1663 | PYE | 6.34 KM |
| Cwmbran | 3738 | CWM | 7.80 KM |
| Rogerstone | 9921 | ROR | 9.32 KM |
Nearby Listings
| Address | Price | Type | Score | Distance |
|---|---|---|---|---|
| Duckpool Road, Newport, NP19 | £ 150,000 | BUY | 5 / 10 | 0.00 KM |
| Annesley Road, Newport | £ 190,000 | BUY | 7 / 10 | 0.07 KM |
| Dean Street, Newport, NP19 | £ 165,000 | BUY | 6 / 10 | 0.10 KM |
| Annesley Road, Newport, NP19 | £ 170,000 | BUY | 7 / 10 | 0.10 KM |
| Annesley Road, Newport, NP19 | £ 200,000 | BUY | 5 / 10 | 0.10 KM |
Nearby Properties
| Address | Price | Distance |
|---|---|---|
| 74 Duckpool Road | £ 168,000 | 0.02 KM |
| 90 Duckpool Road | £ 154,000 | 0.02 KM |
| 82 Duckpool Road | £ 130,000 | 0.02 KM |
| 75 Duckpool Road | £ 172,000 | 0.02 KM |
| 79 Duckpool Road | £ 61,000 | 0.02 KM |