Coytrahen, Bridgend, Bridgend County. CF32 0ED
By MRE - Peter Morgan Real Estate, Powered by eXp
£ 350,000
Reviews
3 out of 5 stars
MRE - Peter Morgan Real Estate, Powered by eXp says ..
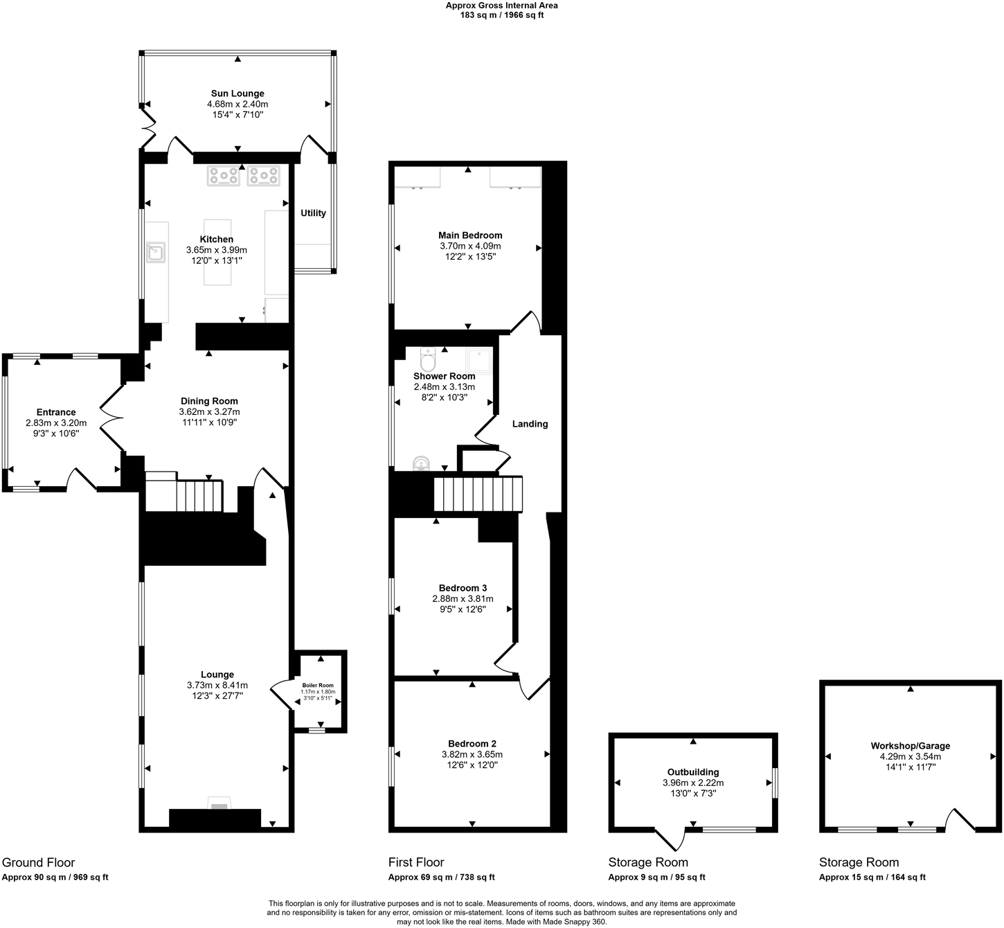
A charming, characterful & unique detached home set in just over 1/4 acre of grounds | An extended Cottage believed to originate circa 1800's | 3 double bedrooms & 3 reception rooms | Stone walls and wood beam features | Resembling a Welsh long house in its design | Situated on a linea...
Property Oracle says ..
Therefore, we give this property 6 / 10. *Disclaimer: This is our option and does constitute a recommendation or financial advice. Do your own research. *
- Price
- 6
- Condition
- 7
- Location
- 6
- Land
- 8
- Bedrooms
- 3
- Bathrooms
- 1
The heatmap indicates the level of crime in the area. The color of the heatmap indicates the crime severity and recency.
Metrics Year-on-Year
- Average area value
- 245,000.00 £Decreased by 2.53 %
- Average area rental value
- 608.00 £/moDecreased by 26.30 %
- Est rental Yield
- 2.98 %Decreased by 24.37 %
- Crime Rate
- 0.00 %
Agent Activity
MRE - Peter Morgan Real Estate, Powered by eXp created the listing.
Nearby Schools
| Name | Type | Ofsted | Distance |
|---|---|---|---|
| Ysgol Gynradd Gymraeg Calon Y Cymoedd | Welsh Establishment | 1.39 KM | |
| Betws Primary School | Welsh Establishment | 1.44 KM | |
| Brynmenyn Primary School | Welsh Establishment | 2.36 KM | |
| Tondu Primary School | Welsh Establishment | 2.44 KM | |
| Portfolio Pru | Welsh Establishment | 2.55 KM |
Images
Nearby Streets
| Name | Average Price | Average Sqft | Distance |
|---|---|---|---|
| Greenfield Terrace | £ 0 | 0 | 0.00 KM |
| Glyn Teg | £ 0 | 0 | 0.00 KM |
| Bryn Bach Cottages | £ 0 | 0 | 0.00 KM |
| The Croft | £ 175,000 | 0 | 0.00 KM |
| Waungron | £ 0 | 0 | 0.00 KM |
Nearby Transport
| Name | NLC | TLC | Distance |
|---|---|---|---|
| Tondu | 4271 | TDU | 1.76 KM |
| Sarn | 4270 | SRR | 2.88 KM |
| Wildmill | 3965 | WMI | 5.16 KM |
| Garth (Bridgend County) | 3961 | GMG | 5.92 KM |
| Bridgend | 3809 | BGN | 6.76 KM |
Nearby Listings
| Address | Price | Type | Score | Distance |
|---|---|---|---|---|
| Coytrahen, Bridgend, Bridgend County. CF32 0ED | £ 350,000 | BUY | 6 / 10 | 0.00 KM |
| Coytrahen, Bridgend, Bridgend County. CF32 0ED | £ 350,000 | BUY | 6 / 10 | 0.00 KM |
| Coytrahen, Bridgend, Bridgend County. CF32 0ED | £ 350,000 | BUY | Unknown | 0.00 KM |
| The Old Chapel Coytrahen, Bridgend, Bridgend County. CF32 0EB | £ 425,000 | BUY | 7 / 10 | 0.33 KM |
| The Old Chapel, Coytrahen, Bridgend County Borough, CF31 0EB | £ 399,950 | BUY | 6 / 10 | 0.33 KM |
Nearby Properties
| Address | Price | Distance |
|---|---|---|
| 2 Graig Avon | £ 200,000 | 0.34 KM |
| 2 Nicholls Road | £ 229,950 | 0.35 KM |
| St. Cynwyds | £ 190,000 | 0.35 KM |
| 7 Oak Terrace | £ 145,000 | 0.47 KM |
| 6 Oak Terrace | £ 158,000 | 0.47 KM |