MA
Triangle Road, Haywards Heath, RH16
By Mansell McTaggart
£ 375,000
Reviews
3 out of 5 stars
Mansell McTaggart says ..
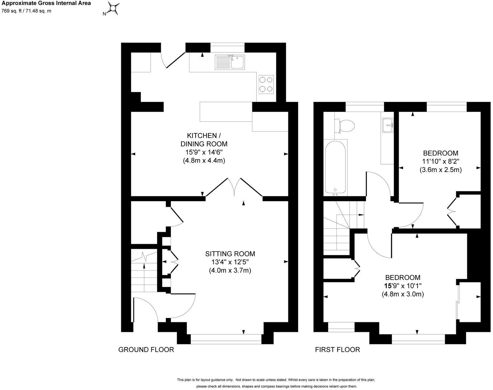
PLEASE WATCH THE VIDEO BEFORE BOOKING AN APPOINTMENT An extended 2 double bedroom Victorian terraced cottage of great character with a 75' x 16' south facing garden tucked away in this established part of town just to the south of the main town centre within a short walk of all the shops, hospita...
Property Oracle says ..
Therefore, we give this property 7 / 10. *Disclaimer: This is our option and does constitute a recommendation or financial advice. Do your own research. *
- Price
- 8
- Condition
- 7
- Location
- 8
- Land
- 7
- Bedrooms
- 2
- Bathrooms
- 1
- Sqft (est)
- 769.00
The heatmap indicates the level of crime in the area. The color of the heatmap indicates the crime severity and recency.
Metrics Year-on-Year
- Average area value
- 890,625.00 £Increased by 35.96 %
- Est sale value
- 438,330.00 £Increased by 58.77 %
- Average area rental value
- 1,412.00 £/moDecreased by 13.11 %
- Est letting value
- 0.00 £/mo
- Est rental Yield
- 1.90 %Decreased by 36.24 %
- Crime Rate
- 11.00 %Unchanged by 0.00 %
from 655,041.00 £
from 276,071.00 £
from 1,625.00 £/mo
from 0.00 £/mo
from 2.98 %
from 11.00 %
Agent Activity
Mansell McTaggart created the listing.
Nearby Schools
| Name | Type | Ofsted | Distance |
|---|---|---|---|
| St Joseph'S Catholic Primary School | Academy Converter | 0.43 KM | |
| Warden Park Primary Academy | Academy Sponsor Led | Good | 0.64 KM |
| Chalkhill Education Centre, Chalkhill Hospital | Pupil Referral Unit | Outstanding | 0.68 KM |
| St Wilfrid'S Cofe Primary School, Haywards Heath | Voluntary Aided School | Good | 0.73 KM |
| Central Education Ltd | Other Independent Special School | Requires improvement | 1.42 KM |
Images
Nearby Streets
| Name | Average Price | Average Sqft | Distance |
|---|---|---|---|
| Nightingale Close | £ 750,000 | 0 | 0.00 KM |
| Anscombe Wood Cresent | £ 800,000 | 0 | 0.00 KM |
| Oakdale Road | £ 465,000 | 0 | 0.00 KM |
| Foxes Mews | £ 0 | 0 | 0.00 KM |
| Church Road | £ 0 | 0 | 0.00 KM |
Nearby Transport
| Name | NLC | TLC | Distance |
|---|---|---|---|
| Haywards Heath | 5490 | HHE | 1.46 KM |
| Wivelsfield | 5341 | WVF | 4.10 KM |
| Burgess Hill | 5483 | BUG | 5.49 KM |
| Balcombe | 5492 | BAB | 8.03 KM |
| Plumpton | 5332 | PMP | 8.45 KM |
Nearby Listings
| Address | Price | Type | Score | Distance |
|---|---|---|---|---|
| Triangle Road, Haywards Heath, RH16 | £ 375,000 | BUY | 7 / 10 | 0.00 KM |
| Triangle Road, Haywards Heath, RH16 | £ 365,000 | BUY | 7 / 10 | 0.00 KM |
| Triangle Road, Haywards Heath, West Sussex | £ 270,000 | BUY | 6 / 10 | 0.04 KM |
| Triangle Road, Haywards Heath, RH16 | £ 375,000 | BUY | 8 / 10 | 0.04 KM |
| Triangle Road, Haywards Heath, RH16 | £ 255,000 | BUY | 6 / 10 | 0.05 KM |
Nearby Properties
| Address | Price | Distance |
|---|---|---|
| 28 Triangle Road | £ 170,000 | 0.01 KM |
| 20 Triangle Road | £ 319,200 | 0.01 KM |
| 34 Triangle Road | £ 156,000 | 0.01 KM |
| 16 Triangle Road | £ 54,000 | 0.01 KM |
| 22 Triangle Road | £ 220,000 | 0.01 KM |