Watford, Hertfordshire, WD18
RO

Watford, Hertfordshire, WD18

By Rolstons

£ 350,000

Reviews

2 out of 5 stars

Rolstons says ..

Nestled in the heart of Watford, this charming Victorian terraced house offers a fantastic opportunity to create a home tailored to your taste. With three bedrooms, it is perfect for families, professionals, or investors looking for a well-connected and sought-after location.

Property Oracle says ..

This three-bedroom terraced house in Watford, Hertfordshire, presents a mixed bag. Its location is a strong point, with good schools and transport links nearby. The proximity to Watford High Street and Watford Junction station offers excellent connectivity. However, the property’s condition requires attention. The interior photos show a need for modernisation and updating, particularly in the kitchen and bathroom. The garden, while present, is small and could benefit from landscaping. The listing price of £350,000 is competitive within the area, although the lack of detailed information on comparable properties makes a definitive statement on value challenging. Potential buyers should factor in renovation costs when considering this property. Overall, it’s a property that offers potential but requires investment to reach its full potential. The lack of precise plot size and square footage data for comparable properties limits the depth of the analysis.

Therefore, we give this property 5 / 10. *Disclaimer: This is our option and does constitute a recommendation or financial advice. Do your own research. *

Price
7
Condition
5
Location
7
Land
2
Bedrooms
3
Bathrooms
1
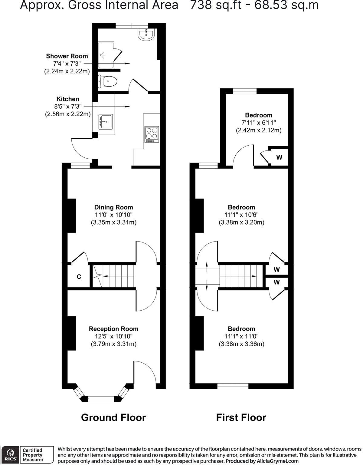
Sqft (est)
737.65

The heatmap indicates the level of crime in the area. The color of the heatmap indicates the crime severity and recency.

Metrics Year-on-Year

Average area value
390,000.00 £
Decreased by 0.63 %
from 392,462.00 £
Est sale value
517,092.65 £
Increased by 46.96 %
from 351,859.05 £
Average area rental value
1,375.00 £/mo
Decreased by 20.66 %
from 1,733.00 £/mo
Est letting value
1,475.30 £/mo
Unchanged by 0.00 %
from 1,475.30 £/mo
Est rental Yield
4.23 %
Decreased by 20.19 %
from 5.30 %
Crime Rate
26.00 %
Unchanged by 0.00 %
from 26.00 %

Agent Activity

  • Rolstons created the listing.

Nearby Schools

NameTypeOfstedDistance
Laurance Haines SchoolAcademy ConverterGood0.34 KM
Chater Infant SchoolCommunity SchoolGood0.54 KM
Chater Junior SchoolCommunity SchoolOutstanding0.59 KM
W4 Littlebury Family CentreChildren's Centre0.67 KM
Chessbrook Education Support CentrePupil Referral UnitOutstanding0.99 KM

Images

Picture No. 07 Picture No. 01 Picture No. 06 Picture No. 11 Picture No. 09 Picture No. 02 Picture No. 03 Picture No. 04 Picture No. 05 Picture No. 10 Picture No. 08 Picture No. 28 Picture No. 14 Picture No. 15 Picture No. 16 Picture No. 17 Picture No. 18 Picture No. 19 Picture No. 20 Picture No. 21 Picture No. 22 Picture No. 23 Picture No. 24 Picture No. 25

Nearby Streets

NameAverage PriceAverage SqftDistance
Cardiff Road Industrial Estate £ 000.00 KM
Deckle Avenue £ 000.00 KM
Inkwell Avenue £ 000.00 KM
Court View £ 000.00 KM
Harwoods Road £ 000.00 KM

Nearby Transport

NameNLCTLCDistance
Watford High Street1455WFH1.64 KM
Watford Junction1402WFJ1.88 KM
Bushey1395BSH2.35 KM
Carpenders Park1442CPK3.26 KM
Watford North1403WFN3.41 KM

Nearby Listings

AddressPriceTypeScoreDistance
Watford, Hertfordshire, WD18 £ 350,000BUY5 / 100.00 KM
Holywell Road, Watford £ 350,000BUY6 / 100.01 KM
Holywell Road £ 230,000BUY5 / 100.01 KM
Holywell Road, Watford £ 400,000BUY8 / 100.04 KM
Vicarage Road, Watford £ 465,000BUY6 / 100.08 KM

Nearby Properties

AddressPriceDistance
67 Holywell Road £ 229,9500.01 KM
11 Holywell Road £ 325,0000.01 KM
49 Holywell Road £ 275,0000.01 KM
37 Holywell Road £ 500,0000.01 KM
77 Holywell Road £ 272,0000.01 KM