Ocean says ..
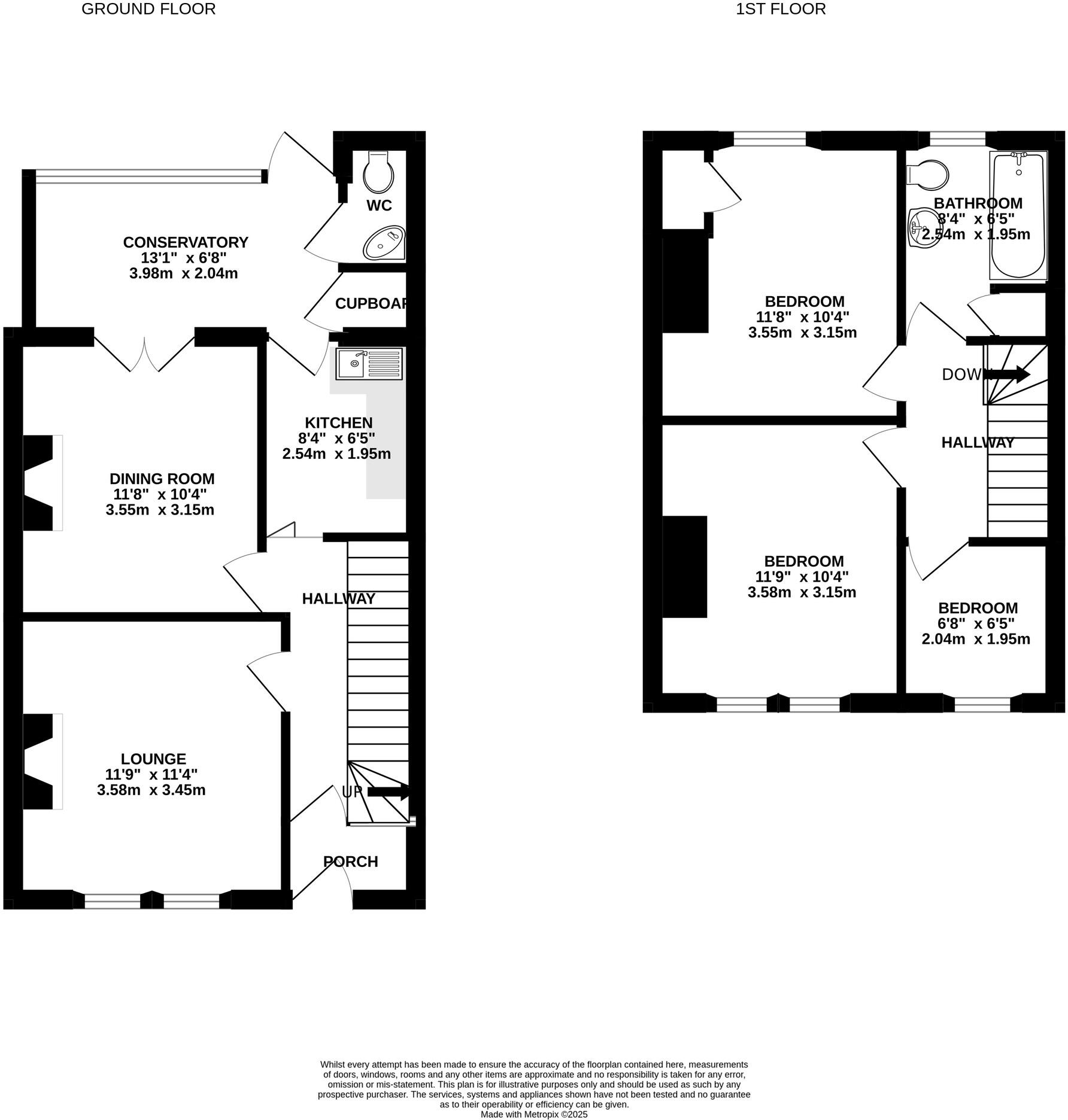
A 3 bedroom period home that has a feeling of character throughout. Offered to the market with no onward chain.
Property Oracle says ..
This is a three-bedroom terraced house located on Walton Road in Shirehampton, Bristol. The property is in a convenient location with access to transportation, schools, and local amenities. However, the property is in need of renovation, as the interior is dated and worn. The property has a garden with a shed, providing outdoor space. The list price of £285,000 is slightly below the average for the area, potentially reflecting the condition of the property.
Therefore, we give this property 6 / 10. *Disclaimer: This is our option and does constitute a recommendation or financial advice. Do your own research. *
- Price
- 7
- Condition
- 4
- Location
- 7
- Land
- 7
- Bedrooms
- 3
- Bathrooms
- 1
- Sqft (est)
- 731.80
The heatmap indicates the level of crime in the area. The color of the heatmap indicates the crime severity and recency.
Metrics Year-on-Year
- Average area value
- 314,285.00 £Decreased by 23.82 %
- Est sale value
- 251,739.20 £Increased by 13.53 %
- Average area rental value
- 1,470.00 £/moIncreased by 11.20 %
- Est letting value
- 731.80 £/mo
- Est rental Yield
- 5.61 %Increased by 45.71 %
- Crime Rate
- 15.00 %Unchanged by 0.00 %
Agent Activity
Ocean created the listing.
Nearby Schools
| Name | Type | Ofsted | Distance |
|---|---|---|---|
| Shirehampton Primary School | Community School | Good | 0.38 KM |
| Oasis Academy Brightstowe | Academy Sponsor Led | Good | 0.71 KM |
| Nova Primary School | Community School | Good | 0.96 KM |
| Avonmouth Children'S Centre | Children's Centre | 1.50 KM | |
| Avonmouth Church Of England Primary School | Voluntary Controlled School | Good | 1.52 KM |
Images
Nearby Streets
| Name | Average Price | Average Sqft | Distance |
|---|---|---|---|
| Woodview Close | £ 0 | 0 | 0.00 KM |
| Saint Tecla Close | £ 196,975 | 0 | 0.00 KM |
| Stroud Road | £ 0 | 0 | 0.00 KM |
| Watchhouse Road | £ 325,000 | 0 | 0.00 KM |
| Star Lane | £ 0 | 0 | 0.00 KM |
Nearby Transport
| Name | NLC | TLC | Distance |
|---|---|---|---|
| Shirehampton | 3206 | SHH | 0.44 KM |
| Avonmouth | 3200 | AVN | 2.64 KM |
| Sea Mills | 3254 | SML | 3.33 KM |
| St Andrews Road | 3252 | SAR | 3.33 KM |
| Clifton Down | 3202 | CFN | 7.88 KM |
Nearby Listings
| Address | Price | Type | Score | Distance |
|---|---|---|---|---|
| Walton Road, Shirehampton, Bristol | £ 285,000 | BUY | 6 / 10 | 0.00 KM |
| Walton Road, Bristol, BS11 | £ 375,000 | BUY | 6 / 10 | 0.05 KM |
| Walton Road, BRISTOL, Avon, BS11 | £ 400,000 | BUY | 6 / 10 | 0.05 KM |
| Church Leaze, Shirehampton, Bristol | £ 450,000 | BUY | 6 / 10 | 0.06 KM |
| Severn Road, Pill | £ 200,000 | BUY | 4 / 10 | 0.06 KM |
Nearby Properties
| Address | Price | Distance |
|---|---|---|
| 9 Severn Road | £ 400,000 | 0.05 KM |
| 3 Severn Road | £ 307,500 | 0.05 KM |
| 11 Severn Road | £ 170,000 | 0.05 KM |
| 4 Severn Road | £ 250,000 | 0.05 KM |
| 8 Severn Road | £ 155,000 | 0.05 KM |