Old Road, Clacton-on-Sea
By Mike Vincent & Son
£ 240,000
Reviews
3 out of 5 stars
Mike Vincent & Son says ..
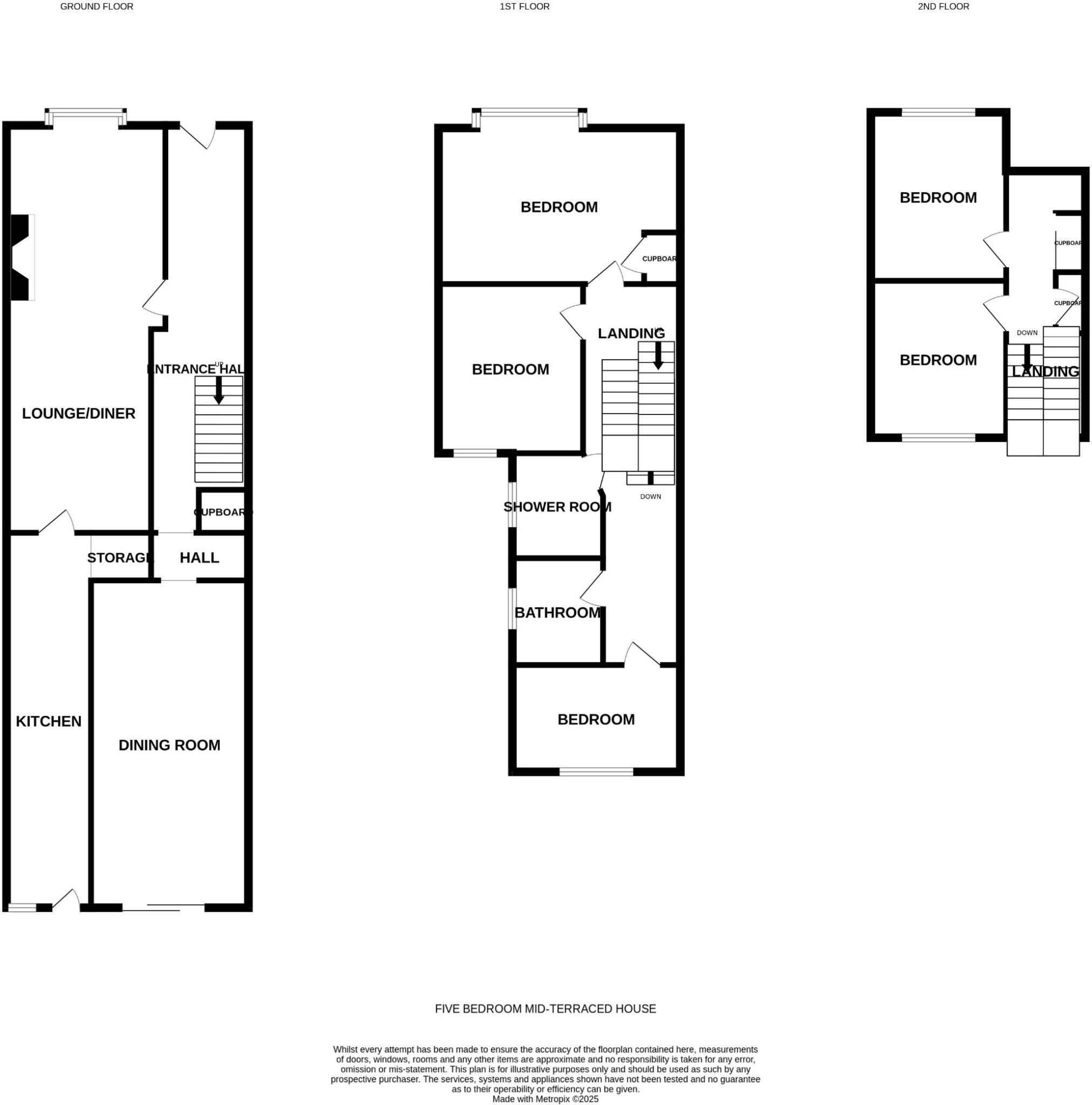
We are pleased to offer this three storey five bedroom mid-terraced house located in Clacton-on-Sea close to local amenities, town centre and train station. The property offers good sized accommodation throughout benefitting from gas central heating and being neutrally decorated.
Property Oracle says ..
This is a five-bedroom terraced property located on Old Road, Clacton-on-Sea. The property offers ample living space at 1,170 sqft and includes two bathrooms. While the property benefits from its proximity to local amenities, including schools and transportation, it does require some modernisation. The garden, though present, needs attention. Given the listing price of £240,000, which is below the average for the area, this property presents a good opportunity for buyers willing to invest in renovations.
Therefore, we give this property 6 / 10. *Disclaimer: This is our option and does constitute a recommendation or financial advice. Do your own research. *
- Price
- 8
- Condition
- 5
- Location
- 6
- Land
- 6
- Bedrooms
- 5
- Bathrooms
- 2
- Sqft (est)
- 1,170.00
The heatmap indicates the level of crime in the area. The color of the heatmap indicates the crime severity and recency.
Metrics Year-on-Year
- Average area value
- 350,323.00 £Decreased by 1.18 %
- Est sale value
- 504,270.00 £Increased by 20.73 %
- Average area rental value
- 1,334.00 £/moDecreased by 2.49 %
- Est letting value
- 1,170.00 £/moUnchanged by 0.00 %
- Est rental Yield
- 4.57 %Decreased by 1.30 %
- Crime Rate
- 11.00 %Unchanged by 0.00 %
Agent Activity
Mike Vincent & Son created the listing.
Nearby Schools
| Name | Type | Ofsted | Distance |
|---|---|---|---|
| Alton Park Junior School | Academy Converter | 0.71 KM | |
| Ten2 St. James' Family Hub Delivery Site | Children's Centre Linked Site | 0.88 KM | |
| Oakwood Infant And Nursery School | Community School | Good | 0.89 KM |
| White Hall Academy | Academy Sponsor Led | Good | 1.00 KM |
| Clacton Coastal Academy | Academy Sponsor Led | Requires improvement | 1.03 KM |
Images
Nearby Streets
| Name | Average Price | Average Sqft | Distance |
|---|---|---|---|
| Rosemary Road | £ 0 | 0 | 0.00 KM |
| Estuary Crescent | £ 0 | 0 | 0.00 KM |
| Link Road | £ 0 | 0 | 0.00 KM |
| Olivers Road | £ 0 | 0 | 0.00 KM |
| Saint Anns Road | £ 0 | 0 | 0.00 KM |
Nearby Transport
| Name | NLC | TLC | Distance |
|---|---|---|---|
| Clacton-On-Sea | 6850 | CLT | 0.75 KM |
| Thorpe-Le-Soken | 6857 | TLS | 6.37 KM |
| Weeley | 6859 | WEE | 7.66 KM |
| Kirby Cross | 6862 | KBX | 9.26 KM |
Nearby Listings
| Address | Price | Type | Score | Distance |
|---|---|---|---|---|
| Old Road, Clacton-on-Sea | £ 240,000 | BUY | 6 / 10 | 0.00 KM |
| 24, Castle Road, Clacton-On-Sea, Essex CO15 1JG | £ 95,000 | BUY | 5 / 10 | 0.02 KM |
| Anchor Road, Clacton-On-Sea | £ 180,000 | BUY | 5 / 10 | 0.04 KM |
| Old Road, Colchester, CO15 | £ 400,000 | BUY | 6 / 10 | 0.05 KM |
| Old Road, Clacton-On-Sea | £ 350,000 | BUY | 6 / 10 | 0.05 KM |
Nearby Properties
| Address | Price | Distance |
|---|---|---|
| 61 Old Road | £ 130,000 | 0.04 KM |
| 66 Old Road | £ 136,000 | 0.04 KM |
| 57 Old Road | £ 107,000 | 0.04 KM |
| 57a Old Road | £ 175,000 | 0.04 KM |
| 75 Old Road | £ 318,000 | 0.04 KM |