Weydon Lane, Farnham, Surrey, GU9
By Bridges Estate Agents
£ 260,000
Reviews
3 out of 5 stars
Bridges Estate Agents says ..
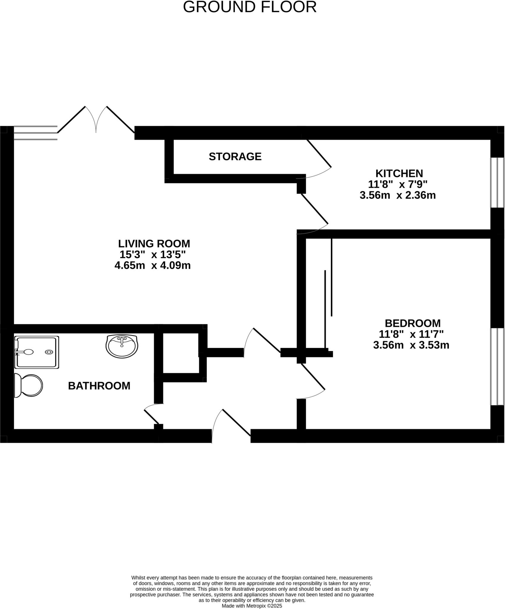
Conveniently situated within a mile of Farnham train station and walking distance of both the town centre and local schools, is this immaculately presented ground floor one bedroom apartment. Boasting its own enclosed courtyard garden, the property makes for an excellent first time purchase, buy ...
Property Oracle says ..
This one-bedroom ground floor apartment in Farnham, Surrey, offers a convenient location close to Farnham train station, the town centre, and local schools such as Highfield South Farnham School (0.14km away and rated as outstanding). The property boasts a recently modernised kitchen and bathroom, shown in the clear and bright photos. The apartment seems to be in good condition and ready to move into. It also features a private enclosed courtyard garden offering some outdoor space which is a beneficial feature for this type of property. While the plot size is listed as 0.00 sqft, images indicate a small, but well-maintained, paved patio area. The asking price of £260,000 seems competitive when compared to other similarly sized and located properties listed. A full structural survey would be recommended before purchasing to fully assess the condition of the property.
Therefore, we give this property 6 / 10. *Disclaimer: This is our option and does constitute a recommendation or financial advice. Do your own research. *
- Price
- 7
- Condition
- 8
- Location
- 7
- Land
- 3
- Bedrooms
- 1
- Bathrooms
- 0
- Sqft (est)
- 695.67
The heatmap indicates the level of crime in the area. The color of the heatmap indicates the crime severity and recency.
Metrics Year-on-Year
- Average area value
- 272,143.00 £Decreased by 0.84 %
- Est sale value
- 170,439.15 £Increased by 2.08 %
- Average area rental value
- 950.00 £/moDecreased by 12.68 %
- Est letting value
- 0.00 £/mo
- Est rental Yield
- 4.19 %Decreased by 11.97 %
- Crime Rate
- 11.00 %Unchanged by 0.00 %
Agent Activity
Bridges Estate Agents created the listing.
Nearby Schools
| Name | Type | Ofsted | Distance |
|---|---|---|---|
| Highfield South Farnham School | Academy Sponsor Led | Outstanding | 0.14 KM |
| Potters Gate Sure Start Children'S Centre | Children's Centre | 0.83 KM | |
| Potters Gate Cofe Primary School | Academy Converter | 0.83 KM | |
| St Andrew'S Church Of England Infant School | Academy Converter | Good | 0.88 KM |
| University For The Creative Arts | Higher Education Institutions | Good | 1.12 KM |
Images
Nearby Streets
| Name | Average Price | Average Sqft | Distance |
|---|---|---|---|
| Belmont House | £ 0 | 0 | 0.00 KM |
| Garth Close | £ 925,000 | 0 | 0.00 KM |
| Green Lane | £ 895,000 | 0 | 0.00 KM |
| Greenfield Road | £ 0 | 0 | 0.00 KM |
| Middlefield Close | £ 0 | 0 | 0.00 KM |
Nearby Transport
| Name | NLC | TLC | Distance |
|---|---|---|---|
| Farnham | 5545 | FNH | 1.45 KM |
| Aldershot | 5623 | AHT | 6.62 KM |
| Bentley (Hampshire) | 5624 | BTY | 7.59 KM |
| Fleet | 5522 | FLE | 9.79 KM |
Nearby Listings
| Address | Price | Type | Score | Distance |
|---|---|---|---|---|
| Weydon Lane, Farnham, Surrey, GU9 | £ 260,000 | BUY | 6 / 10 | 0.00 KM |
| Weydon Lane, Farnham | £ 250,000 | BUY | Unknown | 0.04 KM |
| Weydon Farm Lane, Farnham, Surrey, GU9 | £ 1,150,000 | BUY | Unknown | 0.24 KM |
| Talbot Road, Farnham, Surrey, GU9 | £ 425,000 | BUY | 7 / 10 | 0.25 KM |
| Ryle Road, Farnham, Surrey, GU9 | £ 600,000 | BUY | 7 / 10 | 0.29 KM |
Nearby Properties
| Address | Price | Distance |
|---|---|---|
| 18 Talbot Road | £ 177,000 | 0.09 KM |
| 2 Talbot Road | £ 239,000 | 0.09 KM |
| 15 Talbot Road | £ 390,000 | 0.09 KM |
| 24 Talbot Road | £ 110,000 | 0.09 KM |
| 8 Talbot Road | £ 245,000 | 0.09 KM |