MC
Dunleys Hill, North Warnborough, Hook, RG29
By McCarthy Holden
£ 180,000
Reviews
3 out of 5 stars
McCarthy Holden says ..
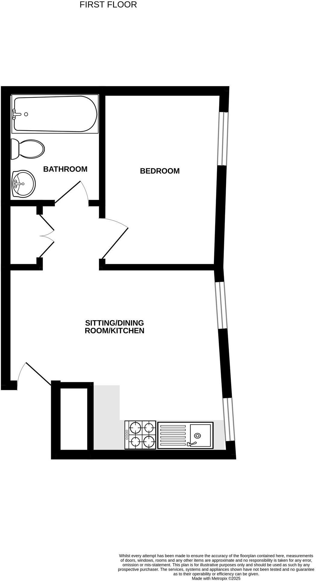
Situated within the sought after village of North Warnborough, this first floor one bedroom apartment is located within Priors Corner which is part of 16 unique apartments converted in 2021. Benefits to this property include allocated parking, share of freehold with a long lease, secure video ...
Property Oracle says ..
Therefore, we give this property 6 / 10. *Disclaimer: This is our option and does constitute a recommendation or financial advice. Do your own research. *
- Price
- 7
- Condition
- 9
- Location
- 8
- Land
- 1
- Bedrooms
- 1
- Bathrooms
- 1
- Sqft (est)
- 378.00
The heatmap indicates the level of crime in the area. The color of the heatmap indicates the crime severity and recency.
Metrics Year-on-Year
- Average area value
- 239,000.00 £Increased by 24.44 %
- Est sale value
- 101,682.00 £Increased by 15.95 %
- Average area rental value
- 850.00 £/moDecreased by 8.60 %
- Est letting value
- 0.00 £/moDecreased by 100.00 %
- Est rental Yield
- 4.27 %Decreased by 26.51 %
- Crime Rate
- 41.00 %Unchanged by 0.00 %
from 192,055.00 £
from 87,696.00 £
from 930.00 £/mo
from 378.00 £/mo
from 5.81 %
from 41.00 %
Agent Activity
McCarthy Holden created the listing.
Nearby Schools
| Name | Type | Ofsted | Distance |
|---|---|---|---|
| Robert May'S School | Academy Converter | Good | 0.61 KM |
| Wisteria Children'S Centre | Children's Centre Linked Site | 1.51 KM | |
| Mayhill Junior School | Community School | Good | 1.56 KM |
| Buryfields Infant School | Community School | Good | 1.79 KM |
| Hook Junior School | Community School | Outstanding | 2.83 KM |
Images
Nearby Streets
| Name | Average Price | Average Sqft | Distance |
|---|---|---|---|
| B3349 | £ 0 | 0 | 0.00 KM |
| Castle Rise | £ 405,000 | 0 | 0.00 KM |
| Crumplins Business Court | £ 575,000 | 0 | 0.00 KM |
| The Green | £ 0 | 0 | 0.00 KM |
| Recreation Road | £ 0 | 0 | 0.00 KM |
Nearby Transport
| Name | NLC | TLC | Distance |
|---|---|---|---|
| Hook | 5523 | HOK | 2.58 KM |
| Winchfield | 5528 | WNF | 5.82 KM |
Nearby Listings
| Address | Price | Type | Score | Distance |
|---|---|---|---|---|
| Dunleys Hill, North Warnborough, Hook, RG29 | £ 185,000 | BUY | 8 / 10 | 0.00 KM |
| Dunleys Hill, North Warnborough, Hook, RG29 | £ 180,000 | BUY | 6 / 10 | 0.00 KM |
| Dunleys Hill, North Warnborough, RG29 | £ 180,000 | BUY | 6 / 10 | 0.01 KM |
| Hook Road, North Warnborough, Hook, RG29 | £ 350,000 | BUY | 6 / 10 | 0.07 KM |
| Hook Road, North Warnborough, Hook, RG29 | £ 775,000 | BUY | 7 / 10 | 0.07 KM |
Nearby Properties
| Address | Price | Distance |
|---|---|---|
| Bridge View | £ 270,000 | 0.10 KM |
| 1 Bridge Road | £ 224,000 | 0.10 KM |
| 41 Queens Road | £ 360,000 | 0.12 KM |
| 35 Queens Road | £ 218,000 | 0.12 KM |
| 3 Queens Road | £ 350,000 | 0.12 KM |