Cleveleys Avenue, Leicester
BA

Cleveleys Avenue, Leicester

By Barkers

£ 350,000

Reviews

3 out of 5 stars

Barkers says ..

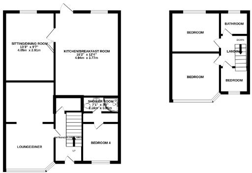
A RECENTLY REFURBISHED THREE/ FOUR BEDROOM semi detached property located in a popular location off Narborough Road South, situated within easy access of all local facilities and within a short drive of Fosse Park Retail Park and the M1/M69 road network. The house offers FANTASTIC ENTERT...

Property Oracle says ..

The property is a 4-bedroom, 2-bathroom semi-detached house located on Cleveleys Avenue in Leicester, Leicestershire. It has a total area of 2,312.09 sqft and is listed at £350,000. The average house price in the area is £483,067, with an average price per sqft of £402. Nearby properties are considerably smaller and cheaper, ranging from £90,000 to £325,000. The property appears to have undergone a recent renovation, as evidenced by the modern kitchen and bathrooms shown in the photos. The finishes are contemporary, and the property presents as clean and well-maintained. The garden is present but appears to be underdeveloped, needing landscaping. There are several schools within a reasonable distance, including Ellesmere College and Caldecote Community Primary School, both rated ‘Good’ by Ofsted. Transportation links seem adequate, with several train stations within a 5-6km radius. Given the size of the property (2312.09 sqft) compared to the area average (1201 sqft), and its apparent modern condition, the list price of £350,000 appears to be competitive, especially considering the higher average house price in the area. However, the lack of plot size information prevents a definitive conclusion on the land value. The overall condition of the property is excellent, given the apparent recent renovations. The location appears to be reasonably convenient, with access to amenities and transport.

Therefore, we give this property 7 / 10. *Disclaimer: This is our option and does constitute a recommendation or financial advice. Do your own research. *

Price
8
Condition
9
Location
7
Land
4
Bedrooms
4
Bathrooms
2
Sqft (est)
2,312.09

The heatmap indicates the level of crime in the area. The color of the heatmap indicates the crime severity and recency.

Metrics Year-on-Year

Average area value
725,750.00 £
Increased by 35.70 %
from 534,829.00 £
Est sale value
1,299,394.58 £
Increased by 58.76 %
from 818,479.86 £
Average area rental value
1,649.00 £/mo
Increased by 16.70 %
from 1,413.00 £/mo
Est letting value
2,312.09 £/mo
from 0.00 £/mo
Est rental Yield
2.73 %
Decreased by 13.88 %
from 3.17 %
Crime Rate
7.00 %
Unchanged by 0.00 %
from 7.00 %

Agent Activity

  • Barkers created the listing.

Nearby Schools

NameTypeOfstedDistance
Ellesmere CollegeCommunity Special SchoolGood0.67 KM
Caldecote Community Primary SchoolCommunity SchoolGood0.68 KM
Ravenhurst Primary SchoolCommunity SchoolRequires improvement0.82 KM
Folville Junior SchoolCommunity SchoolGood0.99 KM
Fullhurst Community CollegeFoundation SchoolGood1.63 KM

Images

THJROUGH LOUNGE KITCHEN/FAMILY ROOM SHOWER ROOM OUTSIDE IMG_3212.jpg IMG_3213.jpg IMG_3214.jpg ASPECT 3 ASPECT 2 IMG_3133.jpg IMG_3197.jpg IMG_3196.jpg IMG_3202.jpg IMG_3131.jpg DINING ROOM IMG_3203.jpg IMG_3204.jpg STUDY/BEDROOM FOUR IMG_3138.jpg IMG_3206.jpg IMG_3220.jpg BEDROOM ONE IMG_3219.jpg IMG_3217.jpg BEDROOM TWO IMG_3205.jpg IMG_3218.jpg BEDROOM THREE IMG_3221.jpg BATHROOM IMG_3199.jpg FREE VALUATION GENERAL REMARKS IMG_3198.jpg IMG_3209.jpg IMG_3130.jpg

Nearby Streets

NameAverage PriceAverage SqftDistance
Beaufort Road £ 225,00000.00 KM
Gwencole Subway £ 000.00 KM
Fairbourne Road £ 000.00 KM
The Poplars £ 000.00 KM
Headley Road £ 000.00 KM

Nearby Transport

NameNLCTLCDistance
South Wigston1949SWS5.06 KM
Leicester1947LEI5.35 KM
Narborough1881NBR5.84 KM

Nearby Listings

AddressPriceTypeScoreDistance
Cleveleys Avenue, Leicester £ 350,000BUY7 / 100.00 KM
The Crossway, Braunstone Town £ 270,000BUY7 / 100.08 KM
Cleveleys Avenue, Leicester, Leicestershire, LE3 £ 190,000BUY4 / 100.09 KM
The Crossway, Braunstone Town £ 250,000BUY6 / 100.10 KM
The Crossway, Braunstone Town, LE3 £ 220,000BUYUnknown0.12 KM

Nearby Properties

AddressPriceDistance
42 The Crossway £ 47,5000.11 KM
48 The Crossway £ 120,0000.11 KM
11 The Crossway £ 126,0000.11 KM
36 The Crossway £ 108,0000.11 KM
46 The Crossway £ 122,0000.11 KM