Knutsford Road, Grappenhall, Warrington
By Mark Antony Estates
£ 340,000
Reviews
3 out of 5 stars
Mark Antony Estates says ..
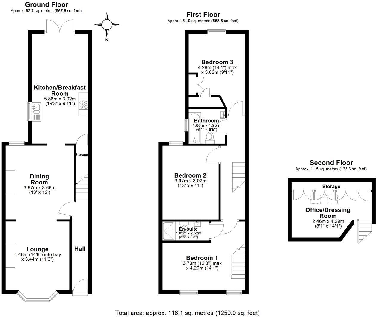
IMMACULATELY MAINTAINED three bedroom FAMILY HOME home located in the SOUGHT AFTER area of GRAPPENHALL. This STYLISH property offers a perfect blend of TRADITIONAL and MODERN features. Features include EXPOSED BRICK FIREPLACES, STUNNING open plan living dining and BEAUTIFUL EXPOSED BEAMS in the m...
Property Oracle says ..
This is a well-presented terraced property in a desirable location. The property has been modernised but retains some of its original features. The property is within walking distance of local schools and amenities, and is also close to public transport links. The property has a garden, which is a desirable feature. Overall, this is a good property that would be suitable for a variety of buyers.
Therefore, we give this property 7 / 10. *Disclaimer: This is our option and does constitute a recommendation or financial advice. Do your own research. *
- Price
- 7
- Condition
- 8
- Location
- 7
- Land
- 6
- Bedrooms
- 3
- Bathrooms
- 2
The heatmap indicates the level of crime in the area. The color of the heatmap indicates the crime severity and recency.
Metrics Year-on-Year
- Average area value
- 415,495.00 £Increased by 10.96 %
- Average area rental value
- 1,617.00 £/moIncreased by 34.75 %
- Est rental Yield
- 4.67 %Increased by 21.30 %
- Crime Rate
- 4.00 %Unchanged by 0.00 %
Agent Activity
Mark Antony Estates created the listing.
Nearby Schools
| Name | Type | Ofsted | Distance |
|---|---|---|---|
| Bradshaw Community Primary School | Community School | Good | 0.68 KM |
| Grappenhall St Wilfrid'S Cofe Primary School | Voluntary Aided School | Good | 0.76 KM |
| Thelwall Infant School | Academy Converter | 1.21 KM | |
| St Augustine'S Catholic Primary School | Voluntary Aided School | Good | 1.59 KM |
| Westy Children'S Centre | Children's Centre | 1.62 KM |
Images
Nearby Streets
| Name | Average Price | Average Sqft | Distance |
|---|---|---|---|
| Saint Anne's Avenue | £ 0 | 0 | 0.00 KM |
| Cross Lane | £ 407,500 | 0 | 0.00 KM |
| Telford Close | £ 265,000 | 0 | 0.00 KM |
| York Road | £ 449,000 | 0 | 0.00 KM |
| Stockton Lane | £ 275,000 | 0 | 0.00 KM |
Nearby Transport
| Name | NLC | TLC | Distance |
|---|---|---|---|
| Padgate | 2387 | PDG | 3.25 KM |
| Birchwood | 2304 | BWD | 4.80 KM |
| Warrington Central | 2390 | WAC | 5.02 KM |
| Warrington Bank Quay | 2384 | WBQ | 5.86 KM |
| Warrington West | 6583 | WAW | 9.90 KM |
Nearby Listings
| Address | Price | Type | Score | Distance |
|---|---|---|---|---|
| Knutsford Road, Grappenhall, Warrington | £ 340,000 | BUY | 7 / 10 | 0.00 KM |
| Albert Road, Grappenhall, Warrington, WA4 | £ 450,000 | BUY | 7 / 10 | 0.08 KM |
| Knutsford Road, Grappenhall, WA4 | £ 325,000 | BUY | 7 / 10 | 0.09 KM |
| Albert Road, Grappenhall, WA4 | £ 425,000 | BUY | 8 / 10 | 0.10 KM |
| Windsor Drive, Grappenhall, Warrington | £ 375,000 | BUY | 7 / 10 | 0.11 KM |
Nearby Properties
| Address | Price | Distance |
|---|---|---|
| 86 Knutsford Road | £ 237,000 | 0.04 KM |
| 112 Knutsford Road | £ 183,575 | 0.04 KM |
| 76 Knutsford Road | £ 331,000 | 0.04 KM |
| 121 Knutsford Road | £ 200,000 | 0.12 KM |
| 17 Mayfield Road | £ 151,000 | 0.13 KM |