Sandy Lane, Harpole, Northampton, NN7 4AP
By Linden Homes West Midlands
£ 356,995
Reviews
3 out of 5 stars
Linden Homes West Midlands says ..
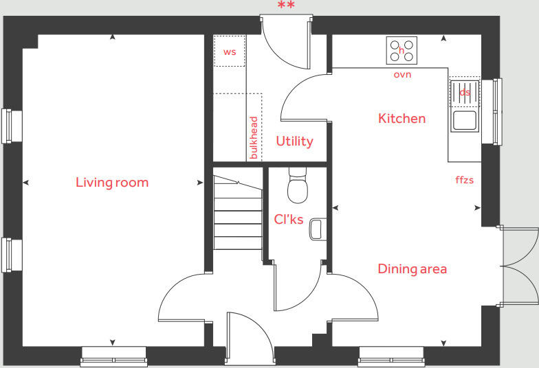
Plot 461 - The Mountford - NEW RELEASE - OUR VERY BEST PRICE!A beautifully appointed, 3-bedroom property. There is a dual-aspect living room and a kitchen/dining area serving as the buzzing heart of the house, with double doors leading out to the garden. Also, on the ground floor are a...
Property Oracle says ..
The property is a 3-bedroom house listed at £356,995 with a size of 430 sqft and a plot size of 0 sqft. The average price for properties in the area is £428,845, with an average size of 1,126 sqft and an average price per sqft of £380. This suggests that the property is significantly smaller than the average for the area. The lack of plot size information makes it difficult to assess the land aspect. The images show a newly built property that appears to be in excellent condition, with modern fixtures and finishes. The interior is well-presented and suggests a high standard of construction and design. The location is in Harpole, a village near Northampton. Nearby schools such as Harpole Primary School (rated ‘Good’ by Ofsted) and Kislingbury Primary School are within a reasonable distance. Northampton train station is approximately 7.5km away, providing access to wider transport links. However, more information on the immediate vicinity and local amenities would be needed for a complete assessment of the location. Considering the property’s smaller size compared to the average in the area, its new condition, and the proximity to local amenities and schools, the list price of £356,995 appears to be at the higher end of the market value. The lack of plot size data prevents a full evaluation of land value.
Therefore, we give this property 6 / 10. *Disclaimer: This is our option and does constitute a recommendation or financial advice. Do your own research. *
- Price
- 6
- Condition
- 10
- Location
- 7
- Land
- 1
- Bedrooms
- 3
- Bathrooms
- 0
- Sqft (est)
- 430.00
The heatmap indicates the level of crime in the area. The color of the heatmap indicates the crime severity and recency.
Metrics Year-on-Year
- Average area value
- 375,000.00 £Decreased by 12.81 %
- Est sale value
- 218,010.00 £Increased by 58.93 %
- Average area rental value
- 1,375.00 £/moDecreased by 6.53 %
- Est letting value
- 430.00 £/moUnchanged by 0.00 %
- Est rental Yield
- 4.40 %Increased by 7.32 %
- Crime Rate
- 0.00 %
Agent Activity
Linden Homes West Midlands created the listing.
Nearby Schools
| Name | Type | Ofsted | Distance |
|---|---|---|---|
| Kislingbury Primary School | Academy Converter | 0.94 KM | |
| Harpole Primary School | Voluntary Controlled School | Good | 1.12 KM |
| St Luke'S Church Of England Primary School | Academy Converter | Good | 2.24 KM |
| The Duston School | Academy Converter | Good | 2.44 KM |
| Quinton House School | Other Independent School | 2.47 KM |
Images
Nearby Streets
| Name | Average Price | Average Sqft | Distance |
|---|---|---|---|
| Alder Drive | £ 285,000 | 0 | 0.00 KM |
| Underborough Way | £ 299,995 | 0 | 0.00 KM |
| Lime Avenue | £ 0 | 0 | 0.00 KM |
| Cherry Tree Lane | £ 0 | 0 | 0.00 KM |
| Elm Avenue | £ 0 | 0 | 0.00 KM |
Nearby Transport
| Name | NLC | TLC | Distance |
|---|---|---|---|
| Northampton | 1069 | NMP | 7.50 KM |
Nearby Listings
| Address | Price | Type | Score | Distance |
|---|---|---|---|---|
| Sandy Lane, Harpole, Northampton, NN7 4AP | £ 439,995 | BUY | 7 / 10 | 0.00 KM |
| Sandy Lane, Harpole, Northampton, NN7 4AP | £ 245,000 | BUY | 5 / 10 | 0.00 KM |
| Sandy Lane, Harpole, Northampton, NN7 4AP | £ 459,995 | BUY | 5 / 10 | 0.00 KM |
| Sandy Lane, Harpole, Northampton, NN7 4AP | £ 269,995 | BUY | Unknown | 0.00 KM |
| Sandy Lane, Harpole, Northampton, NN7 4AP | £ 459,995 | BUY | 6 / 10 | 0.00 KM |
Nearby Properties
| Address | Price | Distance |
|---|---|---|
| 14 Sandy Lane | £ 360,000 | 0.00 KM |
| 4 Sandy Lane | £ 329,995 | 0.00 KM |
| 2 Sandy Lane | £ 219,000 | 0.00 KM |
| 34 Sandy Lane | £ 440,000 | 0.00 KM |
| 2a Sandy Lane | £ 309,995 | 0.00 KM |