Lawson Rose says ..
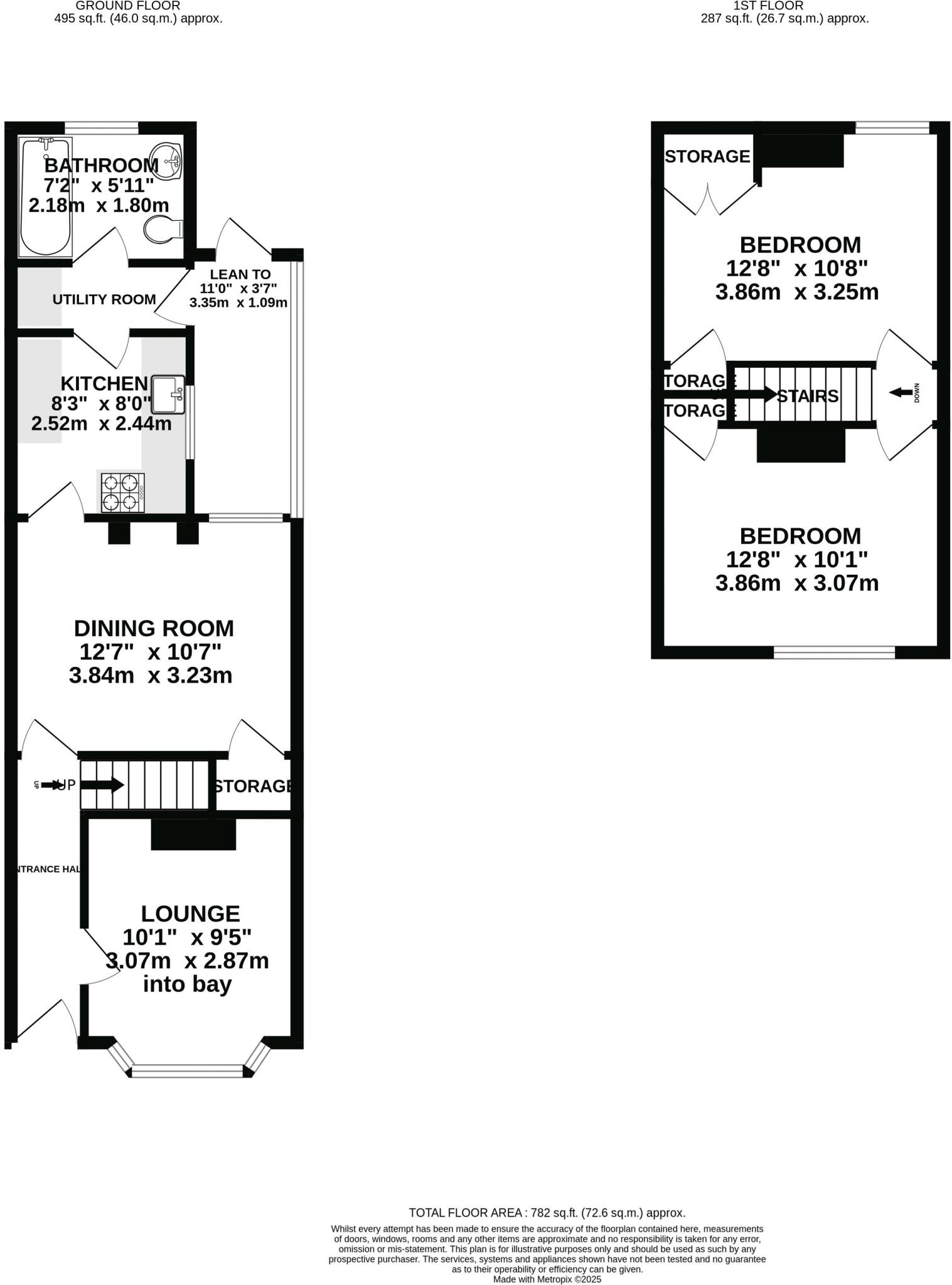
Offered with no forward chain and situated in a popular part of Southsea, this well-presented two-bedroom terraced home on Reginald Road is just moments from local amenities. The accommodation comprises a bright and airy front living room with a large bay window, followed by a spacious second ...
Property Oracle says ..
Therefore, we give this property 6 / 10. *Disclaimer: This is our option and does constitute a recommendation or financial advice. Do your own research. *
- Price
- 6
- Condition
- 6
- Location
- 7
- Land
- 7
- Bedrooms
- 2
- Bathrooms
- 1
- Sqft (est)
- 644.58
The heatmap indicates the level of crime in the area. The color of the heatmap indicates the crime severity and recency.
Metrics Year-on-Year
- Average area value
- 328,606.00 £Increased by 5.04 %
- Est sale value
- 221,735.52 £Decreased by 14.85 %
- Average area rental value
- 1,137.00 £/moDecreased by 6.34 %
- Est letting value
- 644.58 £/moUnchanged by 0.00 %
- Est rental Yield
- 4.15 %Decreased by 10.94 %
- Crime Rate
- 10.00 %Unchanged by 0.00 %
from 312,849.00 £
from 260,410.32 £
from 1,214.00 £/mo
from 644.58 £/mo
from 4.66 %
from 10.00 %
Agent Activity
Lawson Rose created the listing.
Nearby Schools
| Name | Type | Ofsted | Distance |
|---|---|---|---|
| Cumberland Infant School | Community School | Good | 0.17 KM |
| Cumberland Children'S Centre | Children's Centre Linked Site | 0.22 KM | |
| Wimborne Primary School | Community School | 0.37 KM | |
| Milton Park Primary School | Academy Converter | 0.72 KM | |
| Milton, Baffin'S And Cumberland Children'S Centre | Children's Centre | 0.82 KM |
Images
Nearby Streets
| Name | Average Price | Average Sqft | Distance |
|---|---|---|---|
| Clovelly Road | £ 0 | 0 | 0.00 KM |
| Morley Road | £ 0 | 0 | 0.00 KM |
| Bransbury Road | £ 0 | 0 | 0.00 KM |
| Church View | £ 0 | 0 | 0.00 KM |
| Spencer Road | £ 0 | 0 | 0.00 KM |
Nearby Transport
| Name | NLC | TLC | Distance |
|---|---|---|---|
| Fratton | 5509 | FTN | 1.66 KM |
| Portsmouth And Southsea | 5537 | PMS | 3.47 KM |
| Hilsea | 5539 | HLS | 4.42 KM |
| Portsmouth Harbour | 5540 | PMH | 5.24 KM |
| Cosham | 5896 | CSA | 5.97 KM |
Nearby Listings
| Address | Price | Type | Score | Distance |
|---|---|---|---|---|
| Reginald Road, Southsea | £ 230,000 | BUY | 6 / 10 | 0.00 KM |
| Reginald Road, Southsea | £ 260,000 | BUY | 6 / 10 | 0.01 KM |
| Reginald Road, Southsea | £ 220,000 | BUY | 6 / 10 | 0.01 KM |
| Reginald Road, Southsea | £ 220,000 | BUY | 7 / 10 | 0.01 KM |
| Landguard Road, Eastney, Portsmouth, Hampshire | £ 152,500 | BUY | Unknown | 0.03 KM |
Nearby Properties
| Address | Price | Distance |
|---|---|---|
| 132 Reginald Road | £ 125,000 | 0.01 KM |
| 156 Reginald Road | £ 63,500 | 0.01 KM |
| 128 Reginald Road | £ 103,000 | 0.01 KM |
| 174 Reginald Road | £ 160,000 | 0.01 KM |
| 118 Reginald Road | £ 190,000 | 0.01 KM |