"The Croft", Main Road, Wybunbury
CH

"The Croft", Main Road, Wybunbury

By Cheshire Lamont

£ 769,000

Reviews

4 out of 5 stars

Cheshire Lamont says ..

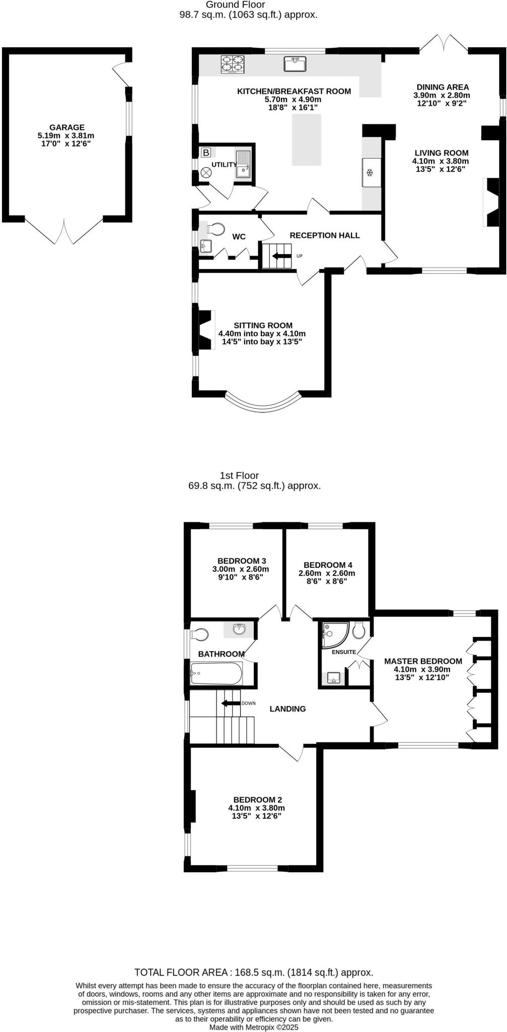
An exceptional and most handsome 1930's bay fronted four bedroom period residence of superb character standing in delightful established gardens and grounds to 0.25 of an acre within Wybunbury village providing stunning, spacious accommodation and appointed throughout to a very high standard...

Property Oracle says ..

This property is a charming detached family home located in the desirable village of Wybunbury, Cheshire. The property boasts a spacious layout, with four bedrooms and two bathrooms, and benefits from a recently updated kitchen and modern fixtures and fittings throughout. The home is presented in excellent condition and benefits from a large garden with ample space for entertaining. The location is ideal for families, with nearby schools and transport links. While the list price is higher than the average for the area, the size of the property and the quality of the finishings justify the premium.

Therefore, we give this property 8 / 10. *Disclaimer: This is our option and does constitute a recommendation or financial advice. Do your own research. *

Price
7
Condition
9
Location
9
Land
8
Bedrooms
4
Bathrooms
2
Sqft (est)
1,550.00
Lot (est)
1,813.72

The heatmap indicates the level of crime in the area. The color of the heatmap indicates the crime severity and recency.

Metrics Year-on-Year

Average area value
614,167.00 £
Decreased by 18.27 %
from 751,428.00 £
Est sale value
508,400.00 £
Decreased by 20.19 %
from 637,050.00 £
Average area rental value
1,688.00 £/mo
Increased by 6.43 %
from 1,586.00 £/mo
Est letting value
0.00 £/mo
from 0.00 £/mo
Est rental Yield
3.30 %
Increased by 30.43 %
from 2.53 %
Crime Rate
25.00 %
Unchanged by 0.00 %
from 25.00 %

Agent Activity

  • Cheshire Lamont created the listing.

Nearby Schools

NameTypeOfstedDistance
Wybunbury Delves Cofe Primary SchoolAcademy Converter1.13 KM
Shavington AcademyAcademy ConverterGood2.38 KM
Shavington Primary SchoolAcademy ConverterGood2.40 KM
The Berkeley AcademyAcademy ConverterGood3.20 KM
The Brooks Children'S CentreChildren's Centre4.16 KM

Images

Photo 5 Photo 6 Photo 8 Photo 11 Photo 16 Photo 18 Photo 16 Photo 24 Photo 21 Photo 20 Photo 22 Photo 23 Photo 17 Photo 18 Photo 34 Photo 33 Photo 25 Photo 26 Photo 35 Photo 29 Photo 36 Photo 28 Photo 40 Photo 38 Photo 42 Photo 43 Photo 44 Photo 45 Photo 46 Photo 47 Photo 49 Photo 13 Photo 14 Photo 9 Photo 30 Photo 31 Photo 37 Photo 27 Photo 41 Photo 48 Photo 51 Photo 50 Photo 17 Photo 15 Photo 10 Photo 7 Photo 53 Photo 54 Photo 52

Nearby Streets

NameAverage PriceAverage SqftDistance
Moss Lane £ 000.00 KM
Bridge Street £ 525,00000.00 KM
Buckthorn Place £ 000.00 KM
Enfield Close £ 200,00000.00 KM
Highclere Way £ 000.00 KM

Nearby Transport

NameNLCTLCDistance
Crewe1243CRE5.55 KM
Nantwich1247NAN7.05 KM

Nearby Listings

AddressPriceTypeScoreDistance
"The Croft", Main Road, Wybunbury £ 769,000BUY8 / 100.00 KM
Moorlands Drive, Wybunbury, Nantwich £ 305,000BUY8 / 100.09 KM
Main Road, Wybunbury, Nantwich, Cheshire, CW5 £ 740,000BUY8 / 100.13 KM
Church Way, Wybunbury, Nantwich, Cheshire, CW5 £ 410,000BUY7 / 100.15 KM
Church Way, Wybunbury, Nantwich, Cheshire, CW5 £ 400,000BUY7 / 100.17 KM

Nearby Properties

AddressPriceDistance
4 Gorsey Bank Crescent £ 222,5000.09 KM
51 Moorlands Drive £ 216,0000.09 KM
9 Gorsey Bank Crescent £ 100,0000.09 KM
2 Moorlands Drive £ 333,0000.09 KM
26 Moorlands Drive £ 296,0000.09 KM