Davenport Park Lane, Off Holmes Chapel Road, Cheshire
CH

Davenport Park Lane, Off Holmes Chapel Road, Cheshire

By Chris Hamriding Lettings & Estates

£ 1,100,000

Reviews

3 out of 5 stars

Chris Hamriding Lettings & Estates says ..

Taker a moment to admire this historic home via our guided video tour! A truly stunning and luxurious Cheshire residence located in the affluent rural hamlet of Davenport just off Holmes Chapel Road, 'Old Grange' is a wonderful home that's enjoyed a huge refurbishment via the current own...

Property Oracle says ..

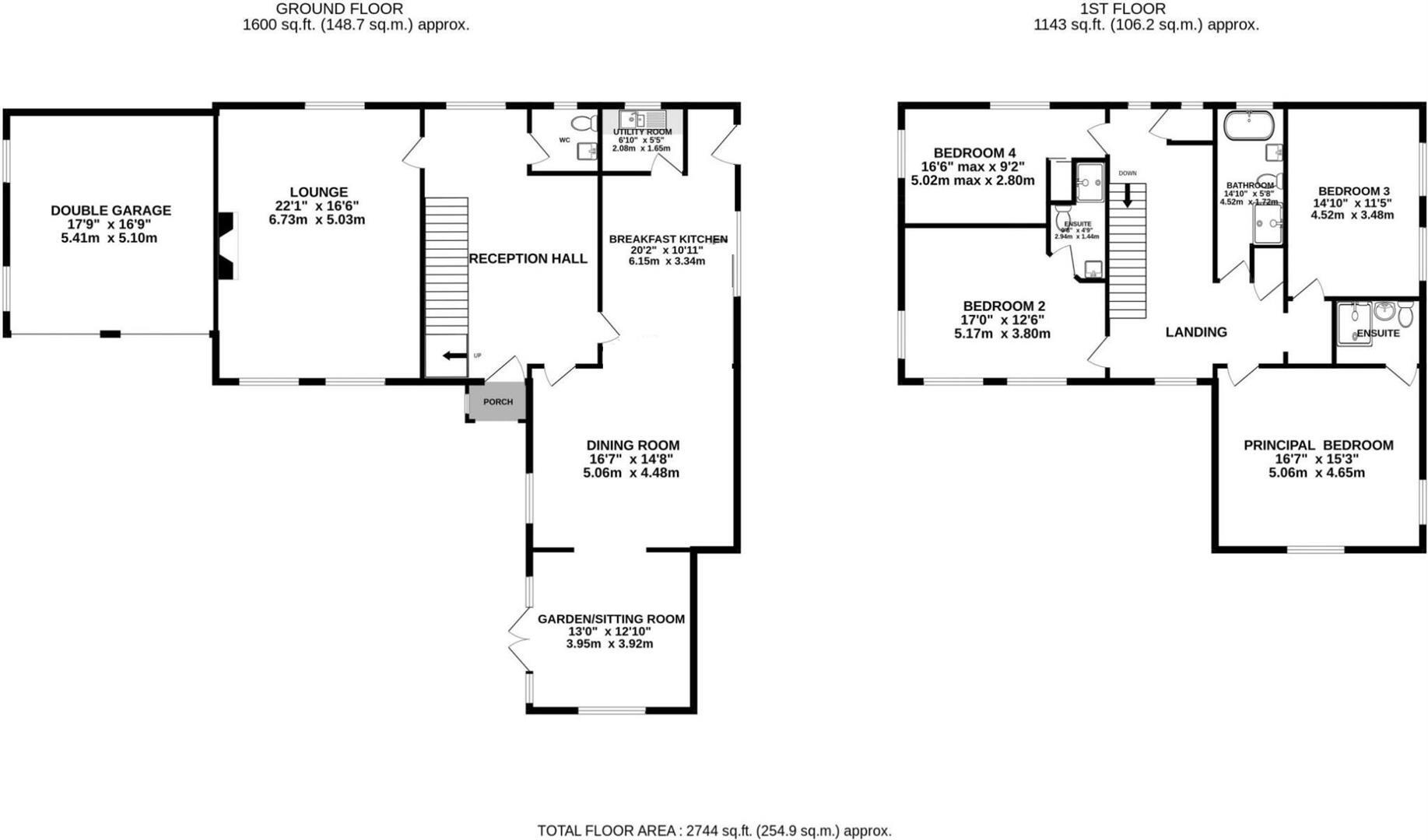
This detached property on Davenport Park Lane in Cheshire offers a blend of traditional charm and modern living. The house features four bedrooms and three bathrooms, making it suitable for families. The interior showcases a well-maintained condition with a modern kitchen and updated bathrooms, while retaining period features. The property benefits from a large garden, providing ample outdoor space. While the list price is higher than average for the area, the property’s features and condition may justify the premium.

Therefore, we give this property 7 / 10. *Disclaimer: This is our option and does constitute a recommendation or financial advice. Do your own research. *

Price
6
Condition
8
Location
7
Land
9
Bedrooms
4
Bathrooms
3

The heatmap indicates the level of crime in the area. The color of the heatmap indicates the crime severity and recency.

Metrics Year-on-Year

Average area value
511,711.00 £
Increased by 14.39 %
from 447,342.00 £
Average area rental value
1,517.00 £/mo
Increased by 3.27 %
from 1,469.00 £/mo
Est rental Yield
3.56 %
Decreased by 9.64 %
from 3.94 %
Crime Rate
0.00 %
from 0.00 %

Agent Activity

  • Chris Hamriding Lettings & Estates created the listing.

Nearby Schools

NameTypeOfstedDistance
Brereton Cofe Primary SchoolAcademy Converter3.41 KM
Terra Nova SchoolOther Independent School4.35 KM
Goostrey Community Primary SchoolCommunity SchoolOutstanding4.97 KM
Hermitage Primary SchoolAcademy Converter5.16 KM
Smallwood Cofe Primary SchoolAcademy ConverterGood5.86 KM

Images

DSC_1347-DSC_1351.jpg DSC_1187-DSC_1191.jpg DSC_1197-DSC_1201.jpg DSC_1202-DSC_1206.jpg DSC_1207-DSC_1211.jpg DSC_1212-DSC_1216.jpg DSC_1217-DSC_1221.jpg DSC_1312-DSC_1316.jpg DSC_1332-DSC_1336.jpg DSC_1322-DSC_1326.jpg DSC_1357-DSC_1361.jpg DSC_1352-DSC_1356.jpg DSC_1182-DSC_1186.jpg DSC_1337-DSC_1341.jpg DSC_1342-DSC_1346.jpg DSC_1237-DSC_1241.jpg DSC_1232-DSC_1236.jpg DSC_1222-DSC_1226.jpg DSC_1227-DSC_1231.jpg DSC_1242-DSC_1246.jpg DSC_1247-DSC_1251.jpg DSC_1277-DSC_1281.jpg DSC_1252-DSC_1256.jpg DSC_1257-DSC_1261.jpg DSC_1262-DSC_1266.jpg DSC_1267-DSC_1271.jpg DSC_1272-DSC_1276.jpg DSC_1282-DSC_1286.jpg DSC_1287-DSC_1291.jpg DSC_1292-DSC_1296.jpg DSC_1297-DSC_1301.jpg DSC_1302-DSC_1306.jpg DSC_1307-DSC_1311.jpg DSC_1317-DSC_1321.jpg DSC_1327-DSC_1331.jpg

Nearby Streets

NameAverage PriceAverage SqftDistance
Davenport Park Lane £ 000.00 KM
Bagmere Lane £ 000.00 KM

Nearby Transport

NameNLCTLCDistance
Goostrey1220GTR4.35 KM
Holmes Chapel1221HCH5.00 KM
Chelford (Cheshire)2764CEL9.55 KM

Nearby Listings

AddressPriceTypeScoreDistance
Davenport Park Lane, Off Holmes Chapel Road, Cheshire £ 1,100,000BUY7 / 100.00 KM
Davenport Park Lane, Off Holmes Chapel Road, Cheshire £ 1,100,000BUY7 / 100.00 KM
Davenport, Congleton, CW12 £ 1,000,000BUY7 / 100.17 KM
Holmes Chapel Road, Davenport, Congleton £ 1,100,000BUY6 / 100.22 KM
Davenport Mews, Davenport £ 895,000BUY7 / 100.24 KM

Nearby Properties

AddressPriceDistance
Beech Farm £ 350,0000.88 KM
Birch View £ 1,200,0000.88 KM
3 Holmes Chapel Road £ 117,0000.88 KM
Oak House £ 850,0000.88 KM
1 Holmes Chapel Road £ 250,0000.88 KM